Vse nepremičnine
Hiše
Stanovanja
Parcele
Poslovni prostori
Regija
...
Zagrebška
Krapinsko-zagorska
Sisačko-moslavačka
Karlovška
Varaždinska
Koprivniško-križevska
Bjelovarsko-bilogorska
Primorsko-goranska
Ličko-senjska
Virovitiško-podravska
Požeško-slavonska
Brodsko-posavska
Zadarska
Osiješko-baranjska
Šibeniško-kninska
Vukovarsko-sremska
Splitsko-dalmatinska
Istrska
Dubrovniško-neretvanska
Međimurska
Mesto Zagreb
Mesto
...
TROGIR
SPLIT
VRGORAC
BAŠKA VODA
MARINA
BRAČ
PRGOMET
SUĆURAJ
BRELA
GRADAC
SEGET
SINJ
HVAR
CISTA PROVO
OMIŠ
ČIOVO
STARI GRAD
ŠOLTA
IMOTSKI
VIS
PODGORA
DUGI RAT
DUGOPOLJE
OTOK
JELSA
KAŠTELA
ŠESTANOVAC
KLIS
VRLIKA
TRILJ
DICMO
SOLIN
LOVREĆ
MAKARSKA
SUPETAR
PODSTRANA
PODBABLJE
PRIMORSKI DOLAC
TUČEPI
ZADVARJE
ZMIJAVCI
Mesto
...
ARBANIJA
DIVULJE
DRVENIK MALI
DRVENIK VELIKI
MASTRINKA
PLANO
TROGIR
ŽEDNO
Tip
Vse
Hiše
Stanovanja
Parcele
Poslovni prostori
Cena
od
do
Oddaljenost od morja (m)
od
do
Sort
Novejši
Starejši
Cenejši
Dražji
Poišči
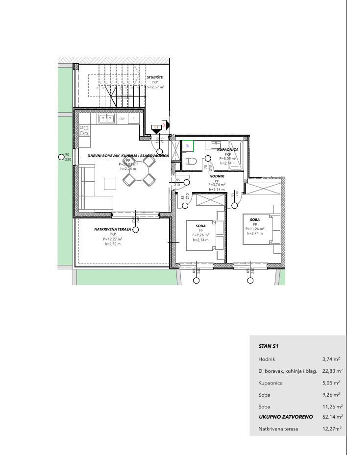
Stanovanje - TROGIR - 220.000 EUR
Previous
Next
Lokacija
TROGIR, Splitsko-dalmatinska
Cena €
220.000
Površina
64 m
2
Število sob
2
Število kopalnic
1
Oddaljenost od morja
0 m
ID: 1222564
Pošlji sporočilo
Ime
E-mail
Telefon
4 + 3 =
Sporočilo
Pošlji
Opusti