Parcela - ŽMINJ - 92.100 EUR
| Lokacija | ŽMINJ, Istrska |
| Cena € | 92.100 |
| Površina parcele | 1375 m2 |
| Oddaljenost od morja | 0 m |
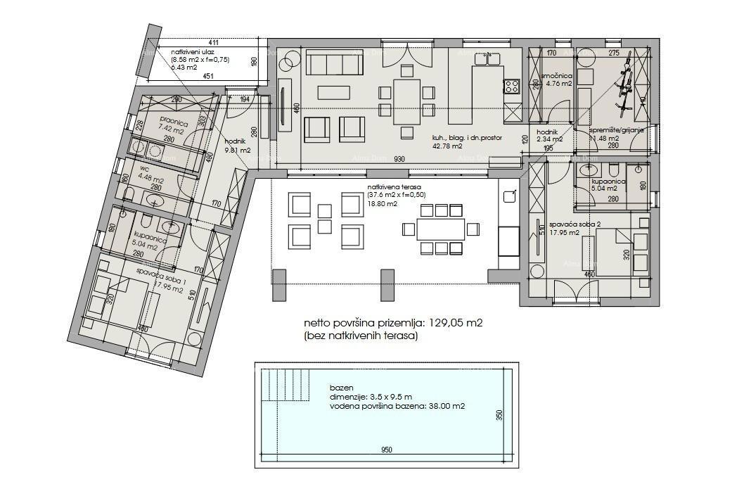
Na prodajo je atraktivno gradbeno zemljišče, ki se nahaja v srcu Istre, med zgodovinskimi mesteci Gračišće, Lindar in Žminj. Parcela se nahaja na blagih vzpetinah, obdana z hrastovim gozdom, kar nudi popolno okolje za vse, ki cenijo naravo, mir in zasebnost. Osnovne informacije: -Površina parcele: 1.375 m² -Neto površina hiše: 129 m² notranjega prostora -Nakrita terasa: 38 m² -Nakrit vhod: 8 m² -Število etaž: pritličje -Parkirna mesta: 2 Projekt predvideva kombinacijo sodobne arhitekture in tradicionalnega mediteranskega sloga, s poudarkom na naravnih materialih, kot so kamen, les in beton. Velike steklene stene povezujejo notranje prostore z okoliško pokrajino, kar omogoča odprt pogled na naravo in bazen. Razpored prostorij Pritličje: odprt koncept dnevne sobe, kuhinje in jedilnice, gospodarska soba s straniščem ter spalnica z lastno kopalnico. Iz dnevnega dela se izhaja na nakrito teraso in bazen. Tla so obložena s parketom, medtem ko so v kopalnicah keramične ploščice. Značilnosti: -Ogrevanje in hlajenje preko toplotne črpalke -Talno ogrevanje v kopalnicah -Fan-coil sistem v drugih prostorih -Kamin na drva v dnevni sobi -Bazen površine 38 m² s kamnito oblogo, mozaik ploščicami in sončno teraso Razdalja od morja: 28 km Čudovita mediteranska vila, ki združuje moderno udobje in tradicionalni istrski čar. Nahaja se v mirnem delu osrednje Istre, obdana z gozdom, a kljub temu blizu slikovitih mestec. Idealna za počitnice ali kot naložba. Za dodatne informacije, prosimo, kontaktirajte: Azra +385 91 611 5706 +385 98 420 885 azra@almadominvest.com
ID: 1224857