Parcela - ŽMINJ - 110.000 EUR
| Lokacija | ŽMINJ, Istrska |
| Cena € | 110.000 |
| Površina | 1750 m2 |
| Oddaljenost od morja | 0 m |
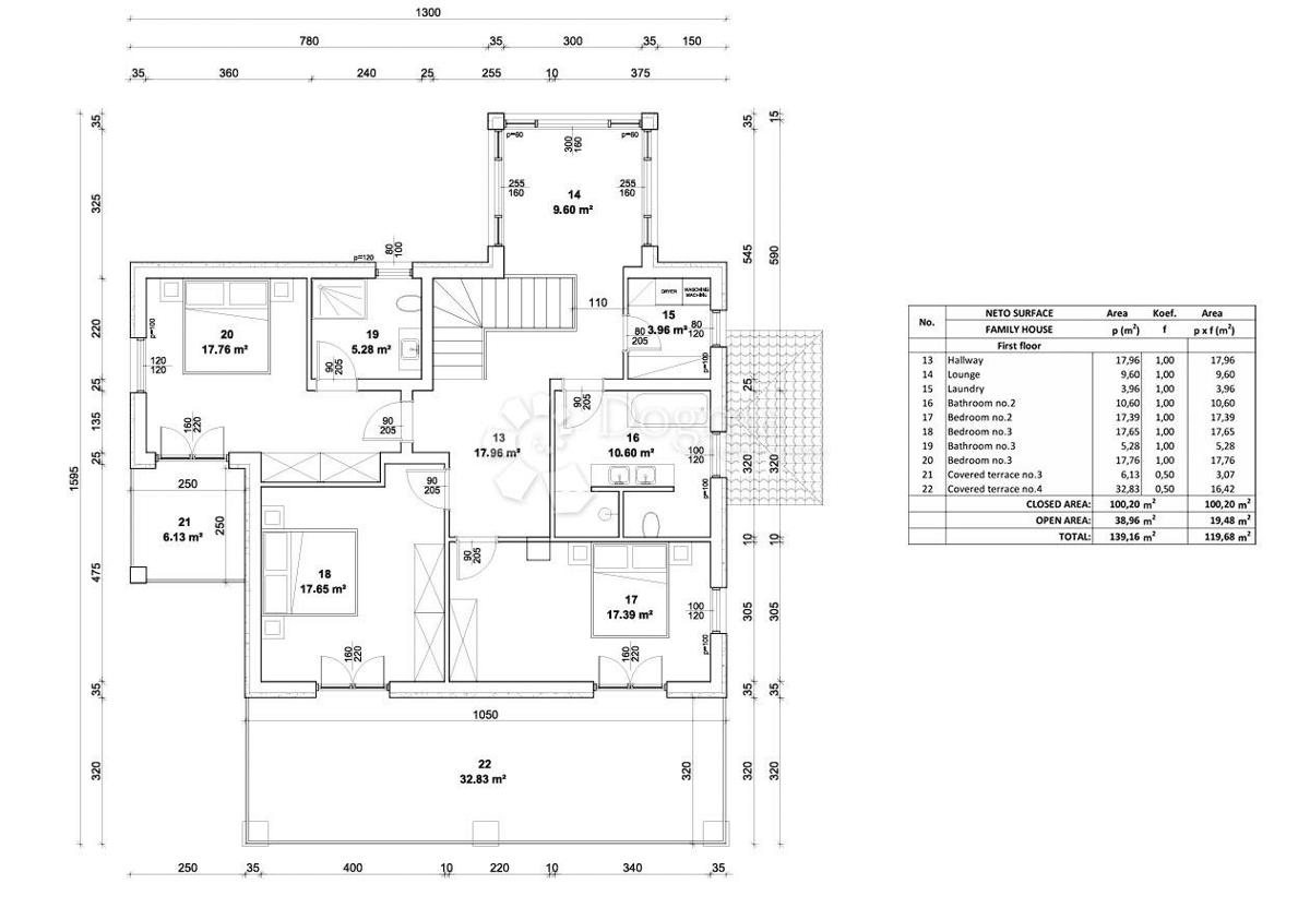
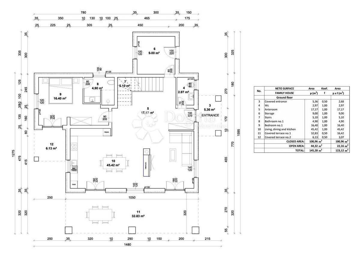
Čudovito gradbeno zemljišče z veljavnim gradbenim dovoljenjem se nahaja v mirnem naselju v okolici Žminja, idealno za vse, ki iščejo zasebnost, mir in kakovostno bivalno okolje v srcu Istre. Parcela skupne površine 1.750 m² je ravna in pravilne, skoraj kvadratne oblike, kar jo naredi popolno za izvedbo luksuznega projekta. Vsa potrebna infrastruktura se nahaja neposredno ob zemljišču, kar omogoča hiter in enostaven začetek gradnje. Projekt je zasnovan kot luksuzna družinska hiša, ki obsega klet, pritličje in nadstropje. V pritličju so predvideni prostorna dnevna soba, kuhinja, WC ter spalnica z lastno kopalnico. V nadstropju so načrtovane tri spalnice, dve kopalnici in pralnica. Razpored prostorov je zasnovan s poudarkom na funkcionalnosti, udobju in zasebnosti. Celoten koncept ponuja popolno ravnovesje med sodobnim bivanjem, luksuzom in mirnim istrskim okoljem, zato nepremičnina predstavlja izjemno priložnost tako za zasebno gradnjo kot tudi za kakovostno investicijo. Za dodatne informacije: Karlo Šestan Asistent v posredovanju Mob: +385 91 3611 922 Email: karlo.sestan@dogma-nekretnine.com
ID: 1260682