Hiša - ŽMINJ - 599.000 EUR
| Lokacija | ŽMINJ, Istrska |
| Cena € | 599.000 |
| Površina | 161 m2 |
| Število sob | 4 |
| Površina parcele | 932 m2 |
| Število kopalnic | 3 |
| Oddaljenost od morja | 27000 m |
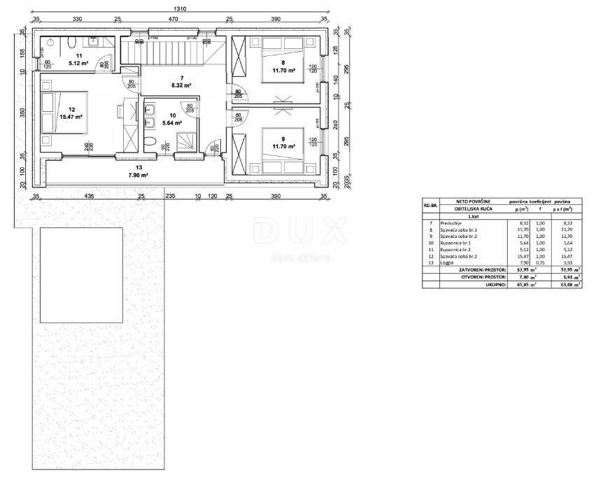
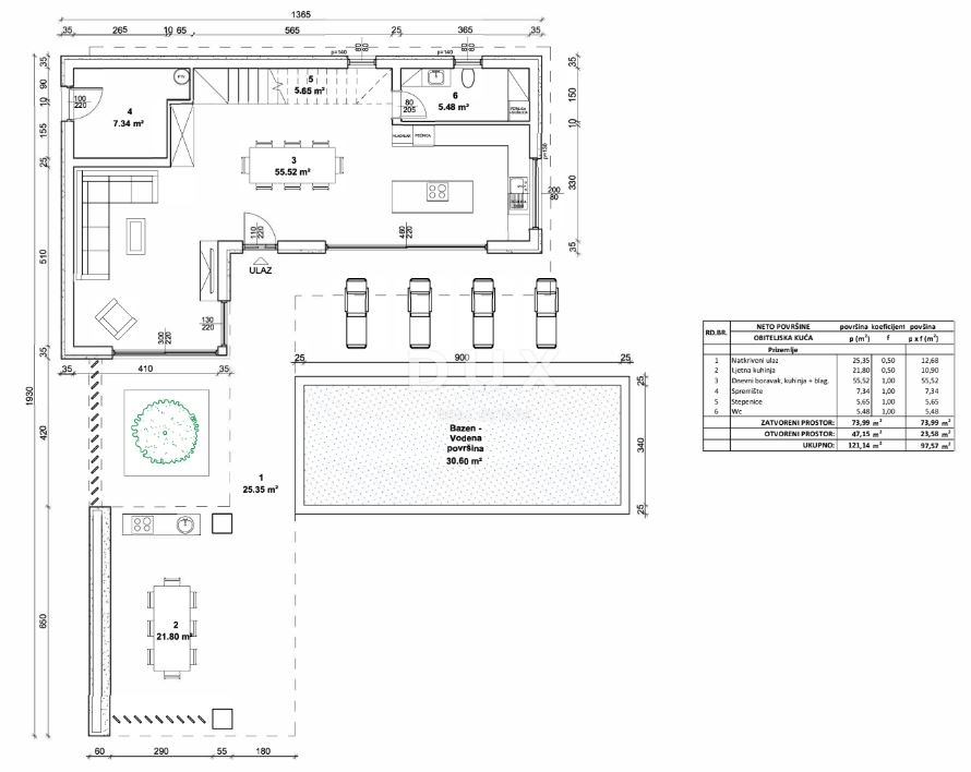
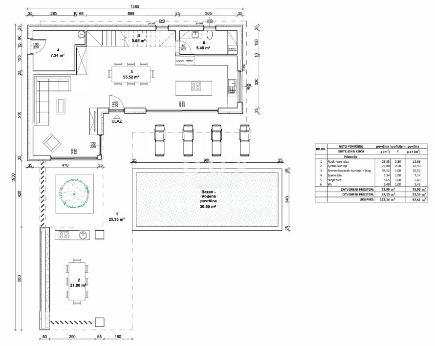
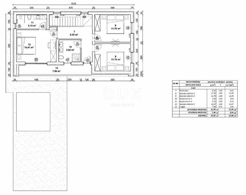
ISTRA, ŽMINJ – Moderna luksuzna vila z bazenom, sončno elektrarno in vrhunsko opremo Žminj je očarljivo istrsko mestece, ki se nahaja v samem srcu polotoka, znano po svojem pristnem ambientu, tradicionalni arhitekturi in odličnih prometnih povezavah s Pulo, Rovinjem in Pazinom. Zaradi svoje osrednje lokacije in vse večjega povpraševanja po kakovostnih nepremičninah v notranjosti Istre je idealna izbira za mirno družinsko življenje ali naložbo v turizem. Nedaleč od središča Žminja, v mirnem in zasebnem okolju, se na parceli velikosti 932 m² prodaja moderna vila vrhunske gradnje s skupno neto površino 161,5 m², z bazenom velikosti 30,6 m². NOTRANJA OPREMA – FUNKCIONALNOST IN ELEGANCA Vila je bila skrbno zasnovana za maksimalno udobje in prostornost. Notranjost s površino 161,5 m² vključuje: • prostorno dnevno sobo • kuhinjo z jedilnico • 3 spalnice • 2 kopalnici • 1 stranišče za goste • tehnično/strojnico Prostor je klimatiziran (LG split sistemi v vsaki spalnici in dnevni sobi), po vsej hiši pa je izvedeno talno ogrevanje. Topla voda se pripravlja v 200-litrskem bojlerju, priključenem na toplotno črpalko LG. Kopalnice so opremljene z vrhunsko opremo: • črne pipe in vgradne tuš kabine HansGrohe • tuš kabine z varnostnim steklom • straniščne školjke Villeroy & Boch z mehkim zapiranjem sedežev Tla in stenske obloge so keramika 1. razreda (Keraterm/Feroterm 60x60 ali 60x120 cm). Stene so strojno ometane, dvojno glazirane in pobarvane belo. Stavbno pohištvo je Rehau ALU/PVC s troslojnim LOW-E steklom (6-16-6, plin, Ug=0,8 W/m²K), panoramske ALU stene, varnostno steklo, električne aluminijaste rolete, ki se upravljajo prek pametnega telefona. Vhodna vrata so aluminijasta s 3-točkovno varnostno ključavnico, dodatno varnostno ključavnico, moderna notranja vrata s črno magnetno ključavnico in skritimi tečaji. TEHNIČNE ZNAČILNOSTI IN KONSTRUKCIJA Konstrukcija: • armiranobetonski osnovni trakovi in plošče • 25 cm nosilne stene iz opeke Wienerberger • predelne stene 10 cm (Wienerberger) • armiranobetonski stebri in nosilci Izolacija in fasada: • hidroizolacija s katranskimi folijami • EPS 10 cm + fasadni sistem Baumit • dekorativni kameni kup 2 cm • streha: 15 cm XPS izolacija + hidroizolacija Pločevina: aluminij in pocinkana barvana pločevina. Drenaža: biorazgradljiva jama. Na strehi je nameščena sončna elektrarna z močjo 10 kW in paneli tipa N. Varnost: • video nadzor (spremljanje prek mobilnega telefona) • protivlomna ključavnica • internetna povezava prek mobilnega omrežja Dodatno: • Polnilnik za električna vozila Schneider Electric 11 kW (tip 2, kabel 5 m) VRT – 932 m² ZASEBNOST IN UDOBJE Parcela velikosti 932 m² je v celoti ograjena z zidom in zeleno ograjo, z lovorjem, češnjami in tujami za maksimalno zasebnost. Urejen vrt ima: • 30,6 m² velik bazen (globina 1,3 m) sistem skimerja elektrolizo (Salt & Swim 2.0) avtomatsko filtracijo toplotno črpalko za ogrevanje in hlajenje vode LED osvetlitev mikrocementno modro oblogo Duraston • pripravo za zunanji tuš • zasajeno trato • 3 oljke z nočno osvetlitvijo • sistem kapljičnega namakanja s programatorjem • električna vhodna aluminijasta vrata z daljinskim upravljalnikom • zunanje parkirno mesto • stensko polnilnico za električna vozila Zunanje terase so prekrite s keramiko 1. razreda 60x60 cm. Predviden zaključek je 10/2026 Ta vila predstavlja popolno kombinacijo sodobne tehnologije, energetske učinkovitosti (sončna elektrarna 10 kW), luksuzne opreme in zasebnosti na odlični lokaciji v osrčju Istre. Idealna je kot družinska hiša, luksuzna počitniška rezidenca ali naložba za visokokakovostni turistični najem. Z nakupom te nepremičnine pridobite dolgoročno vrednost, varno gradnjo preverjenega izvajalca in dom, ki je pripravljen izpolnjevati najvišje standarde sodobnega življenja. Spoštovane stranke, provizija agencije se obračunava v skladu s Splošnimi pogoji poslovanja: www.dux-nekretnine.hr/opci-uvjeti-poslovanja
ID: 1263866