Hiša - ŽMINJ - 575.000 EUR
| Lokacija | ŽMINJ, Istrska |
| Cena € | 575.000 |
| Površina | 150 m2 |
| Število sob | 4 |
| Površina parcele | 668 m2 |
| Število kopalnic | 4 |
| Oddaljenost od morja | 28000 m |
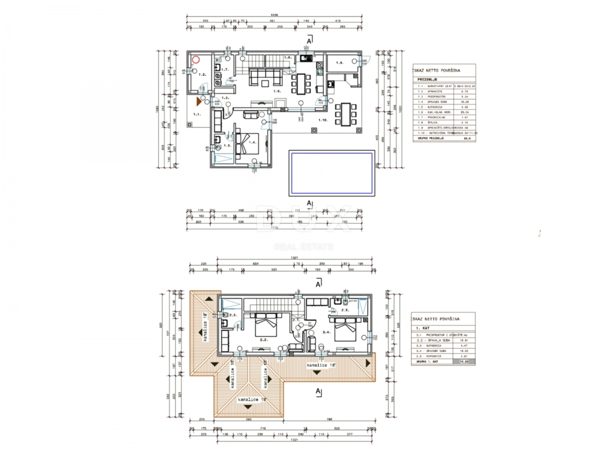
ISTRA, ŽMINJ - Moderna istrska hiša z bazenom Če vse ceste v Evropi vodijo v Rim, potem vse ceste v Istri vodijo v Žminj - srce Istre na nadmorski višini 379 metrov. Žminj je že od antičnih časov pomembno prometno središče. Povezival je celoten istrski polotok. Zaradi izjemne naravne lepote, neskončnih travnikov, vinogradov, bogatih polj, starodavnih gozdov in novoodkritih jam je pravi kraj za stik z naravo. Zeleni, zdrav in trajnostni turizem je značilen za to občino, ki je impresivna po površini, kulturi in gastronomiji. Slikovito ozemlje Žminja ima 33 naselij in 112 vasi. Nedaleč od mesta Žminj se prodaja moderna istrska hiša z bazenom. Mikrolokacija ponuja pristno doživetje majhnega istrskega mesta, intimnost, olajšanje od vsakega napornega napora in hkrati bližino dinamičnih istrskih mest z vrsto vsebin. Poleg priročne lokacije nepremičnino odlikuje tudi kakovost gradnje, ki zagotavlja dolgoročno zadovoljstvo in kakovost bivanja. Hiša brezčasnega dizajna, delno obložena s kamnom, se po obliki in barvi zliva z naseljem in pokrajino ter je zasnovana kot ena sama stanovanjska enota, ki se razteza čez dve nadstropji funkcionalnega tlorisa. Pritličje sestavlja odprt prostor, ki združuje kuhinjo, jedilnico in dnevno sobo z dostopom do pokrite terase, na kateri se nahajajo letna kuhinja, spalnice z lastnimi kopalnicami, stranišče za goste s pralnico, utility, shramba in tehnični prostori, medtem ko se v prvem nadstropju nahajata dve spalnici z lastnimi kopalnicami. Dvorišče je ambientalno in hortikulturno urejeno in ograjeno ter vsebuje bazen s kamnito obloženo površino za sončenje. Odlična lokacija in prostorska organizacija notranjosti in zunanjosti te nepremičnine ponujata priložnost za udobno družinsko življenje ali naložbo v turistično dejavnost oddajanja. Navedena cena nepremičnine se nanaša na končno stopnjo dokončanja brez pohištva, kar omogoča končno dekoracijo po lastnih željah in preferencah. Spoštovane stranke, provizija agencije se obračunava v skladu s Splošnimi pogoji poslovanja: www.dux-nekretnine.hr/opci-uvjeti-poslovanja
ID: 1270784