Stanovanje - ZAMET - 310.000 EUR
| Lokacija | ZAMET, RIJEKA, Primorsko-goranska |
| Cena € | 310.000 |
| Površina | 92 m2 |
| Število sob | 3 |
| Število kopalnic | 1 |
| Bližina prevoza | DA |
| Oddaljenost od morja | 0 m |
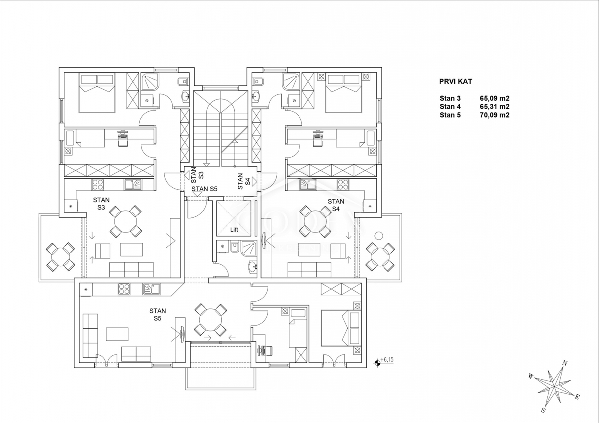
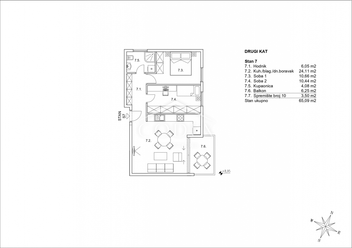
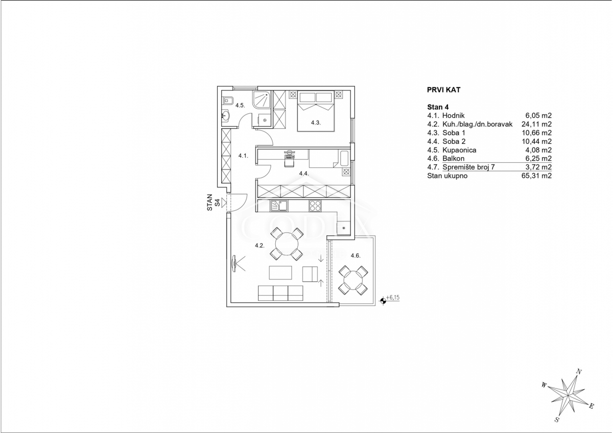
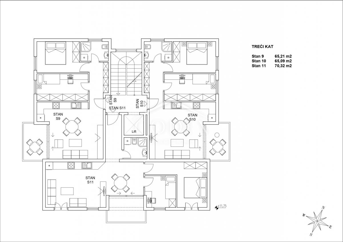
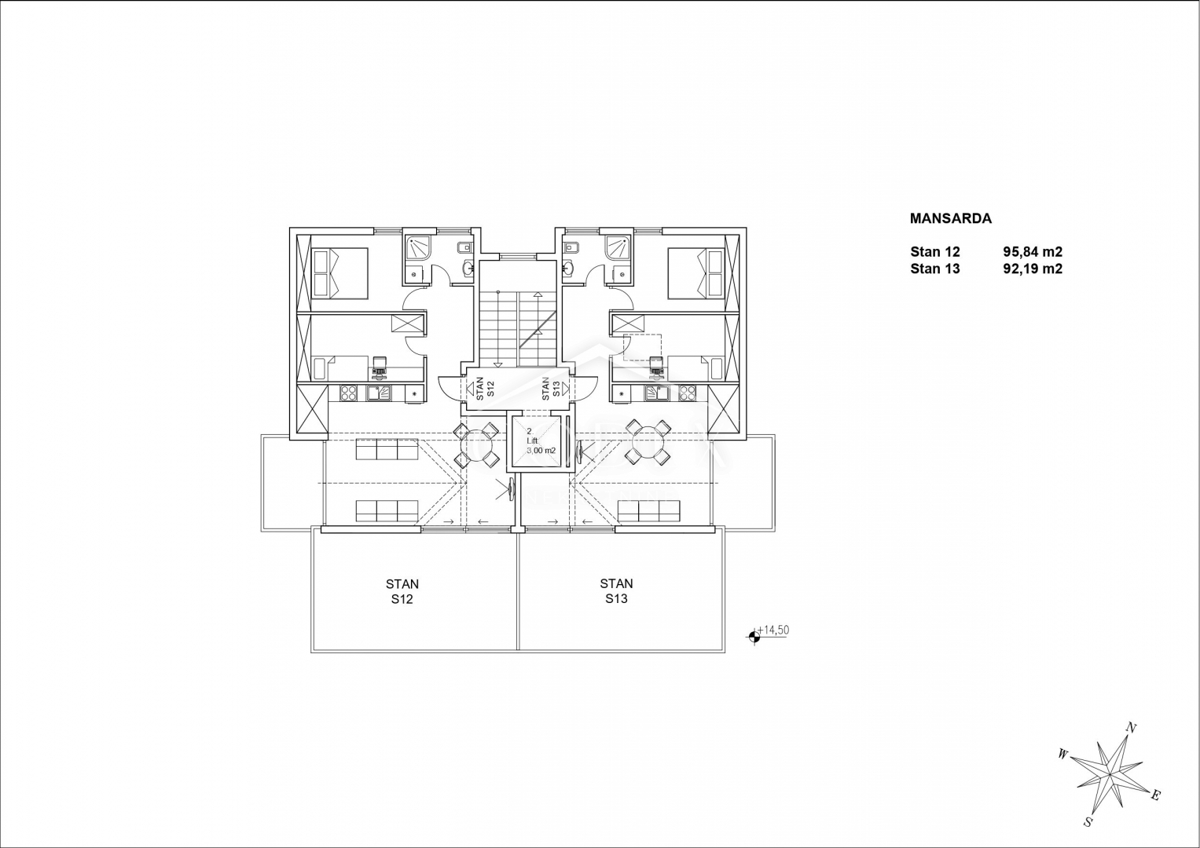
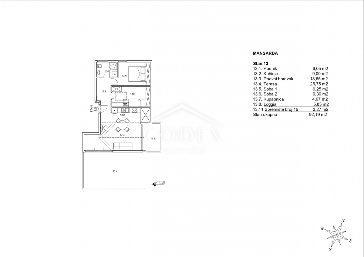
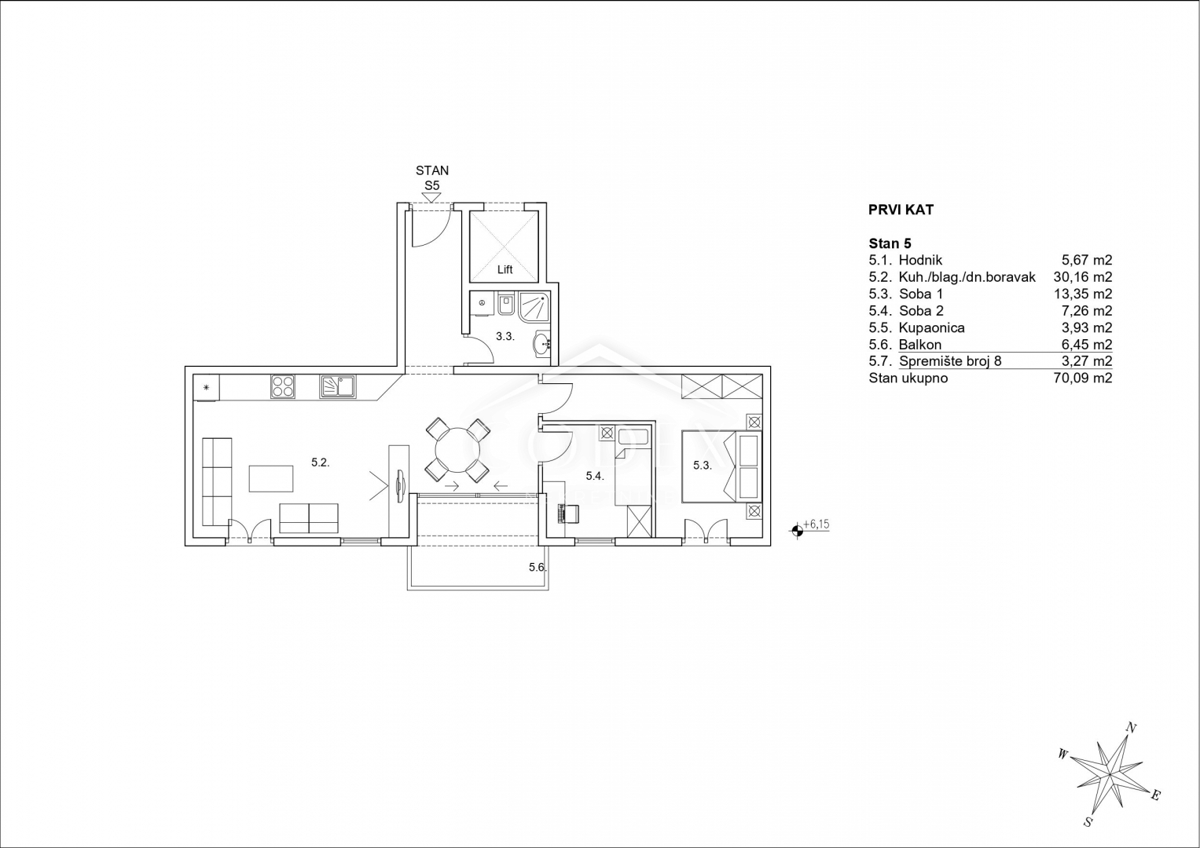
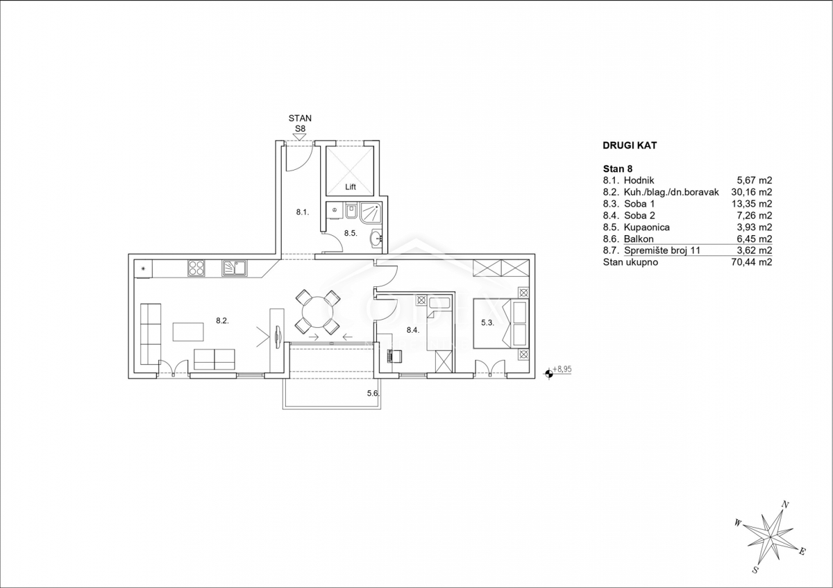
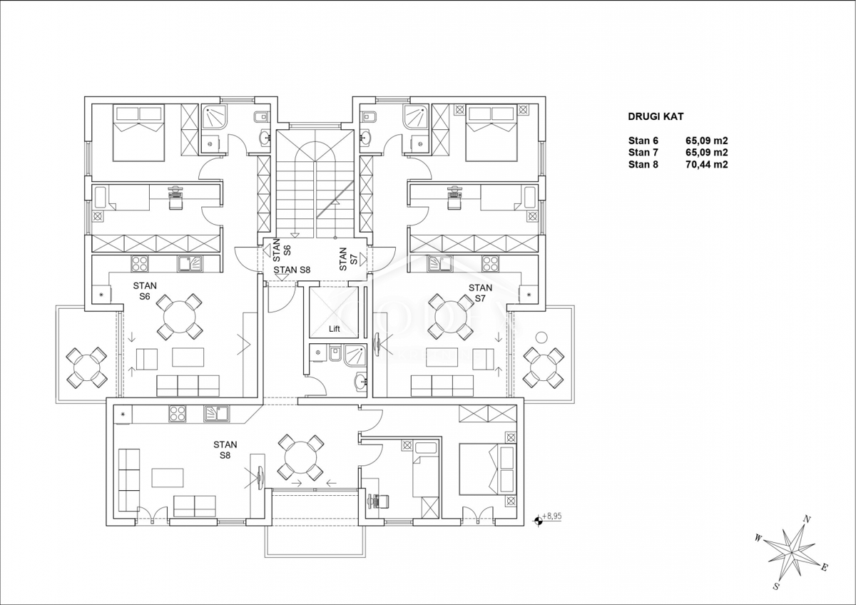
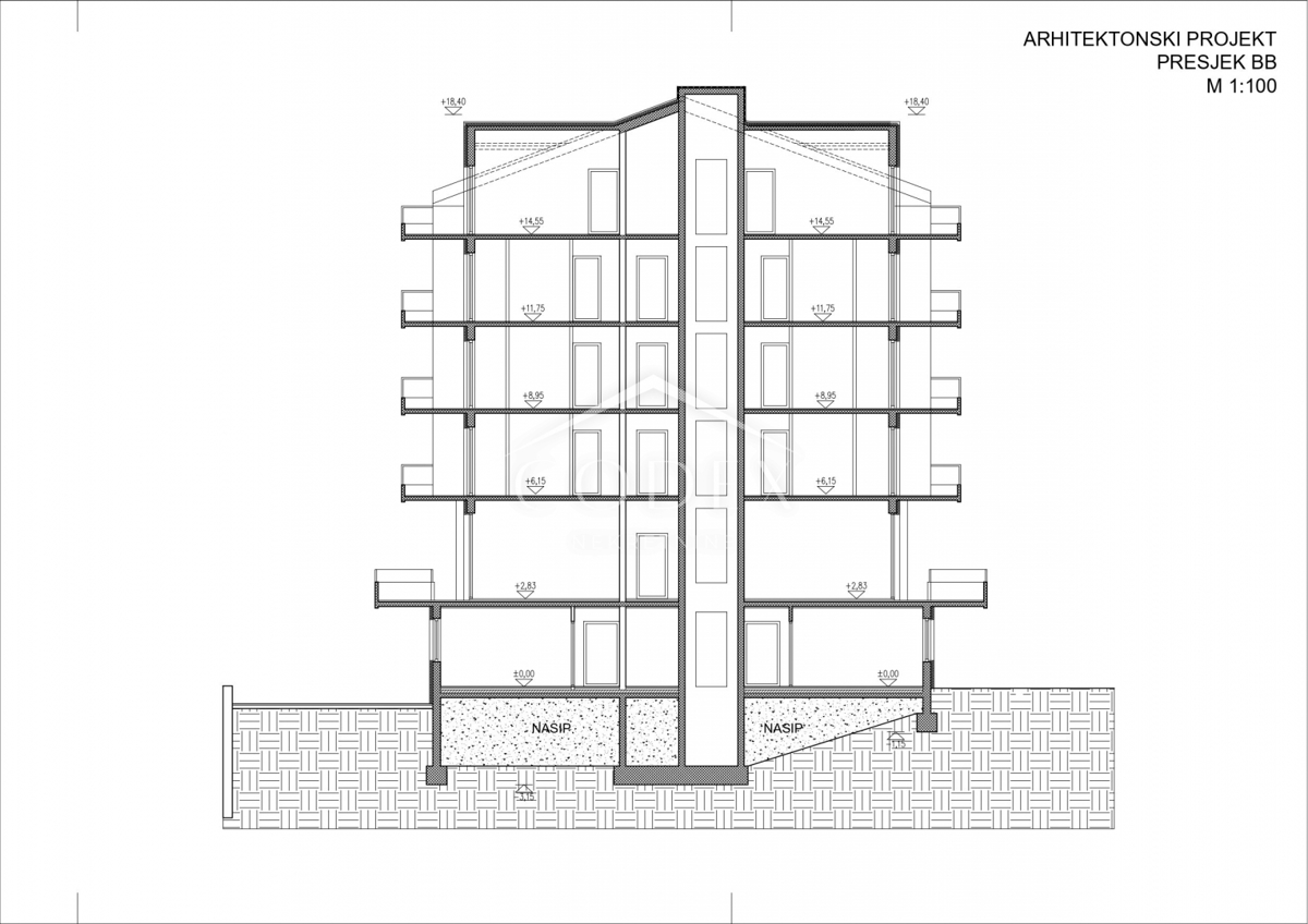
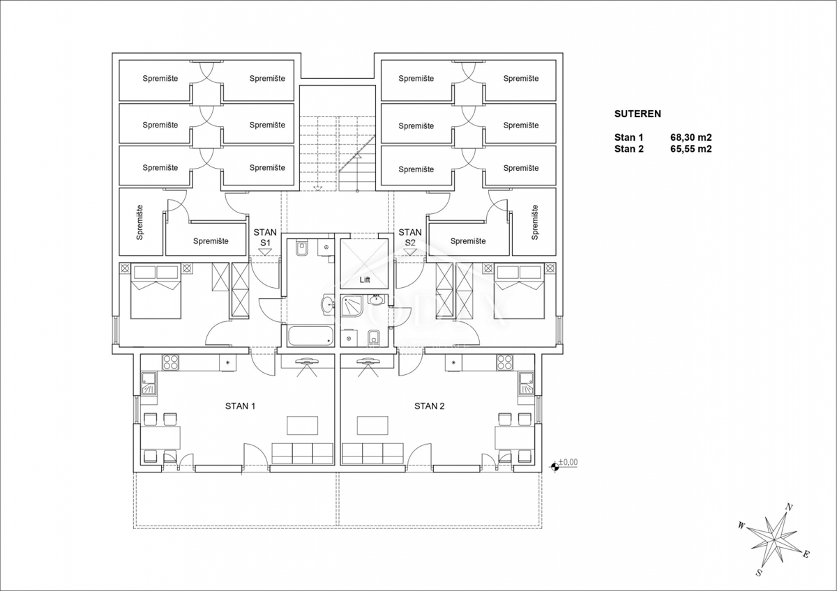
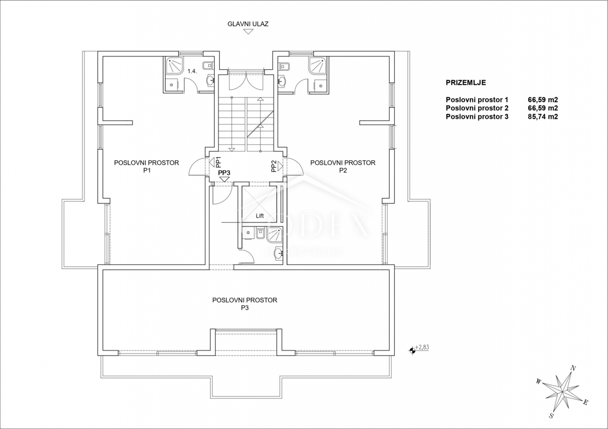
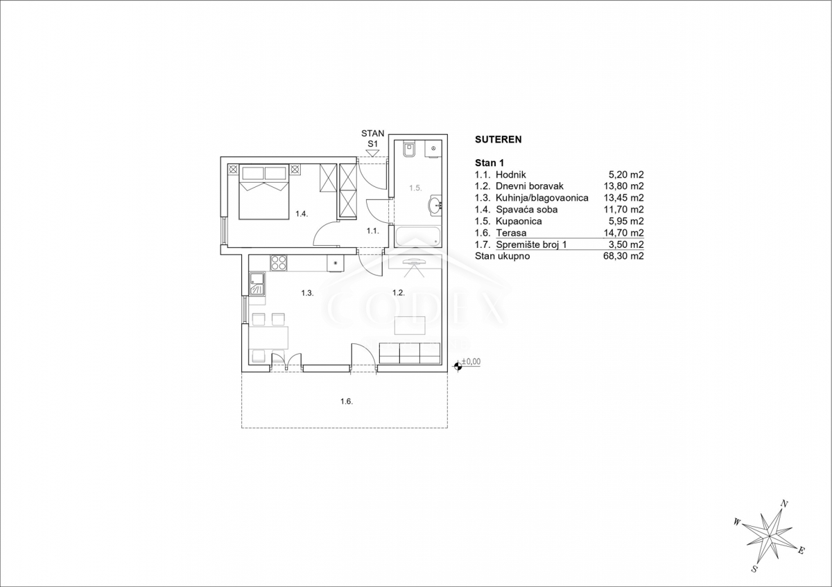
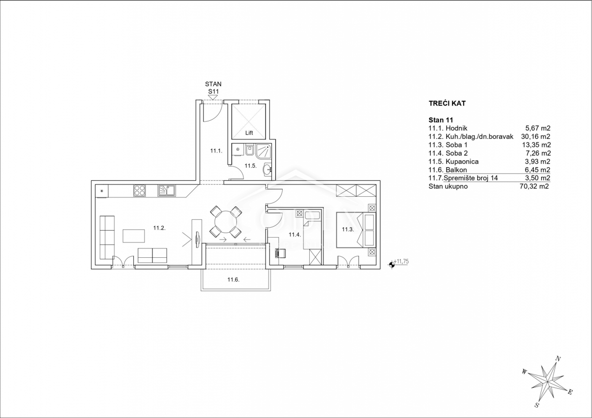
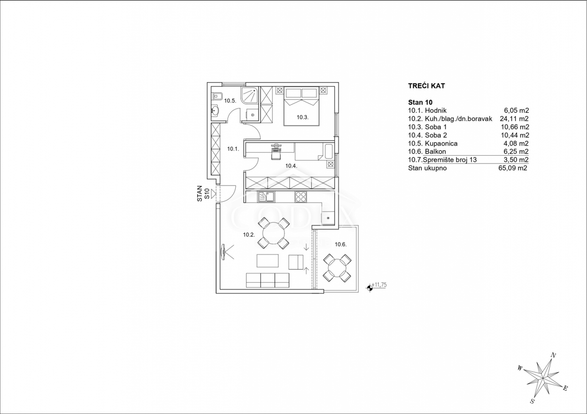
Posredujemo pri prodaji stanovanj in poslovnih prostorov v novogradnji poslovno-stanovanjske stavbe na Gornjem Zametu. Ta šestnadstropna stavba je pravilnega tlorisa, sestavljena iz 5 nadzemnih in 1 kletne etaže, s 16 enotami, od tega 13 stanovanjskih in 3 poslovne. Stanovanja so zasnovana kot eno- ali dvosobna, razporejena po 2 ali 3 stanovanja v etaži. Stavba ima dvigalo in notranje stopnišče ter je zasnovana tako, da ustreza visokemu energijskemu razredu A+. Vsa stanovanja in poslovni prostori so zgrajeni s kakovostnim mizarstvom, z protivlomnimi in protipožarnimi vrati, prvovrstnimi keramičnimi ploščicami italijanskih proizvajalcev, hrastovim parketom in kvalitetnimi sanitarijami. Zunanje pohištvo je les-alu, IZO dvoslojno steklo, vgrajene so električne žaluzije s komarniki. Notranje pohištvo je mediapan z magnetno ključavnico in skritimi konektorji. Ogrevanje je predvideno s talnim gretjem, mono blokom, toplotnimi črpalkami, za hlajenje posamezne enote pa je predvidena notranja klimatska naprava. Tudi vsa oprema v apartmajih je priznanih proizvajalcev, z dolgoletno zanesljivostjo! Parkirna mesta se nahajajo v okolici novogradenj. Zaključek gradnje je predviden poleti 2024. SEZNAM STANOVANJ IN POSLOVNIH PROSTOROV: S1 - klet - 68,30 m2 - 1s + kopalnica, terasa, shramba S2 - klet - 65,55 m2 - 1s + kopalnica, terasa, shramba PP-1 - pritličje - 66,59 m2 - 1 soba, balkon, pokrita terasa, shramba PP-2 - pritličje - 66,59 m2 - 1 soba, balkon, pokrita terasa, shramba PP-3 - pritličje - 85.74 m2 - 1 soba, 2 terasi, shramba S3 - 1. nadstropje - 65,09 m2 - 2 spalnici, balkon, shramba S4 - 1. nadstropje - 65,31 m2 - 2 spalnici, balkon, shramba S5 - 1. nadstropje - 70,09 m2 - 2 spalnici, balkon, shramba S6 - 2. nadstropje - 65,09 m2 - 2 spalnici, balkon, shramba S7 - 2. nadstropje - 65,09 m2 - 2 spalnici, balkon, shramba S8 - 2. nadstropje - 70,44 m2 - 2 spalnici, balkon, shramba S9 - 3. nadstropje - 65,21 m2 - 2 spalnici, balkon, shramba S10 - 3. nadstropje - 65,09 m2 - 2s, balkon, shramba S11 - 3. nadstropje - 70,32 m2 - 2s, balkon, shramba S12 - mansarda - 95,84 m2 - 2F+DB, terasa, loža, shramba S13 - mansarda - 92,19 m2 - 2F+DB, terasa, loža, shramba Agencijska provizija se zaračunava v skladu s Splošnimi pogoji poslovanja, ki so na voljo na spletni strani https://codexnekretnine.hr/o-nama/opci-uvjeti-poslovanja
ID: 1241047