Stanovanje - ZAMET Vprašaj za ceno
| Lokacija | ZAMET, RIJEKA, Primorsko-goranska |
| Cena € | Cena na upit |
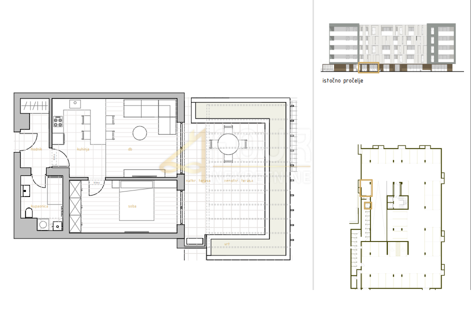
| Površina | 111 m2 |
| Število sob | 4 |
| Število kopalnic | 2 |
| Bližina prevoza | DA |
| Oddaljenost od morja | 0 m |
Redkost - novogradnja na mestni lokaciji! Na voljo je izjemno stanovanje v sodobni novogradnji v samem centru Zameta! Gre za prostorno in funkcionalno stanovanje, ki se sestoji iz hodnika, treh udobnih spalnic, garderobe, kuhinje ter prostornega dnevnega boravka in jedilnice, shrambe ter dveh kopalnic. Posebno vrednost dodaja velika loža s površino 24,22 m2 z odprtim pogledom na morje. Skupna uporabna (neto) površina stanovanja z ložo znaša 111,75 m2. Stanu pripadata shramba v kleti ter dve garažni parkirni mesti. Stavba je opremljena z kakovostnimi materiali, sodobnimi sistemi in skrbno izbranimi končnimi obdelavami, ki zagotavljajo visoko raven udobja in estetski dojam. To je priložnost za tiste, ki iščejo kakovosten, nov in izjemno prijeten prostor za družinsko življenje na odlični lokaciji. Spoštovani stranke, provizija agencije se zaračuna v skladu s splošnimi pogoji poslovanja.
ID: 1237046