Stanovanje - ZAMET Vprašaj za ceno
| Lokacija | ZAMET, RIJEKA, Primorsko-goranska |
| Cena € | Cena na upit |
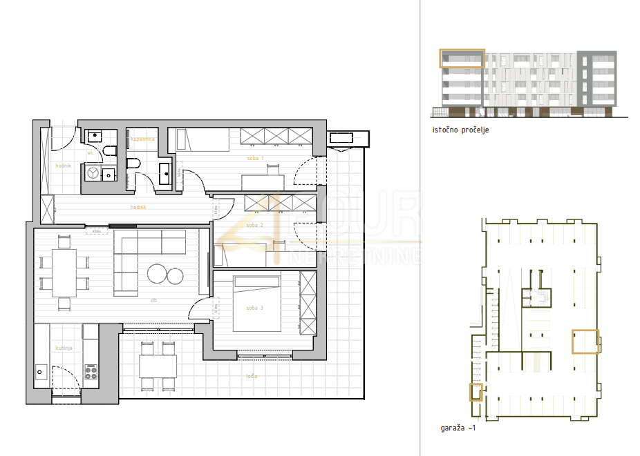
| Površina | 111 m2 |
| Število sob | 4 |
| Število kopalnic | 1 |
| Bližina prevoza | DA |
| Oddaljenost od morja | 0 m |
Redkost - novogradnja na mestni lokaciji! V ponudbi je izvrsten stan, ki se nahaja v sodobni novogradnji v samem centru Zameta! Gre za prostoren in funkcionalen stan, ki se sestoji iz predsobe, treh udobnih spalnic, kuhinje ter prostornega dnevnega prostora in jedilnice, kopalnice in dodatnega stranišča. Posebno vrednost daje velika terasa s površino 28,66 m2 z odprtim pogledom na morje. Skupna uporabna (neto) površina stanovanja s teraso znaša 111,35 m2. K stanovanju pripada shramba v kleti ter dva parkirna mesta v garaži. Zgradba je opremljena z kakovostnimi materiali, sodobnimi sistemi in skrbno izbranimi zaključnimi obdelavami, ki zagotavljajo visoko raven udobja in estetski dojam. To je priložnost za tiste, ki iščejo kakovosten, nov in izjemno prijeten prostor za družinsko življenje na odlični lokaciji. Spoštovani stranke, agencijska provizija se zaračuna v skladu z Splošnimi pogoji poslovanja.
ID: 1237044