Stanovanje - ŽABORIĆ - 374.000 EUR
| Lokacija | ŽABORIĆ, ŠIBENIK, Šibeniško-kninska |
| Cena € | 374.000 |
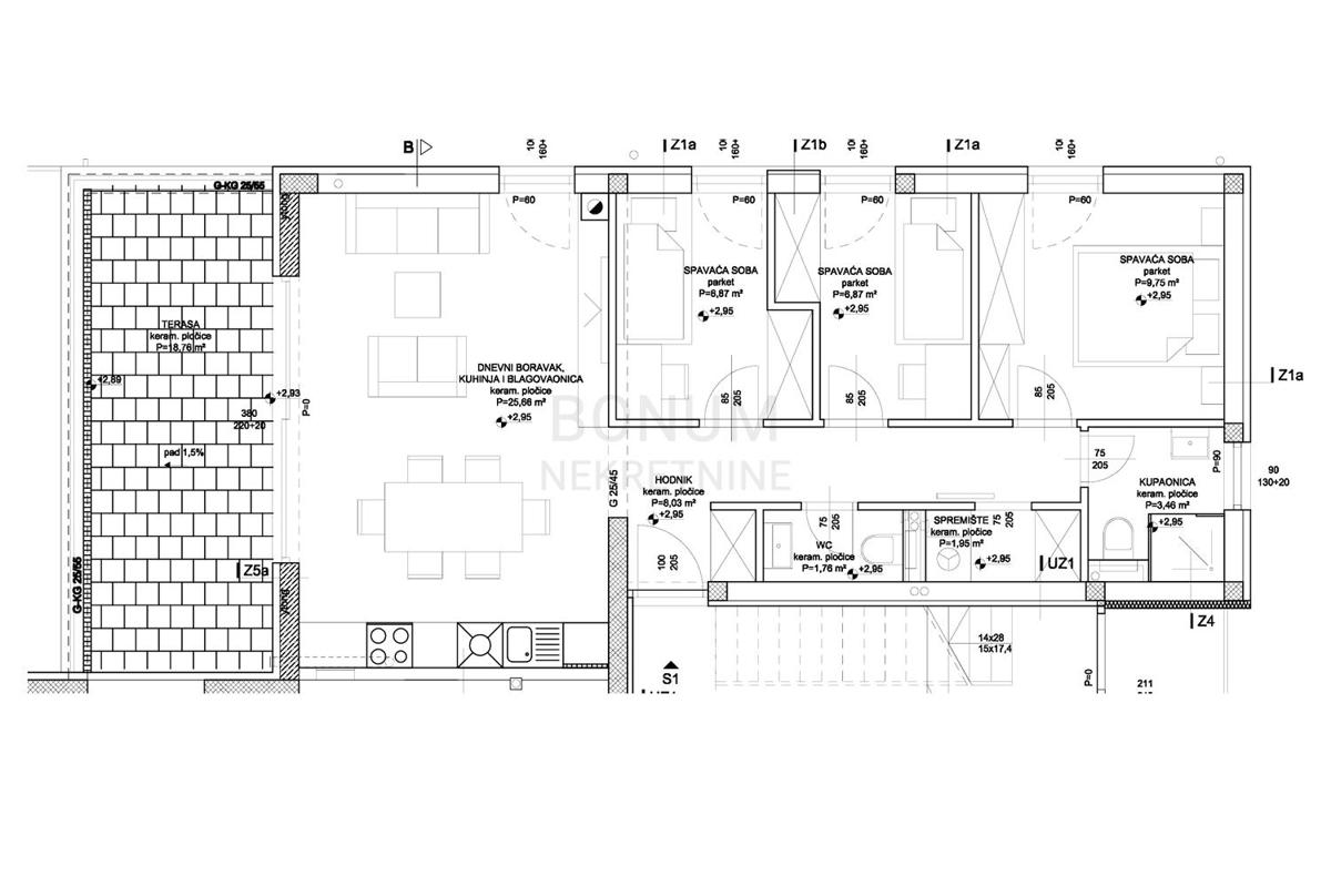
| Površina | 73 m2 |
| Število sob | 3 |
| Število kopalnic | 2 |
| Oddaljenost od morja | 130 m |
Naprodaj je moderno dvosobno stanovanje, ki se nahaja v prvem nadstropju stavbe v Žaboriću, le minuto hoje od morja. Stanovanje s skupno bivalno površino 61,38 m² je sestavljeno iz dveh spalnic, hodnika, kuhinje z jedilnico in dnevno sobo, kopalnice, dodatnega stranišča in shrambe. Dnevna soba se odpira na prostorno teraso velikosti 18,48 m², ki je idealna za večerno sprostitev ali druženje z družino in prijatelji. Vsaka soba je opremljena s klimatsko napravo, ki zagotavlja prijetno temperaturo skozi vse leto. Stanovanju pripadata dve parkirni mesti in 6,86 m² velika klet. Začetek gradnje je načrtovan za jesen 2025, zaključek del pa se pričakuje spomladi 2027. Stavba bo opremljena s sodobnimi in visokokakovostnimi materiali. Žaborić je eno najlepših mest na Šibeniški rivieri, znano po kristalno čistem morju, urejenih plažah in mirnem vzdušju, idealnem za oddih. Nahaja se le nekaj minut vožnje od Šibenika in ponuja popolno ravnovesje med mirnim življenjem ob morju in bližino vseh mestnih ugodnosti. Ta stanovanja predstavljajo odlično priložnost za nakup nepremičnine, ki združuje udobje, funkcionalnost in prestižno lokacijo, zaradi bližine plaže pa so tudi odlična izbira za turistični najem.
ID: 1212744