Stanovanje - ŽABORIĆ - 234.900 EUR
| Lokacija | ŽABORIĆ, ŠIBENIK, Šibeniško-kninska |
| Cena € | 234.900 |
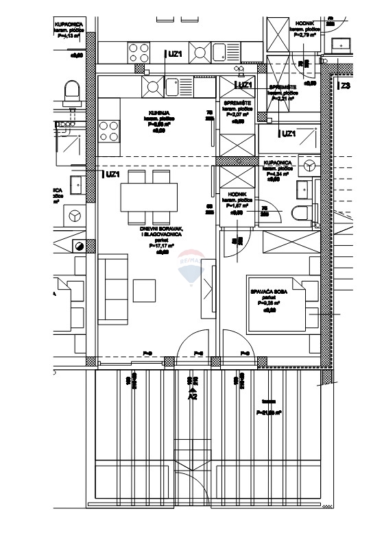
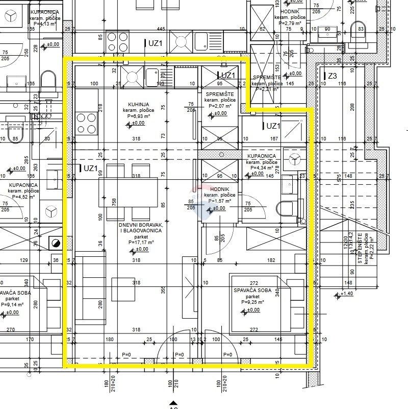
| Površina | 44 m2 |
| Število sob | 2 |
| Število kopalnic | 2 |
| Oddaljenost od morja | 130 m |
Apartma A2 v bližini morja v Žaboriću. Stanovanje ima površino 44,06 m2 + shrambo 6,69 m2 v kleti stavbe + eno parkirno mesto. Sestavljeno je iz dnevne sobe, kuhinje in jedilnice v enem prostoru, shrambe, hodnika, kopalnice in ene spalnice. Dnevna soba se odpira na pripadajoči del dvorišča (teraso). Stanovanju pripada shramba v kleti in eno parkirno mesto. Oddaljenost stavbe od morja je 130 metrov. Opis območja Žaborić je obmorsko mesto, ki se nahaja 10 kilometrov južno od Šibenika in je ena izmed priljubljenih turističnih destinacij v Šibensko-kninski županiji. Prepoznavno je po urejenih naravnih peščenih in prodnatih plažah ter kristalno čistem morju. Ob čudoviti obali Žaborića je zgrajena dolga promenada, ki obiskovalcem ponuja možnost uživanja v sončnih zahodih in nočnih sprehodih.
ID: 1225389