Parcela - VRBNIK - 170.000 EUR
| Lokacija | VRBNIK, KRK, Primorsko-goranska |
| Cena € | 170.000 |
| Površina | 885 m2 |
| Bližina prevoza | DA |
| Oddaljenost od morja | 0 m |
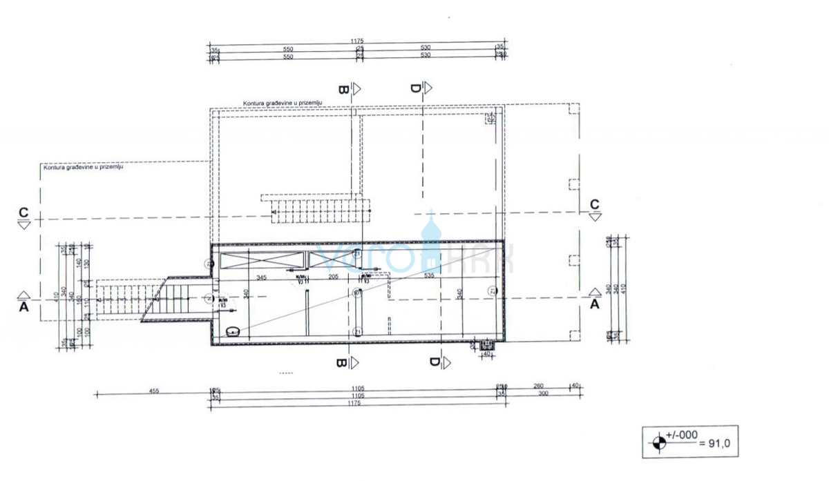
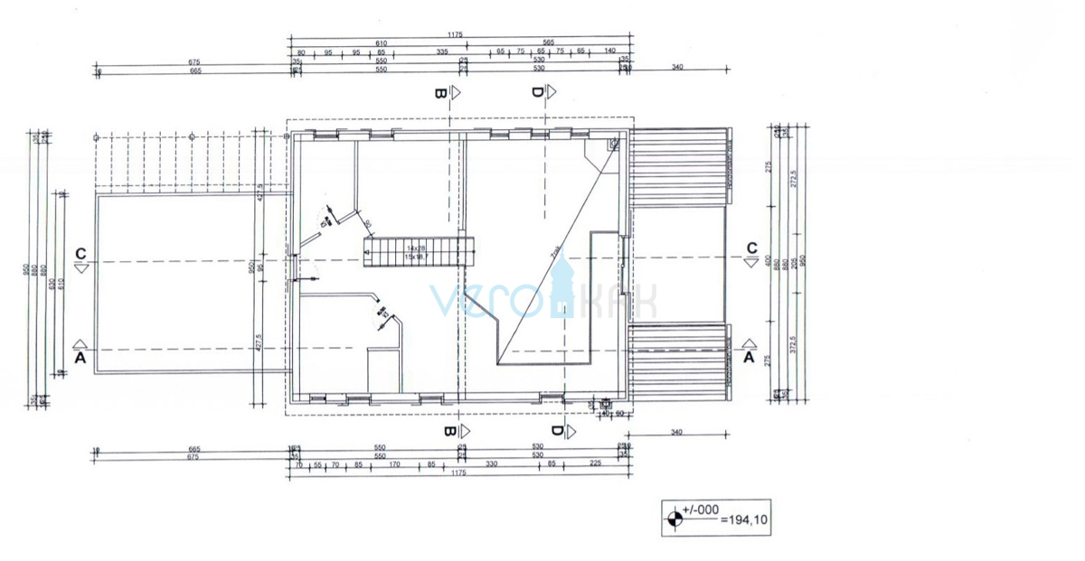
Vrbnik, okolica, gradbeno zemljišče na mirni lokaciji. Prodaja se gradbeno zemljišče z gradbenim dovoljenjem za gradnjo samostojne družinske hiše, skupne neto površine 311,40 m2 z garažo. (PR+N+N1). Zemljišče se nahaja v mirnem delu, obdano z zelenjem. Elektrika je na zemljišču, voda pa v bližini. Do morja in plaže je 1300 m. Dobrodošli na ogled!
ID: 1107037