Parcela - VRBNIK - 130.000 EUR
| Lokacija | VRBNIK, KRK, Primorsko-goranska |
| Cena € | 130.000 |
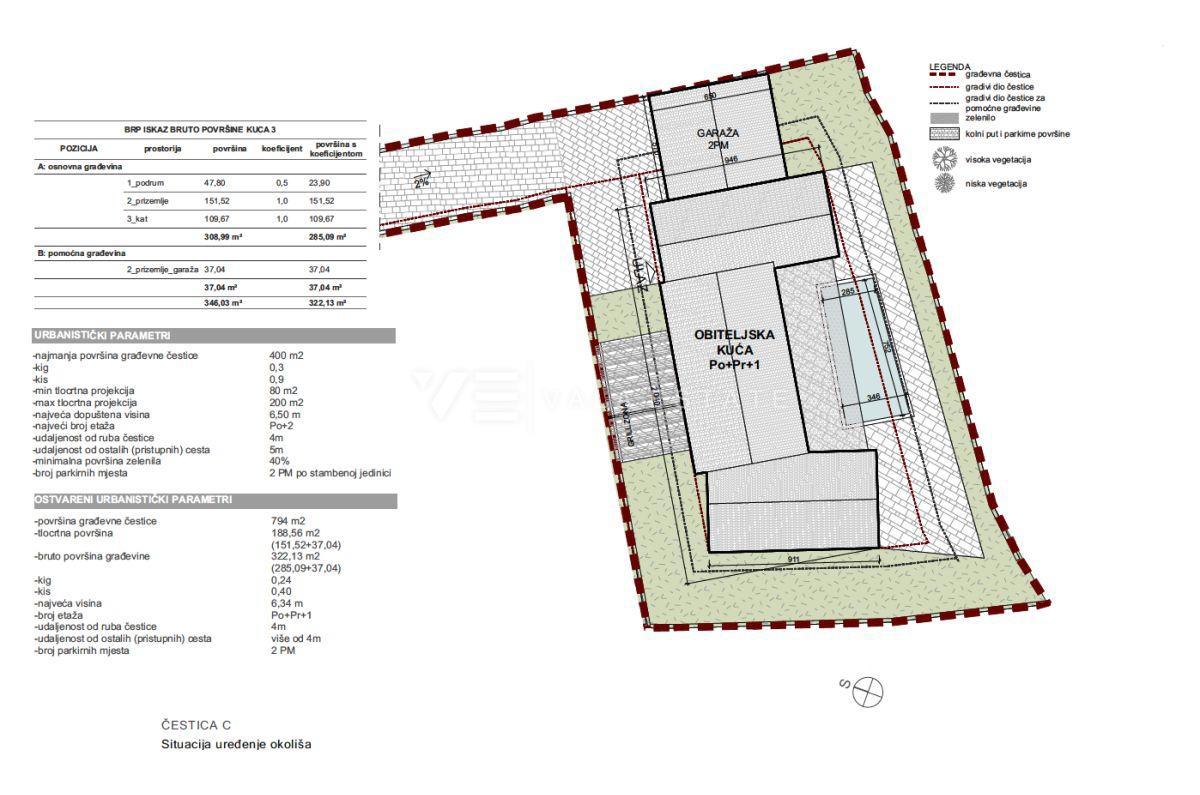
| Površina | 794 m2 |
| Bližina prevoza | DA |
| Oddaljenost od morja | 5000 m |
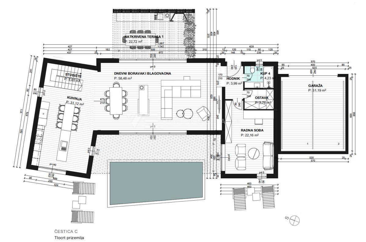
Nepremičnine otok Krk, Vrbnik širše območje - prodamo gradbeno zemljišče velikosti 794 m2 s projektno dokumentacijo za gradnjo moderne mediteranske vile za počitek ali osebno uporabo 323,13 m2 z garažo, bazenom, wellnesom in oplemenitenim vrtom. Zemljišče se nahaja na mirni lokaciji 5000 m od morja, meji na zelenico in družinske vile. Agencija Vala Estate Malinska vam bo zagotovila varen in transparenten prenos lastništva in vso potrebno dokumentacijo.
ID: 888198