Hiša - VRBNIK - 1.567.000 EUR
| Lokacija | VRBNIK, KRK, Primorsko-goranska |
| Cena € | 1.567.000 |
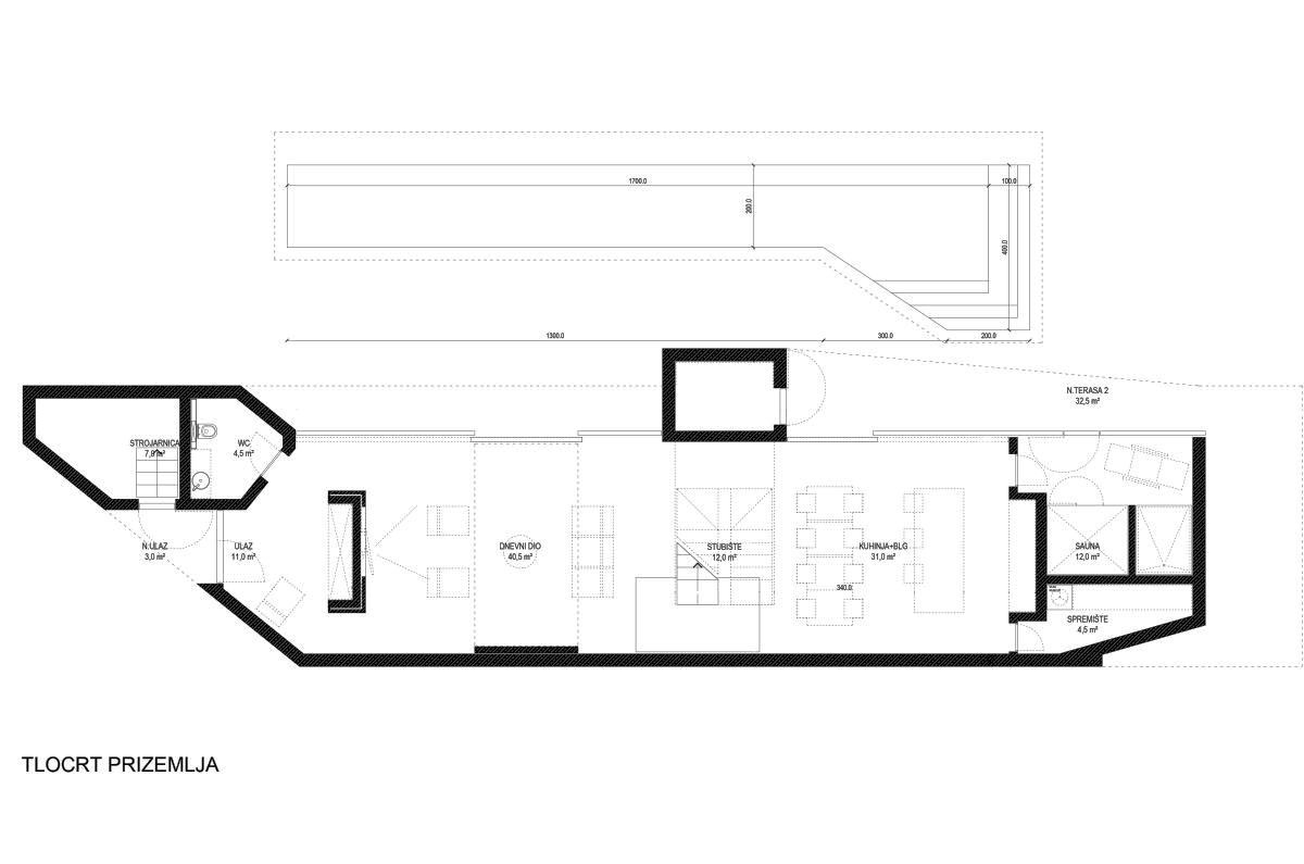
| Površina | 268 m2 |
| Število sob | 3 |
| Blizu plaže | DA |
| Oddaljenost od morja | 0 m |
Otok Krk, Vrbnik, ekskluzivna vila površine 268 m2 za prodajo, z pogledom na morje, bazenom in urejenim vrtom, na atraktivni lokaciji, 300 m od plaže. Vila je sestavljena iz pritličja z dnevno sobo, kuhinjo, jedilnico, toaletom, savno, shrambo in pokrito teraso ter prvega nadstropja s tremi spalnicami s lastnimi kopalnicami in garderobami, pralnico, hodnikom in teraso. Vrhunska gradnja in oprema, dizajnersko pohištvo, ogrevan infinity bazen, varnostni sistem, klima, talno gretje, tri parkirna mesta.
ID: 1088595