Hiša - VRBNIK - 1.560.000 EUR
| Lokacija | VRBNIK, KRK, Primorsko-goranska |
| Cena € | 1.560.000 |
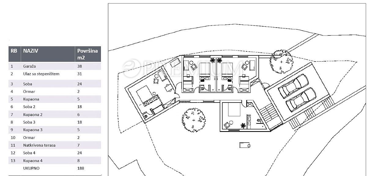
| Površina | 410 m2 |
| Število sob | 6 |
| Število kopalnic | 8 |
| Oddaljenost od morja | 1000 m |
Vrbnik, okolica – naprodaj je samostojna vila sodobno zasnovane arhitekture in vrhunske kakovosti gradnje, postavljena v popolni zasebnosti in miru, v okolici hrastovega gozda. Objekt je novogradnja (2025) in obsega dve etaži – klet in pritličje, skupne bivalne površine 410 m². V kleti se nahajajo konoba, WC, savna z wellness cono, spalnica z lastno kopalnico ter odprti dnevni prostor z kuhinjo in jedilnico, z izhodom na delno pokrito in odprto teraso. Z notranjimi stopnicami se pride v pritličje, ki obsega hodnik in štiri spalnice, vsaka s svojo kopalnico. Vila ima garažo za dve vozili ter možnost dodatnega parkiranja na parceli. Okolica je urejena z mediteranskim rastlinjem, na njej pa so bazen (16 × 2 m), sončna terasa, žar in zunanja kuhinja. Hiša je zasnovana z mislijo na funkcionalnost in udobje, z modernimi linijami in tradicionalnimi elementi, kot sta kamen in les. Opremljena je s prvovrstnimi materiali: PVC stavbno pohištvo s troslojnim steklom, talno ogrevanje z uporabo toplotne črpalke, talne obloge iz keramike in parketa, alarmni sistem, video nadzor in SAT-TV. Usmerjena proti gozdu vila nudi čudovit pogled na naravo in popolno zasebnost. Razdalja do morja je približno 1 km. Zaradi mirne lokacije, visokih standardov gradnje in združitve sodobne arhitekture z naravnim okoljem ta nepremičnina predstavlja izjemno priložnost za družinski oddih ali investicijo v luksuzni turizem. Za več informacij in dogovor za ogled kontaktirajte: Premium Nekretnine Malinska – Vaš zanesljivi partner za nepremičnine na otoku Krku. Telefon: +385 51 858 364, E-pošta: info@premium-nekretnine.com Malinska, Dubašljanska 76
ID: 1226155