Hiša - VODNJAN - 380.000 EUR
| Lokacija | VODNJAN, Istrska |
| Cena € | 380.000 |
| Površina | 150 m2 |
| Število sob | 6 |
| Površina parcele | 950 m2 |
| Število kopalnic | 5 |
| Oddaljenost od morja | 0 m |
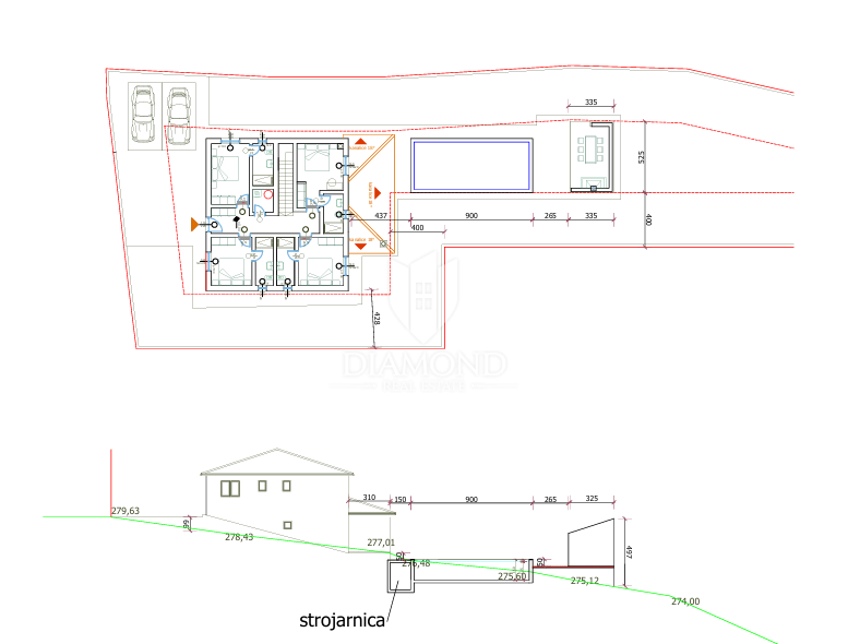
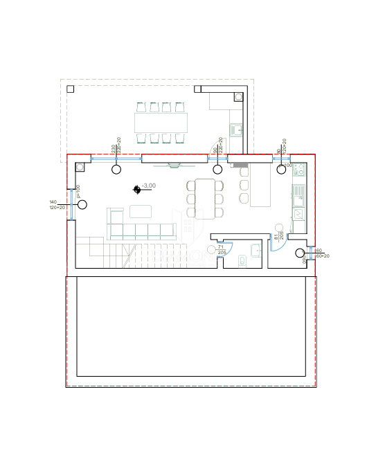
Okolica Vodnjana, Istra V mirnem delu okolice Vodnjana, obdanem z zelenjem in naravo, je v gradnji moderna družinska hiša z bazenom. Nepremičnina nudi popolno zasebnost in mir, saj je zemljišče okoli hiše gozd v lasti Republike Hrvaške, kar zagotavlja ohranjeno naravno okolje brez neposrednih sosedov. Hiša stoji na rahlem pobočju in je arhitekturno zasnovana z dvema ločenima vhodoma. Zgornje nadstropje je dostopno neposredno s parkirišča in obsega štiri spalnice, vsako z lastno kopalnico. Notranje stopnišče vodi v pritličje, kjer se nahaja prostorna in svetla kuhinja z jedilnico, dnevna soba ter glavni izhod na teraso s čudovitim razgledom na zelenje in gozd. Pred hišo je zunanja jedilnica ter dodatni objekt z žarom, barom in prostorom za druženje ob bazenu velikosti 36 m². Ta skrbno zasnovana hiša ponuja udobje, zasebnost in povezanost z naravo – idealna izbira za mirno družinsko življenje ali kot sodobna počitniška vila v Istri. Kontaktirajte nas za več informacij ali dogovorite ogled.
ID: 1259187