Stanovanje - VODICE - 793.750 EUR
| Lokacija | VODICE, Šibeniško-kninska |
| Cena € | 793.750 |
| Površina | 193 m2 |
| Število sob | 4 |
| Površina parcele | 88 m2 |
| Število kopalnic | 3 |
| Bližina prevoza | DA |
| Oddaljenost od morja | 800 m |
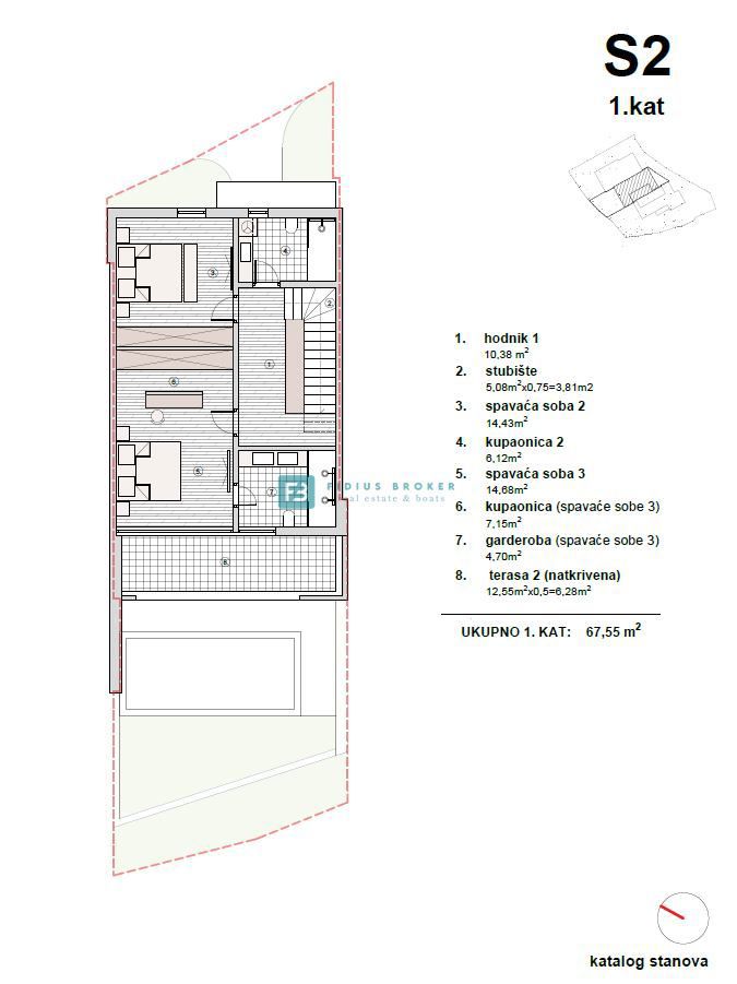
VODICE - Prodaja luksuznega trietažnega apartmaja z bazenom, strešno teraso in pogledom na morje, ki se nahaja na rahlem hribu! Začela se je gradnja nove moderne stavbe s tremi stanovanjskimi enotami v vrsti. Stavba se nahaja na atraktivni lokaciji v novem stanovanjskem območju mesta Vodice. Le 800 m od plaže in 1200 m od centra mesta ponuja popolno ravnovesje med zasebnostjo in bližino vseh potrebnih objektov. Ena največjih prednosti te nepremičnine je trietažna razporeditev, ki zagotavlja več zasebnosti in več bivalnega prostora. Vsak apartma ima bazen in veliko zasebno dvorišče, ki bo ograjeno in urejeno po projektu. Ta nepremičnina predstavlja popolno kombinacijo razkošja, udobja in lepo urejene okolice. Za gradnjo bodo uporabljeni kakovostni materiali in vgrajena bo vrhunska oprema: 10 cm polistirenska fasada, protivlomna in protipožarna vhodna vrata, antracitno aluminijasto stavbno pohištvo, dvižno-drsne stene s steklom Sun Gard z zaščito pred soncem, električne rolete, vgrajeni komarniki, talno ogrevanje s toplotnimi črpalkami, klimatska naprava v vseh prostorih, moderna kopalniška oprema, kakovostna tla, steklena ograja, video nadzor. Predviden datum vselitve - november 2026 Tristopenjsko stanovanje S2 s funkcionalno in prostorno razporeditvijo ima 193,67 m2 skupne neto uporabne površine (164,22 m2 bivalnega prostora + 15 m2 bazena + 50,93 m2 dvorišča + 37,43 m2 parkirnega mesta). Razprostira se v treh nadstropjih: pritličje + 1. nadstropje + strešna terasa. Pritličje s površino 75,04 m2 ima pokrit vhod, predsobo, spalnico, kopalnico, kuhinjo z jedilnico in dnevno sobo z dostopom do pokrite terase velikosti 13,28 m2. Velika drsna stena ponuja čudovit razgled na vrt in ogrevan bazen velikosti 15 m2 s prostorom za sončenje. Notranje stopnišče vodi v prvo nadstropje velikosti 67,55 m2, kjer se nahaja hodnik, glavna spalnica z lastno kopalnico, garderoba in pokrita terasa velikosti 12,55 m2, spalnica in kopalnica. Stopnice vodijo na strešno teraso velikosti 21,63 m2 s panoramskim razgledom na morje in okolico. Opremljeno je s priključki za vodo in elektriko, ki jo je mogoče preurediti v sproščujočo oazo z jacuzzijem, idealno za uživanje na prostem. Stanovanju pripadata dve parkirni mesti. Cena je 793.750 € (DDV vključen - kupec je oproščen plačila 3 % davka na nepremičnine). DRUGO NA VOLJO V STAVBI Dvoetažno stanovanje S1 s funkcionalno in prostorno razporeditvijo ima 168,08 m2 skupne neto uporabne površine (137,06 m2 bivalnega prostora + 15 m2 bazena + 79,32 m2 dvorišča + 32,35 m2 parkirnega mesta). Razteza se v dveh nadstropjih: pritličje + 1. nadstropje. Pritličje s površino 73,26 m2 ima pokrit vhod, predsobo, spalnico, kopalnico, kuhinjo z jedilnico in dnevno sobo z dostopom do 14,20 m2 pokrite terase. Velika drsna stena ponuja čudovit razgled na vrt in 15 m2 ogrevan bazen s prostorom za sončenje. Notranje stopnišče vodi v prvo nadstropje s površino 63,80 m2, kjer se nahaja hodnik, glavna spalnica z lastno kopalnico, garderoba in 12,60 m2 pokrite terase, spalnica z garderobo in kopalnico. Stanovanju pripada 1 parkirno mesto. Cena je 675.000 € (DDV vključen - kupec je oproščen plačila 3 % davka na nepremičnine).. Tristopenjsko stanovanje S3 s funkcionalno in prostorno razporeditvijo ima 204,04 m2 skupne neto uporabne površine (171,67 m2 bivalne površine + 15 m2 bazena + 87,31 m2 dvorišča + 34,56 m2 parkirnega mesta). Razprostira se na treh nadstropjih: pritličje + 1. nadstropje + strešna terasa. Pritličje s površino 78,17 m2 ima pokrit vhod, predsobo, shrambo, spalnico, kopalnico, kuhinjo z jedilnico in dnevno sobo z dostopom do 12,14 m2 pokrite terase. Velika drsna stena ponuja čudovit razgled na vrt in 15 m2 ogrevan bazen s prostorom za sončenje. Notranje stopnišče vodi v prvo nadstropje velikosti 71,04 m2, kjer se nahajajo hodnik, glavna spalnica z lastno kopalnico in pokrito teraso velikosti 10,67 m2, spalnica z nepokrito teraso velikosti 4,60 m2 in kopalnica. Stopnice vodijo na strešno teraso velikosti 22,46 m2 s panoramskim razgledom na morje in okolico. Opremljena je s priključki za vodo in elektriko, ki jo je mogoče preurediti v sproščujočo oazo z jacuzzijem, idealno za uživanje na prostem. Stanovanju pripadata dve parkirni mesti. Cena je 825.000 € (z vključenim DDV - kupec je oproščen plačila 3 % davka na nepremičnine). Za več informacij nas kontaktirajte po telefonu ali elektronski pošti.
ID: 1285718