Stanovanje - VODICE - 660.000 EUR
| Lokacija | VODICE, Šibeniško-kninska |
| Cena € | 660.000 |
| Površina | 204 m2 |
| Število sob | 4 |
| Površina parcele | 121 m2 |
| Število kopalnic | 3 |
| Bližina prevoza | DA |
| Oddaljenost od morja | 800 m |
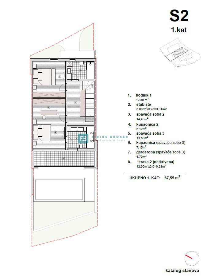
VODICE - Nov projekt luksuznega trietažnega stanovanja z bazenom, strešno teraso in pogledom na morje, ki se nahaja na rahlem hribu! Jeseni 2025 se bo začela gradnja nove moderne stavbe s tremi stanovanjskimi enotami v vrsti. Objekt se nahaja na atraktivni lokaciji v novi stanovanjski coni mesta Vodice. Le 800 m od plaže in 1200 m od centra mesta ponuja popolno ravnovesje med zasebnostjo in bližino vseh potrebnih ugodnosti. Ena največjih prednosti te nepremičnine je trinadstropna razporeditev, ki zagotavlja večjo zasebnost in več bivalnega prostora. Vsako stanovanje ima bazen in veliko zasebno dvorišče, ki bo ograjeno in urejeno po projektu. Ta nepremičnina predstavlja popolno kombinacijo razkošja, udobja in čudovito urejene okolice. Za gradnjo bodo uporabljeni kakovostni materiali in vgrajena bo vrhunska oprema: 10 cm polistirenska fasada, protivlomna in protipožarna vhodna vrata, antracitno aluminijasto stavbno pohištvo, dvižno-drsne stene s steklom Sun Gard z zaščito pred soncem, električne rolete, vgrajeni komarniki, talno ogrevanje s toplotnimi črpalkami, klimatska naprava v vseh prostorih, moderna sanitarna oprema v kopalnicah, kakovostne talne obloge, steklene ograje, video nadzor. Predviden datum vselitve - 09./2026. leta Trietažno stanovanje S3 s funkcionalno in prostorno razporeditvijo ima 204,04 m2 skupne neto uporabne površine (171,67 m2 bivalne površine + 15 m2 bazena + 87,31 m2 dvorišča + 34,56 m2 parkirnega mesta). Razprostira se čez tri nadstropja: pritličje + 1. nadstropje + strešna terasa. V pritličju velikosti 78,17 m2 se nahaja pokrit vhod, vhodni prostor, shramba, spalnica, kopalnica, kuhinja z jedilnico in dnevna soba z izhodom na pokrito teraso velikosti 12,14 m2. Velika drsna stena ponuja čudovit razgled na vrt in 15 m2 velik ogrevan bazen s prostorom za sončenje. Notranje stopnišče vodi v prvo nadstropje velikosti 71,04 m2, kjer se nahajajo hodnik, glavna spalnica z lastno kopalnico in pokrito teraso velikosti 10,67 m2, spalnica z nepokrito teraso velikosti 4,60 m2 in kopalnica. Stopnice vodijo na strešno teraso velikosti 22,46 m2, ki ponuja panoramski razgled na morje in okolico. Opremljen je s priključki za vodo in elektriko, ki jih je mogoče preurediti v sproščujočo oazo z jacuzzijem, idealno za uživanje na prostem. Stanovanju pripadata dve parkirni mesti. Cena je 660.000 € (z vključenim DDV - kupec je oproščen plačila 3 % davka na nepremičnine). DRUGO NA VOLJO Dupleks stanovanje S1 s funkcionalno in prostorno razporeditvijo ima 168,08 m2 skupne neto uporabne površine (137,06 m2 bivalne površine + 15 m2 bazena + 79,32 m2 dvorišča + 32,35 m2 parkirnega mesta). Razprostira se čez dve nadstropji: pritličje + 1. nadstropje. V pritličju velikosti 73,26 m2 se nahaja pokrit vhod, predsoba, spalnica, kopalnica, kuhinja z jedilnico in dnevna soba z izhodom na pokrito teraso velikosti 14,20 m2. Velika drsna stena ponuja čudovit razgled na vrt in 15 m2 velik ogrevan bazen s prostorom za sončenje. Notranje stopnišče vodi v prvo nadstropje velikosti 63,80 m2, kjer se nahaja hodnik, glavna spalnica z lastno kopalnico, garderobna soba in pokrita terasa velikosti 12,60 m2, spalnica z garderobno sobo in kopalnica. Stanovanju pripada 1 parkirno mesto. Cena je 540.000 € (z vključenim DDV - kupec je oproščen plačila 3 % davka na nepremičnine). Trietažno stanovanje S2 s funkcionalno in prostorno razporeditvijo ima 193,67 m2 skupne neto uporabne površine (164,22 m2 bivalne površine + 15 m2 bazena + 50,93 m2 dvorišča + 37,43 m2 parkirnega mesta). Razprostira se čez tri nadstropja: pritličje + 1. nadstropje + strešna terasa. V pritličju velikosti 75,04 m2 se nahaja pokrit vhod, predsoba, spalnica, kopalnica, kuhinja z jedilnico in dnevna soba z izhodom na pokrito teraso velikosti 13,28 m2. Velika drsna stena ponuja čudovit razgled na vrt in 15 m2 velik ogrevan bazen s prostorom za sončenje. Notranje stopnišče vodi v prvo nadstropje velikosti 67,55 m2, kjer se nahajajo hodnik, glavna spalnica z lastno kopalnico, garderobna soba in pokrita terasa velikosti 12,55 m2, spalnica in kopalnica. Stopnice vodijo na strešno teraso velikosti 21,63 m2, ki ponuja panoramski razgled na morje in okolico. Opremljen je s priključki za vodo in elektriko, ki jih je mogoče preurediti v sproščujočo oazo z jacuzzijem, idealno za uživanje na prostem. Stanovanju pripadata dve parkirni mesti. Cena je 635.000 € (z vključenim DDV - kupec je oproščen plačila 3 % davka na nepremičnine). Za več informacij nas kontaktirajte po telefonu ali elektronski pošti.
ID: 1245033