Stanovanje - VODICE - 546.000 EUR
| Lokacija | VODICE, Šibeniško-kninska |
| Cena € | 546.000 |
| Površina | 102 m2 |
| Število sob | 3 |
| Število kopalnic | 1 |
| Blizu plaže | DA |
| Oddaljenost od morja | 0 m |
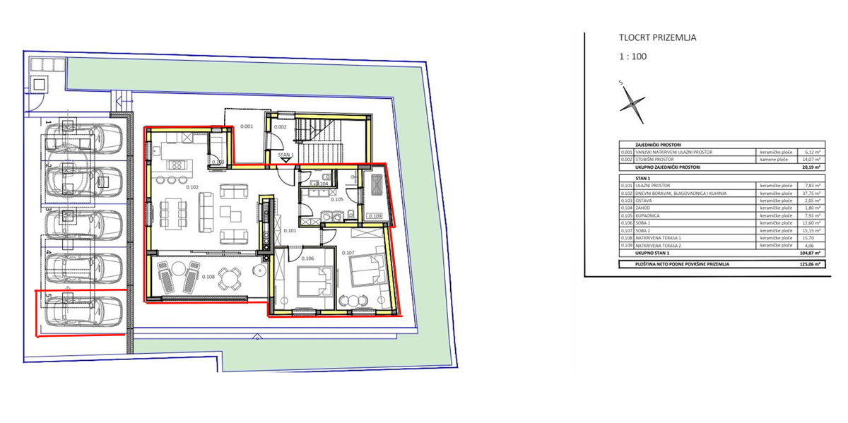
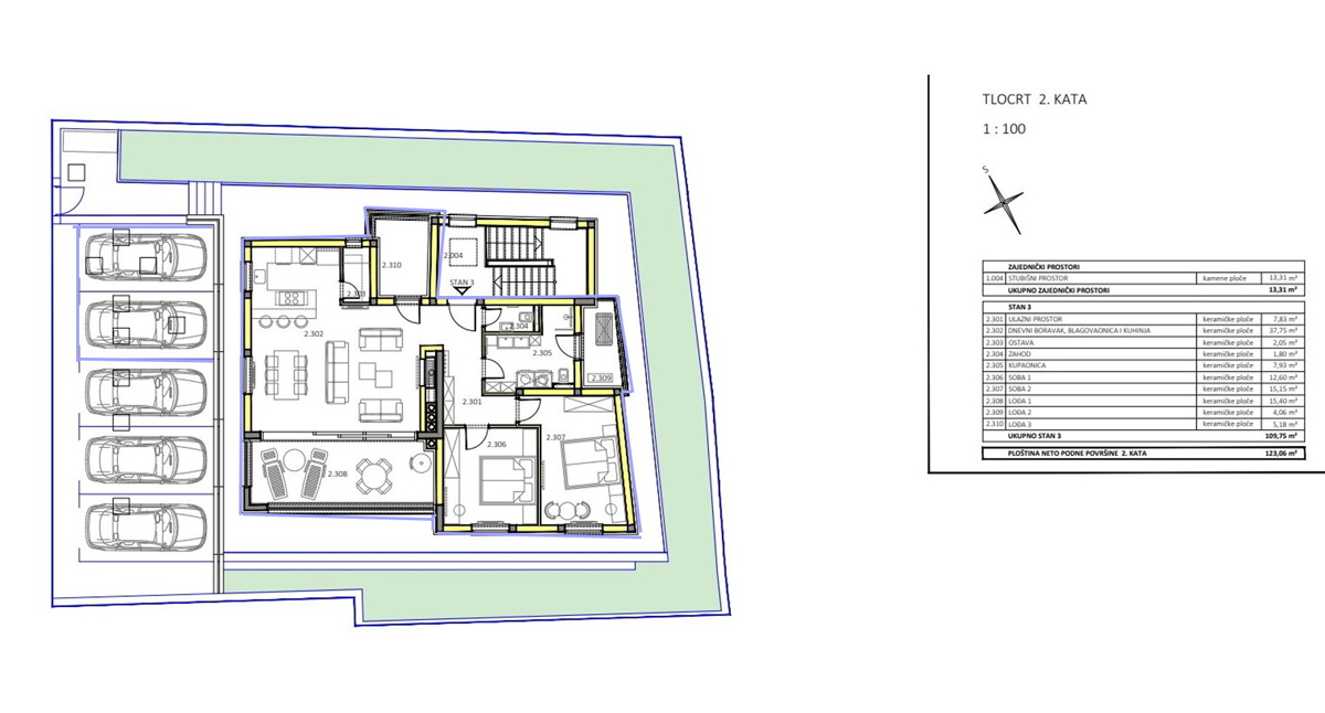
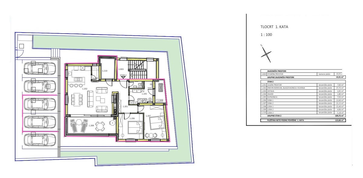
Vodice-**NOVOGRADNJA** *POGLED NA MORJE* na ekskluzivni lokaciji, le 30 m od urejene plaže v mestu so luksuzna stanovanja, ki bodo zadovoljila najvišje standarde sodobnega bivanja. Stanovanja bodo umeščena v manjšo stanovanjsko zgradbo s tremi nadstropji, vsako nadstropje je eno stanovanje z odprtim panoramskim pogledom na morje in otoke. Pri gradnji bodo uporabljeni visokokakovostni materiali in oprema, ki ustreza sodobnim standardom: vrhunska keramika, kakovostna zunanja okna in vrata (troslojno steklo, električni dvigalci rolet, mreže proti komarjem), steklene ograje, talno ogrevanje v kopalnici, hodniku in dnevni sobi, klimatske naprave v vseh prostorih ter sodobna kopalniška oprema... Ta projekt je skrbno zasnovan in združuje prefinjen dizajn ter funkcionalnost. Predvideni rok zaključka gradnje je 31. 12. 2026. S1 stanovanje v pritličju stavbe s skupno neto površino 103 m2 obsega vhodni prostor, kuhinjo z shrambno sobo, jedilnico, prostorno dnevno sobo (37,75 m2) z izhodom na ložo površine 15,40 m2 ter dve spalnici, kopalnico, ločeno WC in drugo ložo. Stanovanju pripada eno parkirno mesto in vrt površine približno 65 m2. CENA: 546.000,00 € Druge možnosti v objektu: S2 stanovanje v prvem nadstropju stavbe s skupno površino 109,59 m2 obsega vhodni prostor, kuhinjo z shrambno sobo, jedilnico, prostorno dnevno sobo (37,75 m2) z izhodom na ložo površine 15,40 m2 ter dve spalnici, kopalnico, WC in dve pokriti loži. Stanovanju pripadata dve parkirni mesti. Cena: 586.000,00 €. S3 stanovanje v drugem nadstropju stavbe s skupno površino 109,59 m2 obsega vhodni prostor, kuhinjo z shrambno sobo, jedilnico, prostorno dnevno sobo (37,75 m2) z izhodom na ložo površine 15,40 m2 ter dve spalnici, kopalnico, WC in dve pokriti loži. Stanovanju pripadata dve parkirni mesti. Cena: 592.000,00 €. Vodice so eno izmed najbolj atraktivnih turističnih središč na Jadranu, ki leži ob obali šibeniškega zaliva. Znane so po svoji bogati zgodovini, živahnih ulicah in tradicionalni dalmatinski arhitekturi. Ponujajo popolno kombinacijo mediteranskega šarma in sodobnih vsebin s kristalno čistim morjem, naravno senco borovcev ter raznolikimi vsebinami. To območje nudi bogato izbiro restavracij z avtohtono dalmatinsko kulinariko, kavarn, trgovin in marin, ob čudovitih plažah in sprehajališčih ob morju. Vodice se nahajajo v bližini narodnih parkov Krka in Kornati ter so znane tudi po raznolikih kulturnih prireditvah. Idealno so mesto za življenje in počitek skozi vse leto. Z nakupom nepremičnine na tej prestižni lokaciji si zagotavljate ne le dom, temveč tudi edinstven življenjski slog na eni najbolj zaželenih destinacij na Hrvaškem.
ID: 1221362