Stanovanje - VODICE - 527.016 EUR
| Lokacija | VODICE, Šibeniško-kninska |
| Cena € | 527.016 |
| Površina | 125 m2 |
| Število sob | 4 |
| Število kopalnic | 2 |
| Oddaljenost od morja | 0 m |
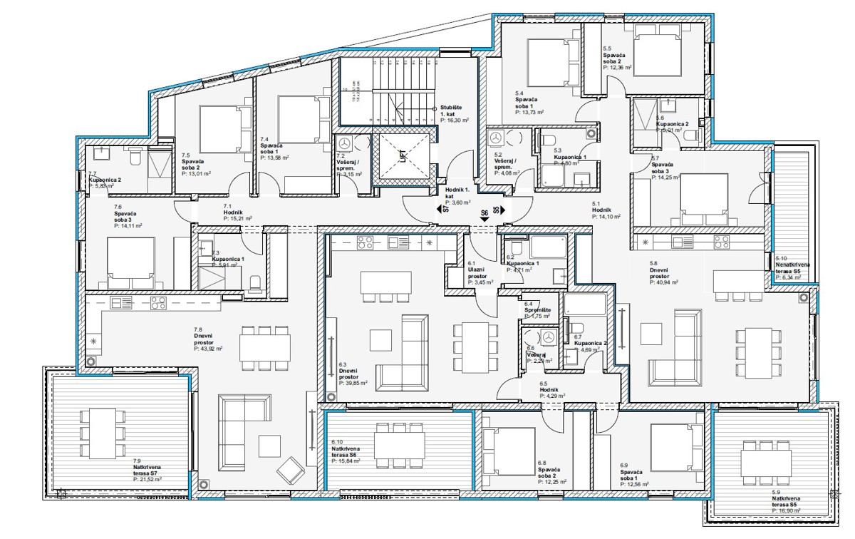
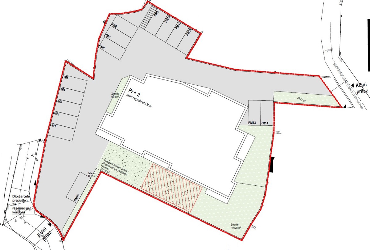
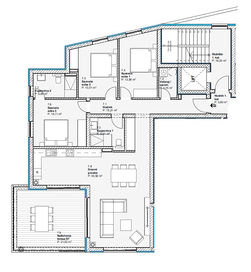
VODICE – STAN S7, PRVO NADSTROPJE – MODERNA NOVOGRADNJA S TERASO, POGLED NA MORJE – 125,48 m2 Prodaja stanovanja S7 v prvem nadstropju sodobne stanovanjske stavbe z dvigalom, ki se nahaja na mirni in privlačni lokaciji v Vodicah, le 700 m od plaže in 750 m od središča mesta. Stavba sodobne zasnove ima skupaj 10 stanovanj (klet + pritličje + 1. nadstropje + 2. nadstropje) in je zgrajena iz kakovostnih materialov ter po najnovejših gradbenih standardih. Predviden začetek gradnje je začetek leta 2025, zaključek pa poletje 2026. Stanovanje S7 v 1. nadstropju s skupno površino 125,48 m2 obsega: vhod, hodnik, pralnico, kopalnico 1, dve spalnici, spalnico z lastno kopalnico, kuhinjo z jedilnico in dnevno sobo ter pokrito teraso velikosti 21,52 m2. Stanovanju pripadata shramba v kleti in eno parkirno mesto. CENA: 527.016,00 € (DDV vključen v ceno stanovanja). OPREMA IN STANDARDI: - fasada iz stiropora - PVC stavbno pohištvo antracitne barve - elektromotorne žaluzije - kamnite talne obloge - sodobna kopalniška oprema - talno ogrevanje - inverter klimatske naprave v vseh prostorih in dnevni sobi - dvigalo v stavbi VSA RAZPOLOŽLJIVA STANOVANJA V OBJEKTU: PRITLIČJE: Stanovanje S1 s skupno površino 74,78 m2 obsega vhod, WC/pralnico, hodnik, kopalnico, dve spalnici, kuhinjo z jedilnico in dnevno sobo ter delno pokrito teraso velikosti 19,71 m2. Stanovanju pripada ustrezen del vrta, shramba v kleti in eno parkirno mesto. CENA: 291.642,00 € (DDV vključen v ceno stanovanja). Stanovanje S2 s skupno površino 84,25 m2 obsega vhodni prostor, WC/pralnico, hodnik, kopalnico, dve spalnici, kuhinjo z jedilnico in dnevno sobo ter pokrito teraso velikosti 17,41 m2. Stanovanju pripada ustrezen del vrta, shramba v kleti in eno parkirno mesto. CENA: 345.425,00 € (DDV vključen v ceno stanovanja). Stanovanje S3 s skupno površino 84,20 m2 obsega vhod, WC/pralnico, kopalnico, hodnik, dve spalnici, kuhinjo z jedilnico in dnevno sobo ter pokrito teraso velikosti 15,91 m2. Stanovanju pripadata shramba v kleti in eno parkirno mesto. CENA: 336.800,00 € (DDV vključen v ceno stanovanja). Stanovanje S4 s skupno površino 83,73 m2 obsega vhod, hodnik, WC/pralnico, kopalnico, dve spalnici, kuhinjo z jedilnico in dnevno sobo ter pokrito teraso velikosti 16,73 m2. Stanovanju pripadata shramba v kleti in eno parkirno mesto. CENA: 334.920,00 € (DDV vključen v ceno stanovanja). 1. NADSTROPJE: Stanovanje S5 v 1. nadstropju s skupno površino 120,89 m2 obsega vhod, hodnik, WC/pralnico, dve spalnici, kopalnico 1, spalnico z lastno kopalnico 2, kuhinjo z jedilnico in dnevno sobo ter pokrito teraso velikosti 16,90 m2. Stanovanju pripadata shramba v kleti in eno pokrito parkirno mesto. CENA: 507.738,00 € (DDV vključen v ceno stanovanja). Stanovanje S6 – PRODANO Stanovanje S7 v 1. nadstropju s skupno površino 125,48 m2 obsega vhod, hodnik, pralnico, kopalnico 1, dve spalnici, spalnico z lastno kopalnico 2, kuhinjo z jedilnico in dnevno sobo ter pokrito teraso velikosti 21,52 m2. Stanovanju pripadata shramba v kleti in eno parkirno mesto. CENA: 527.016,00 € (DDV vključen v ceno stanovanja). 2. NADSTROPJE: Stanovanje S8 – PRODANO Stanovanje S9 v 2. nadstropju s skupno površino 93,76 m2 obsega vhodni prostor, kopalnico 1, shrambo, pralnico, kopalnico 2, hodnik, dve spalnici, kuhinjo z jedilnico in dnevno sobo ter pokrito teraso velikosti 12,55 m2. Stanovanju pripadata shramba v kleti in eno parkirno mesto. CENA: 421.920,00 € (DDV vključen v ceno stanovanja). Stanovanje S10 v 2. nadstropju s skupno površino 125,50 m2 obsega vhod, hodnik, pralnico, kopalnico 1, dve spalnici, spalnico z lastno kopalnico 2, kuhinjo z jedilnico in dnevno sobo ter pokrito teraso velikosti 17,20 m2. Stanovanju pripadata shramba v kleti in eno parkirno mesto. CENA: 564.750,00 € (DDV vključen v ceno stanovanja).
ID: 1263508