Stanovanje - VODICE - 468.346 EUR
| Lokacija | VODICE, Šibeniško-kninska |
| Cena € | 468.346 |
| Površina | 126 m2 |
| Število sob | 4 |
| Število kopalnic | 2 |
| Blizu plaže | DA |
| Oddaljenost od morja | 0 m |
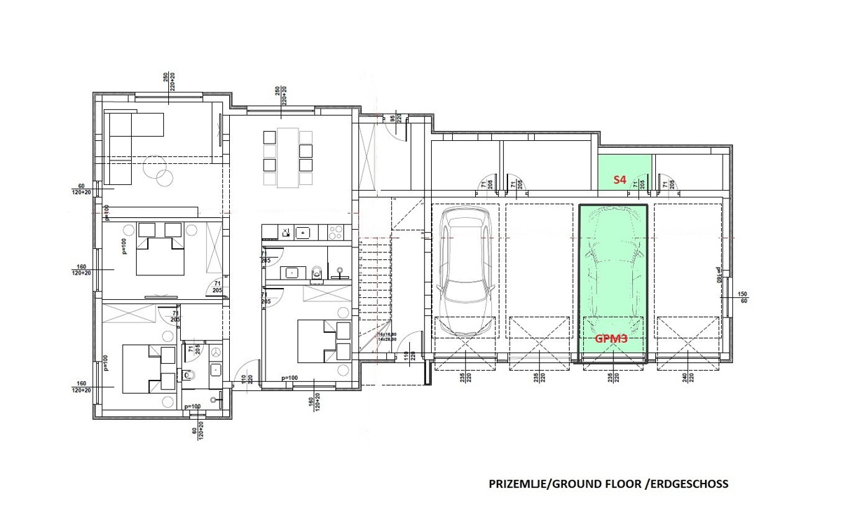
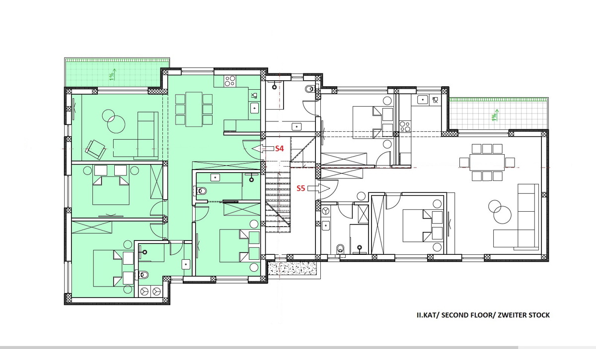
Na eni izmed najbolj iskanih lokacij v Vodicah, le nekaj minut lahke hoje do morja, stoji moderna stanovanjska stavba s skupno le 5 stanovanjskimi enotami – kar bodočim lastnikom zagotavlja zasebnost, mir in ekskluzivnost. Objekt obsega štiri etaže (pritličje + I. nadstropje + II. nadstropje + strešna terasa), vsak stanovanjski prostor pa je zasnovan z poudarkom na funkcionalnosti, udobju in maksimalni izrabi naravne svetlobe. Stavba je zgrajena po najvišjih standardih sodobne gradnje, z uporabo preverjenih in kakovostnih materialov, ki zagotavljajo trajnost, energetsko učinkovitost in prijetno bivanje skozi vse leto. Poseben poudarek je namenjen kakovosti in udobju bivanja: - EPS fasada 10 cm – odlična toplotna izolacija in energetska učinkovitost - PVC zunanja stavbna pohištva (bela) – Gealan profil visoke kakovosti - Troplastno steklo za dodatno zvočno in toplotno izolacijo - Rolete z električnimi dvigalci - Velika drsna stekla, ki omogočajo obilico naravne svetlobe - Kakovostna keramika sodobnega dizajna - Laminat v spalnicah - Električno talno ogrevanje v kopalnicah, kuhinji in dnevni sobi - Klimatske naprave v spalnicah in dnevni sobi - Priključek za polnjenje električnih vozil (EV) v garaži - Na strešnih terasah: priključek elektrike in vode ter odtok za poletno kuhinjo - Predinštalacija za sončne panele na pergolah (ob doplačilu) Stanovanja se nahajajo v neposredni bližini prenovljene plaže (približno 400 m) in nudijo čudovit razgled na morje, kar to nepremičnino naredi izjemno privlačno tako za lastno bivanje kot tudi za turistični najem. S4 stanovanje ima skupno uporabno površino 126,58 m2 in je sestavljeno iz vhoda, predsobe, kopalnice, dveh spalnic, spalnice z lastno kopalnico, kuhinje z jedilnico in dnevne sobe ter pokrite terase površine 6,73 m2. Stanovanju pripada tudi strešna terasa površine 102,17 m2 (neto 25,54 m2), shramba v pritličju površine 2,69 m2 ter garaža površine 15,73 m2. CENA: 468.346,00 € OSTALO NA VOLJO V OBJEKTU: PRITLIČJE S1 PRODANO I. NADSTROPJE S2 stanovanje v prvem nadstropju ima skupno uporabno površino 96,26 m2 in je sestavljeno iz vhoda, hodnika, kopalnice, spalnice, spalnice z lastno kopalnico, kuhinje, jedilnice in dnevne sobe, lože površine 3,64 m2 in pokrite terase površine 6,74 m2. Stanovanju pripadata shramba v pritličju površine 2,45 m2 in dve zunanji parkirni mesti na dvorišču stavbe. CENA: 356.162,00 € S3 stanovanje v prvem nadstropju ima skupno uporabno površino 105,69 m2 in je sestavljeno iz predsobe, kopalnice, spalnice, spalnice z lastno kopalnico, kuhinje, jedilnice in dnevne sobe ter pokrite terase površine 7,52 m2. Stanovanju pripadata shramba v pritličju površine 3,37 m2, garaža površine 15,73 m2 in vrt površine 121 m2. CENA: 391.053,00 € II. NADSTROPJE S5 stanovanje ima skupno uporabno površino 119,77 m2 in je sestavljeno iz vhoda, predsobe, kopalnice, spalnice, spalnice z lastno kopalnico, kuhinje z jedilnico in dnevne sobe ter pokrite terase površine 7,52 m2. Stanovanju pripadata tudi strešna terasa površine 94,91 m2 (neto 25,36 m2), shramba v pritličju površine 6,05 m2 ter garaža površine 15,73 m2. CENA: 443.149,00 €
ID: 1264371