Stanovanje - VODICE - 395.000 EUR
| Lokacija | VODICE, Šibeniško-kninska |
| Cena € | 395.000 |
| Površina | 172 m2 |
| Število sob | 4 |
| Število kopalnic | 3 |
| Oddaljenost od morja | 0 m |
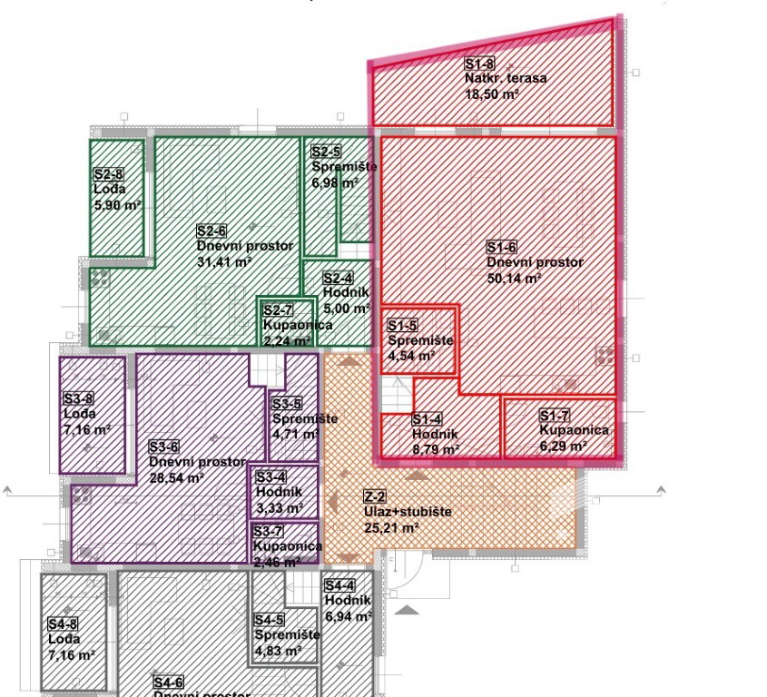
Prodaja dvoetažnega apartmaja, ki se nahaja v moderni stavbi v gradnji z skupno osmimi stanovanji. Ta atraktivna nepremičnina se razteza skozi pritličje in prvo nadstropje, kar zagotavlja popolno kombinacijo udobja, zasebnosti in zunanjega prostora. Zaključek del in vselitev sta predvidena za poletje 2025. Razporeditev prostora: - Pritličje: Prostoren dnevni del odprtega koncepta, ki obsega kuhinjo, jedilnico in dnevno sobo (50,14 m2), kopalnica, shrambe in vhodni prostor. Iz dnevnega dela se izide na pokrito teraso, ki se nadaljuje v vrt velikosti 140 m2, idealen za sprostitev in druženje na prostem. - Prvo nadstropje: Tri spalnice: - Glavna spalnica z lastno kopalnico in ložo, - Ostali dve sobi, ki delita skupno teraso, - Dodatna kopalnica za dve sobi. Oprema in standardi: - Tlačno ogrevanje v vseh prostorih razen spalnic, - Klimatske naprave v vseh prostorih, - ALU dvigajoče-drsne stene na balkonih, - PVC stavbno pohištvo (Schüco) v antracit sivi barvi z električnimi dvigalniki rolet in komarniki. Apartma je orientiran proti zahodu, kar zagotavlja obilico naravne svetlobe in prijetno vzdušje. Zunanji prostor in parkiranje: Apartmaju pripadata dva parkirna mesta ter prostoren zasebni vrt, kar ga dela idealnega za tiste, ki iščejo spoj udobja in zasebnosti. Ta nepremičnina nudi odlično priložnost za družinsko življenje ali počitnice, s sodobnim dizajnom, visokokakovostno opremo in prostornimi zunanjimi površinami. Vodice, ki so umeščene v srce Dalmacije, so znane po svojih čudovitih plažah, bogati gastronomski ponudbi in živahnih poletnih dogodkih. V bližini se nahajajo Narodni parki Krka in Kornati, kar to območje dela privlačno za ljubitelje narave. Dobra prometna povezava, vključno z bližino dveh mednarodnih letališč, dodatno prispeva k priljubljenosti Vodic kot idealne destinacije za počitnice in življenje. Za več informacij in dogovor za ogled nas prosimo kontaktirajte!
ID: 1134735