Stanovanje - VODICE - 390.208 EUR
| Lokacija | VODICE, Šibeniško-kninska |
| Cena € | 390.208 |
| Površina | 121 m2 |
| Število sob | 4 |
| Število kopalnic | 1 |
| Oddaljenost od morja | 0 m |
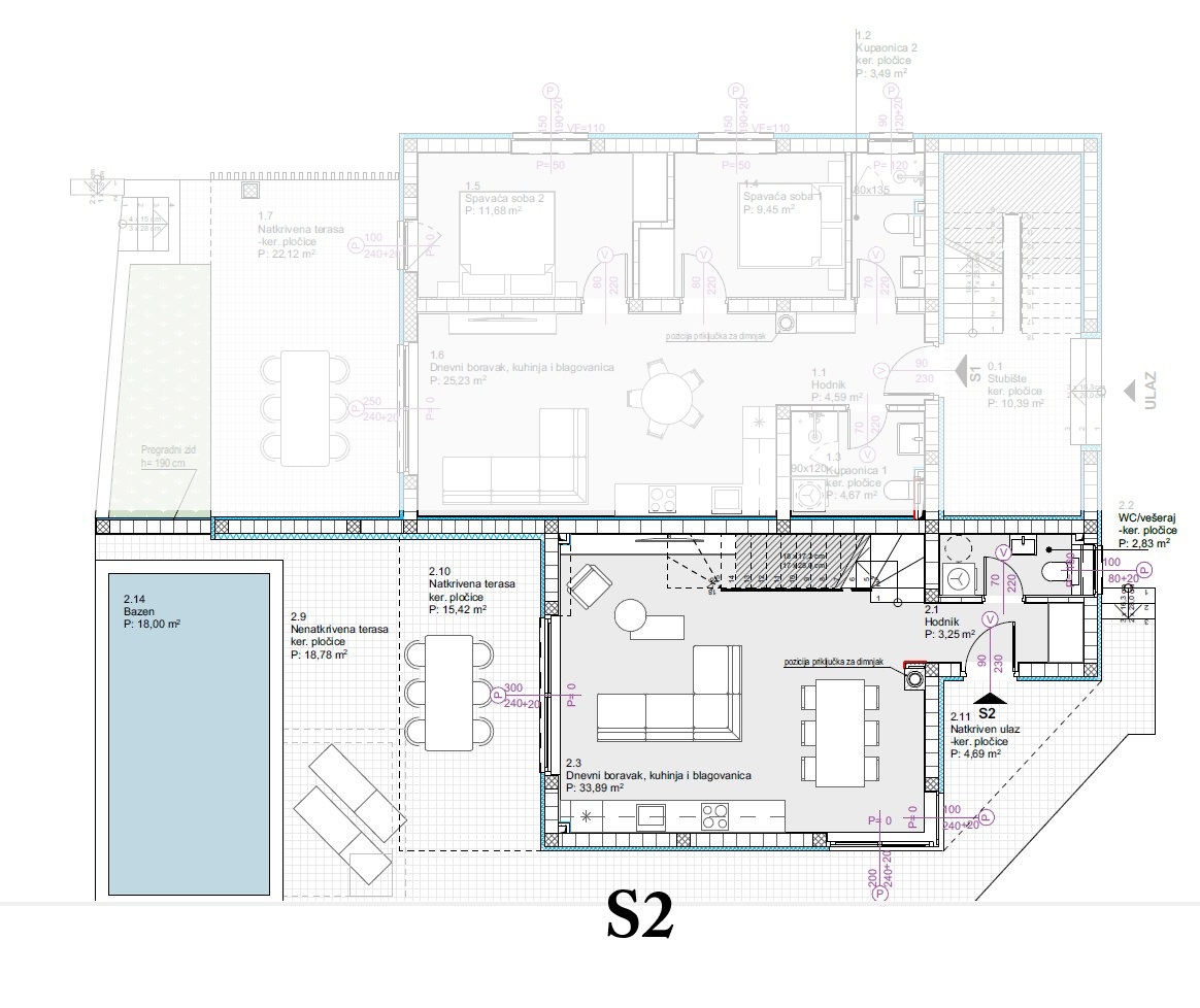
STAN S2 – LUKSUZEN DVONADSTROPEN STAN S PRIVATNIM BAZENOM IN VRTOM – NOVOGRADNJA VODICE Naprodaj stanovanje S2 v sklopu moderne novogradnje s skupno štirimi stanovanji. Stavba se nahaja na mirni lokaciji v Vodicah, 1200 m od plaže Vruje in 1500 m od centra mesta. Stavba je trenutno v fazi roh bau, vselitev je predvidena spomladi 2027. Stanovanje S2 je prostorno dvoetažno stanovanje s skupno neto uporabno površino 121,94 m2 (z vključenimi koeficienti) in vključuje privatni bazen, vrt in dve parkirni mesti. Kupci so oproščeni plačila agencijske provizije. RAZPOREDITEV: Pritličje: - krit vhod - hodnik - WC/pralnica - kuhinja in jedilnica - dnevna soba z izhodom na pokrito teraso - odprta terasa - privatni bazen - vrt - notranje stopnišče do nadstropja Prvo nadstropje: - hodnik - spalnica 1 z izhodom na pokrito teraso - spalnica 2 - kopalnica - spalnica 3 z izhodom na pokrito teraso Stanovanje je zasnovano za udobno družinsko bivanje ali kot luksuzna počitniška nepremičnina z visoko stopnjo zasebnosti in funkcionalnosti. OPREMA IN SPECIFIKACIJE: - ALU in PVC stavbno pohištvo - klimatizirani vsi prostori - talno gretje v kopalnicah in dnevni sobi - vrhunske keramične ploščice in sanitarna oprema - privatni bazen s celotno tehnično opremo - fasada z izolacijo iz stiropora z visoko energetsko učinkovitostjo - dve parkirni mesti vključeni v ceno - pogled na morje Stanovanje S1 – Pritličje – 75,37 m2 I 241.184,00 € Dvosobno stanovanje v pritličju z dvema kopalnicama, dnevno sobo, kuhinjo z jedilnico, pokrito teraso in privatnim vrtom (28,98 m2). V ceno je vključeno eno parkirno mesto. Stanovanje S2 – Dvonadstropno z bazenom – 121,94 m2 I 390.208,00 € Stanovanje na dveh etažah (pritličje in nadstropje) s tremi spalnicami, dvema kopalnicama, dodatnim WC-jem, privatnim bazenom, vrtom in dvema pokritima terasama. Vključeni sta dve parkirni mesti. Stanovanje S3 – Prvo nadstropje – 70,82 m2 I 233.706,00 € PRODANO Stanovanje S4 – Penthouse – 129,57 m2 I 414.592,00 € Stanovanje zaseda celotno zadnjo etažo stavbe. Ima tri spalnice, dve kopalnici, dodatni WC, prostorno dnevno sobo s kuhinjo in jedilnico ter tri pokrite terase z odprtim pogledom na morje in mesto. V ceno sta vključeni dve parkirni mesti. LOKACIJA – VODICE Vodice so eno izmed najbolj zaželenih krajev za življenje in počitnice na Jadranu, z razvito infrastrukturo, čistimi plažami in raznoliko ponudbo za vse generacije. Bližina Šibenika, NP Krka in Kornatov ter dobra prometna povezava dodatno povečujejo vrednost te nepremičnine.
ID: 1281672