Stanovanje - VODICE - 350.000 EUR
| Lokacija | VODICE, Šibeniško-kninska |
| Cena € | 350.000 |
| Površina | 140 m2 |
| Število sob | 5 |
| Površina parcele | 86 m2 |
| Število kopalnic | 3 |
| Bližina prevoza | DA |
| Oddaljenost od morja | 850 m |
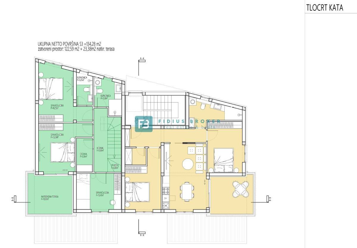
*** SUPER PRILOŽNOST*** VODICE - Naprodaj je moderno stanovanje s kar 4 spalnicami in vrtom, 850 m od mestne plaže in 1100 m od centra mesta! Nov projekt manjše stanovanjske stavbe s skupno 3 stanovanji, ki se nahaja na mirni lokaciji, v slepi ulici, v že pozidanem delu mesta Vodice. Ima skupno dve nadstropji: pritličje + 1. nadstropje. Stanovanja v pritličju imajo pripadajoči del in vrt. Moderno oblikovana stavba bo zgrajena s kakovostnimi materiali po najnovejših gradbenih standardih. Med opremo izpostavljamo: 8 cm polistirensko fasado, PVC stavbno pohištvo, električne rolete z mrežami proti komarjem, moderno kopalniško opremo, kakovostne talne obloge, klimatsko napravo v dnevni sobi, pripravo za klimatsko napravo v spalnicah, električno talno ogrevanje v kopalnicah, steklene ograje na terasah. Predviden zaključek gradnje in vselitev - december 2026. Stanovanje S1 z neto uporabno površino 140,73 m2 + vrt 86,02 m2 se nahaja v pritličju in v prvem nadstropju. V pritličju so hodnik, kopalnice, spalnice, kuhinja z jedilnico, dnevna soba z izhodom na čudovito teraso velikosti 12,45 m2 in vrt velikosti 86,02 m2. Notranje stopnišče vodi v prvo nadstropje, kjer so tri spalnice, hodnik, dve kopalnici, shramba in terasa. Stanovanju pripadata 2 parkirni mesti. Cena je 350.000 € (DDV vključen - kupec je oproščen plačila 3% davka na nepremičnine). DRUGO NA VOLJO V STAVBI PRITLIČJE Stanovanje S2 - PRODANO 1. NADSTROPJE Stanovanje S3 z neto uporabno površino 68,79 m2 se nahaja v 1. nadstropju. Sestavljen je iz hodnika, kopalnice, shrambe, dveh spalnic, kuhinje z jedilnico, dnevne sobe z dostopom do čudovite pokrite terase velikosti . Stanovanju pripadata 2 parkirni mesti. Cena je 205.000 € (DDV vključen - kupec je oproščen plačila 3% davka na promet nepremičnin). Za več informacij nas kontaktirajte po e-pošti ali telefonu.
ID: 1226803