Stanovanje - VODICE - 320.000 EUR
| Lokacija | VODICE, Šibeniško-kninska |
| Cena € | 320.000 |
| Površina | 78 m2 |
| Število sob | 3 |
| Število kopalnic | 2 |
| Bližina prevoza | DA |
| Oddaljenost od morja | 90 m |
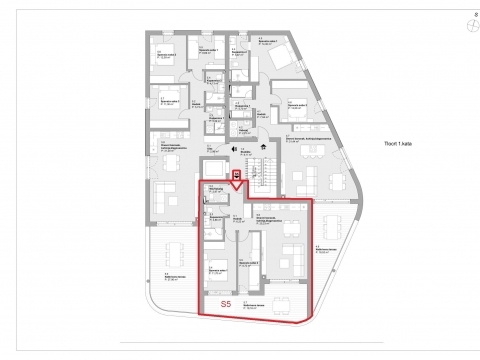
Stanovanje z oznako S5 se nahaja v prvem nadstropju stavbe. Sestavljen je iz 2 spalnic, kuhinje-jedilnice-dnevne sobe, kopalnice, stranišča/pralnice, hodnika in pokrite terase s pogledom na morje. Stanovanju pripada 1 parkirno mesto. Ta moderna stavba s skupno 9 stanovanji različnih velikosti, z dvema ali tremi spalnicami, je zasnovana s posebnim poudarkom na naravni osvetlitvi in odprtih prostorih. Steklene površine in pokriti balkoni ustvarjajo povezavo med notranjimi in zunanjimi prostori, kar omogoča, da dnevna svetloba obogati bivalni prostor. Nova stanovanjska stavba, ki spoštuje obstoječo ulično traso in višino okoliških stavb, izstopa s svojo inovativno zasnovo, visokokakovostnimi materiali in funkcionalnimi prostori, ki stanovalcem zagotavljajo visok življenjski standard. Stanovanja so zgrajena in opremljena po visokih ekonomskih in gradbenih standardih. Zvočna, toplotna in hidroizolacija, PVC okna z električnimi roletami in zaščito pred mrčesom, dvigalo, vhodna vrata proti vlomu in ognju, urejen in prezračen sanitarni prostor, inverterske klimatske naprave v vseh prostorih, talno ogrevanje v kopalnicah in kuhinji-jedilnici-dnevni sobi, inštalacije za SAT TV, vrhunske keramične ploščice, pipe Hans Grohe, vgradni splakovalniki Grohe. Vse našteto prinaša kombinacijo razkošja, udobja in ekološke trajnosti, zaradi česar je to eden najbolj vznemirljivih arhitekturnih projektov v Vodicah. Problem parkiranja rešujejo parkirna mesta, ki se nahajajo na dvorišču stavbe. Izjemna in dostopna lokacija le 90 m od morja in plaže ter le 500 m od centra mesta. OPOMBA: Stavba je predmet DDV. Kupec ne plača 3% davka na promet nepremičnin Republiki Hrvaški.
ID: 1179295