Stanovanje - VODICE - 300.000 EUR
| Lokacija | VODICE, Šibeniško-kninska |
| Cena € | 300.000 |
| Površina | 113 m2 |
| Število sob | 3 |
| Število kopalnic | 1 |
| Oddaljenost od morja | 0 m |
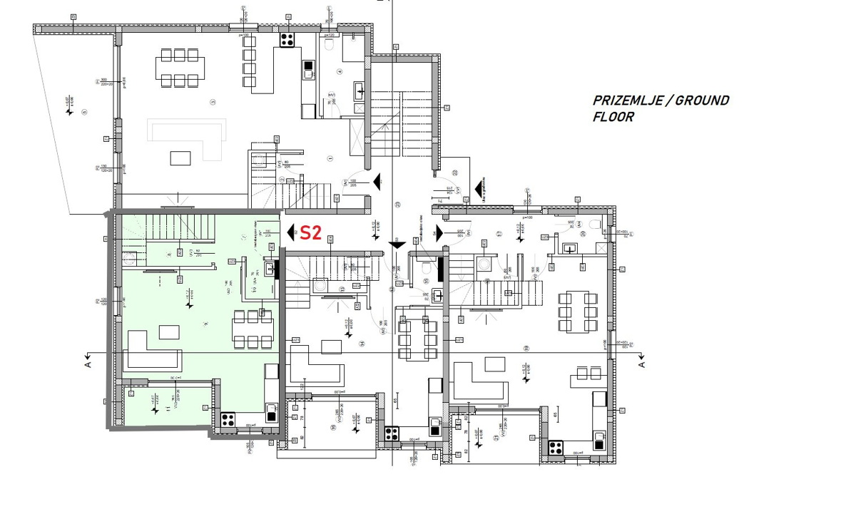
Vodice - prodaja udobno dvonadstropno stanovanje S2 s vrtom na mirni lokaciji. S2 stanovanje s tlorisno površino 88,66 m2 je razporejeno v dve etaži: pritličje + nadstropje. Pritličje neto površine obsega hodnik, shramba, kopalnica, kuhinja z jedilnico in dnevna soba z izhodom na teraso površine 5,90 m2. Nadstropje vsebuje stopnišče, pralnico, kopalnico ter dve spalnici z izhodom na dve loži, vsaka površine 4,98 m2. K stanovanju pripada vrt površine 98,13 m2 in dve parkirni mesti. CENA: 300.000,00 € Stanovanje se nahaja v stavbi z skupno 8 stanovanjskimi enotami, ki je bila dokončana leta 2025. Nahaja se v mirnem delu Vodic, približno 1500 m od centra Vodic in 1800 m od najbližje plaže. Stanovanja so zgrajena iz kakovostnih materialov in opremljena po najnovejših gradbenih standardih. Oprema vključuje Schüco antracitno zunanjo stavbno pohištvo, rolete z električnim dvigalom, mreže proti komarjem, protipožarna in protivlomna vhodna vrata, talno gretje v dnevni sobi, kuhinji, jedilnici in kopalnici, MDF notranja vrata, keramične ploščice v kopalnici, WC-ju, kuhinji in dnevni sobi, laminat v spalnicah... DRUGE RAZPOLOŽLJIVE ENOTE V OBJEKTU: S1 stanovanje s skupno tlorisno površino 131,91 m2 ima dve etaži: pritličje + nadstropje. Pritličje obsega vhod, predsobo, shrambno prostor, kopalnico, kuhinjo z jedilnico in dnevno sobo z izhodom na pokrito teraso površine 18,50 m2. Nadstropje vsebuje stopnišče, predsobo, dve spalnici z izhodom na skupno pokrito teraso površine 18,05 m2, kopalnico, glavno spalnico z lastno kopalnico in ložo površine 4,95 m2. K stanovanju pripada vrt površine 138,43 m2 in dve parkirni mesti. S3 stanovanje s skupno tlorisno površino 89,76 m2 je razporejeno v dve etaži. Pritličje obsega hodnik, shrambo, WC, kuhinjo z jedilnico in dnevno sobo z izhodom na ložo površine 7,16 m2 in vrt. Nadstropje vsebuje stopnišče, predsobo, dve spalnici, dve loži vsaka površine 4,98 m2, kopalnico in pralnico. K stanovanju pripada vrt površine 35,48 m2 in dve parkirni mesti. CENA: 295.000,00 € S4 stanovanje s skupno tlorisno površino 102,97 m2 je razporejeno v dve etaži. Pritličje obsega hodnik, shrambni prostor, kopalnico, kuhinjo z jedilnico, dnevno sobo in ložo površine 7,16 m2. Z notranjim stopniščem se pride v nadstropje, ki vsebuje predsobo, pralnico, kopalnico, tri spalnice in dve loži vsaka površine 4,98 m2. K stanovanju pripada vrt površine 35,88 m2 in dve parkirni mesti. CENA: 330.000,00 €
ID: 1276119