Stanovanje - VODICE - 291.642 EUR
| Lokacija | VODICE, Šibeniško-kninska |
| Cena € | 291.642 |
| Površina | 74 m2 |
| Število sob | 3 |
| Število kopalnic | 1 |
| Oddaljenost od morja | 0 m |
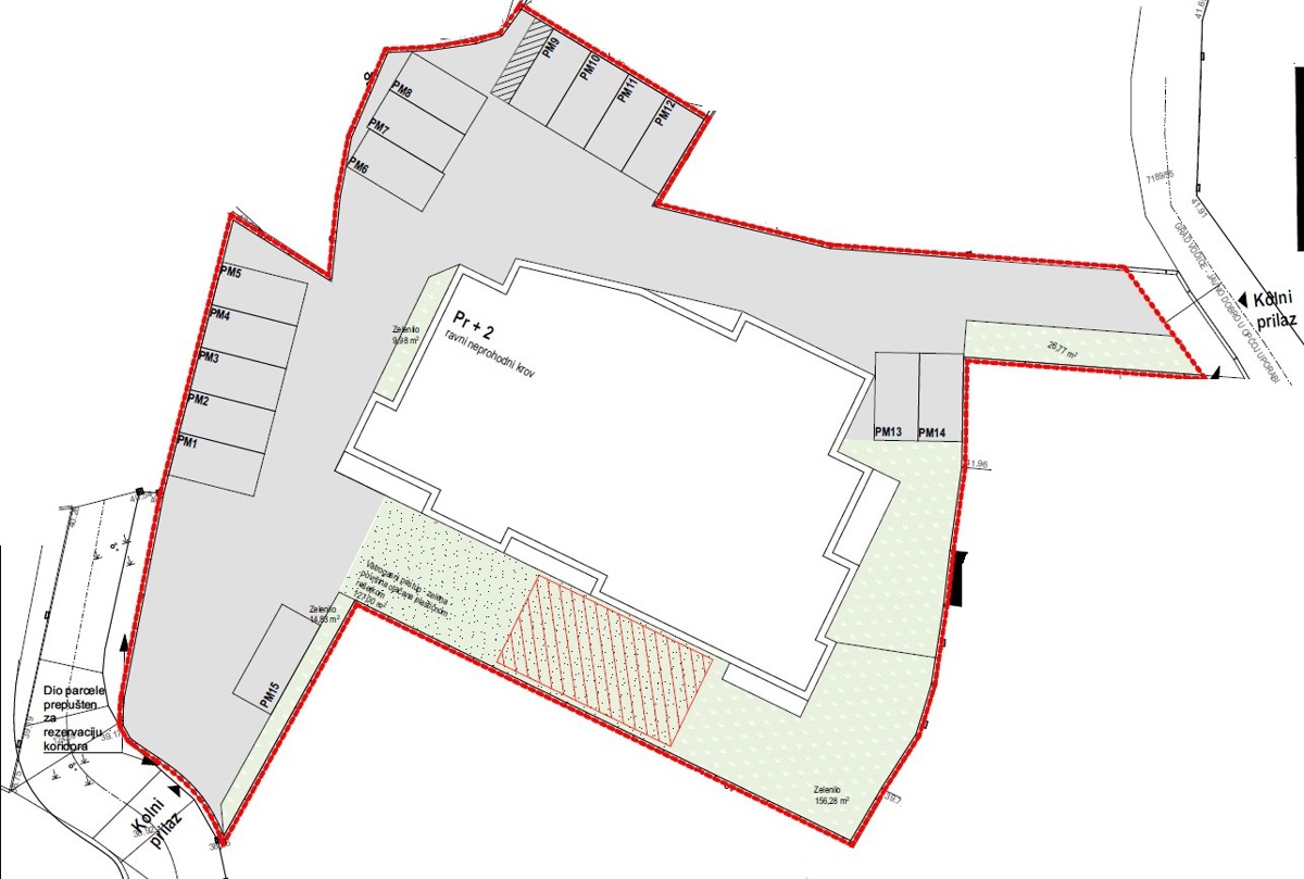
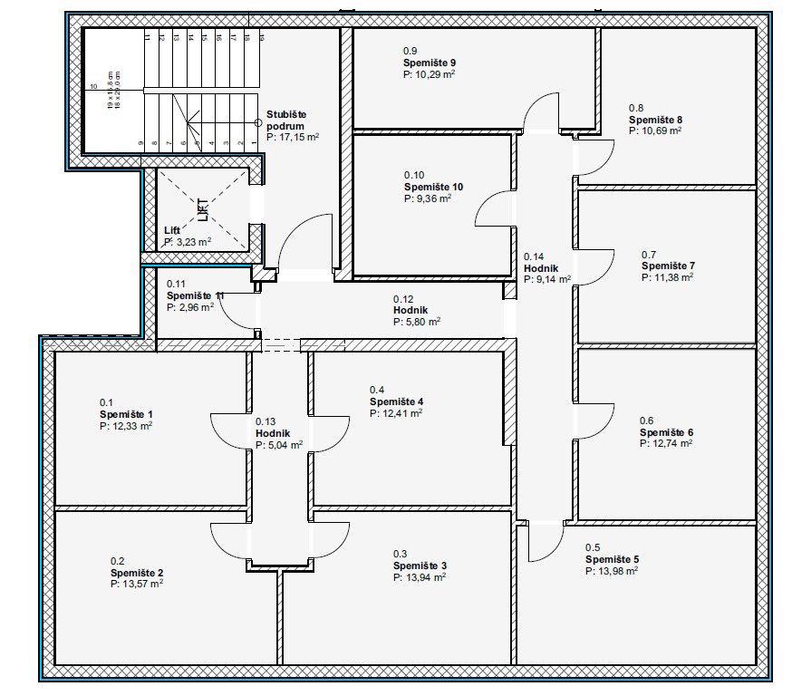
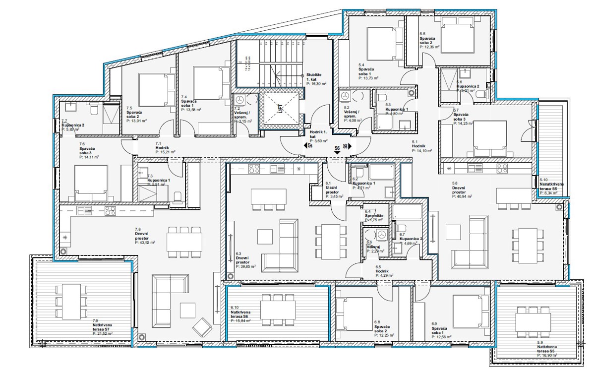
VODICE – S1 PRIZEMLJE – MODERNA NOVOGRADNJA S TERASO, POGLED NA MORJE – 74,78 m2 Prodaja stanovanja S1 v pritličju moderne večstanovanjske stavbe z dvigalom, ki se nahaja na mirni in privlačni lokaciji v Vodicah, le 700 m od plaže in 750 m od središča mesta. Stavba sodobne zasnove ima skupaj 10 stanovanj (klet + pritličje + 1. nadstropje + 2. nadstropje) in je zgrajena iz kakovostnih materialov ter po najnovejših gradbenih standardih. Načrtovani začetek gradnje je začetek leta 2025, zaključek pa poletje 2026. STANOVANJE S1 – 74,78 m2 Stanovanje je sestavljeno iz: - vhoda - hodnika - WC-ja / pralnice - kopalnice - dveh spalnic - kuhinje z jedilnico in dnevno sobo odprtega koncepta - delno pokrite terase površine 19,71 m2 Stanovanju pripada: - shramba v kleti stavbe - eno parkirno mesto - možnost nakupa dodatnega parkirnega mesta (7.500 €) Stanovanjem v pritličju pripada del vrta, kar zagotavlja dodatno zasebnost in udobje. OPREMA IN STANDARDI: - fasada iz stiropora - PVC stavbno pohištvo antracitne barve - elektromotorni rolete - kamnite talne obloge - sodobna kopalniška sanitarna oprema - talno gretje - inverter klimatske naprave v vseh prostorih in dnevni sobi - dvigalo v stavbi CENA: 291.642,00 € (DDV vključen v ceno) Kupec ne plača davka na promet nepremičnin. VSA RAZPOLOŽLJIVA STANOVANJA V OBJEKTU: PRITLIČJE: Stanovanje S1 skupne površine 74,78 m2 je sestavljeno iz vhoda, WC-ja/pralnice, hodnika, kopalnice, dveh spalnic, kuhinje z jedilnico in dnevne sobe ter delno pokrite terase površine 19,71 m2. Stanovanju pripada ustrezen del vrta, shramba v kleti in eno parkirno mesto. CENA: 291.642,00 € (DDV vključen v ceno stanovanja). Stanovanje S2 skupne površine 84,25 m2 je sestavljeno iz vhodnega prostora, WC-ja/pralnice, hodnika, kopalnice, dveh spalnic, kuhinje z jedilnico in dnevne sobe ter pokrite terase površine 17,41 m2. Stanovanju pripada ustrezen del vrta, shramba v kleti in eno parkirno mesto. CENA: 345.425,00 € (DDV vključen v ceno stanovanja). Stanovanje S3 skupne površine 84,20 m2 je sestavljeno iz vhoda, WC-ja/pralnice, kopalnice, hodnika, dveh spalnic, kuhinje z jedilnico in dnevne sobe ter pokrite terase površine 15,91 m2. Stanovanju pripada shramba v kleti in eno parkirno mesto. CENA: 336.800,00 € (DDV vključen v ceno stanovanja). Stanovanje S4 skupne površine 83,73 m2 je sestavljeno iz vhoda, hodnika, WC-ja/pralnice, kopalnice, dveh spalnic, kuhinje z jedilnico in dnevne sobe ter pokrite terase površine 16,73 m2. Stanovanju pripada shramba v kleti in eno parkirno mesto. CENA: 334.920,00 € (DDV vključen v ceno stanovanja). I. NADSTROPJE: Stanovanje S5 v 1. nadstropju skupne površine 120,89 m2 je sestavljeno iz vhoda, hodnika, WC-ja/pralnice, dveh spalnic, kopalnice 1, spalnice z lastno kopalnico 2, kuhinje z jedilnico in dnevne sobe ter pokrite terase površine 16,90 m2. Stanovanju pripada shramba v kleti in eno pokrito parkirno mesto. CENA: 507.738,00 € (DDV vključen v ceno stanovanja). Stanovanje S6 – PRODANO Stanovanje S7 v 1. nadstropju skupne površine 125,48 m2 je sestavljeno iz vhoda, hodnika, pralnice, kopalnice 1, dveh spalnic, spalnice z lastno kopalnico 2, kuhinje z jedilnico in dnevne sobe ter pokrite terase površine 21,52 m2. Stanovanju pripada shramba v kleti in eno parkirno mesto. CENA: 527.016,00 € (DDV vključen v ceno stanovanja). II. NADSTROPJE: Stanovanje S8 – PRODANO Stanovanje S9 v 2. nadstropju skupne površine 93,76 m2 je sestavljeno iz vhodnega prostora, kopalnice 1, shrambe, pralnice, kopalnice 2, hodnika, dveh spalnic, kuhinje z jedilnico in dnevne sobe ter pokrite terase površine 12,55 m2. Stanovanju pripada shramba v kleti in eno parkirno mesto. CENA: 421.920,00 € (DDV vključen v ceno stanovanja). Stanovanje S10 v 2. nadstropju skupne površine 125,50 m2 je sestavljeno iz vhoda, hodnika, pralnice, kopalnice 1, dveh spalnic, spalnice z lastno kopalnico 2, kuhinje z jedilnico in dnevne sobe ter pokrite terase površine 17,20 m2. Stanovanju pripada shramba v kleti in eno parkirno mesto. CENA: 564.750,00 € (DDV vključen v ceno stanovanja).
ID: 1258449