Stanovanje - VODICE - 279.000 EUR
| Lokacija | VODICE, Šibeniško-kninska |
| Cena € | 279.000 |
| Površina | 90 m2 |
| Število sob | 3 |
| Število kopalnic | 2 |
| Bližina prevoza | DA |
| Oddaljenost od morja | 800 m |
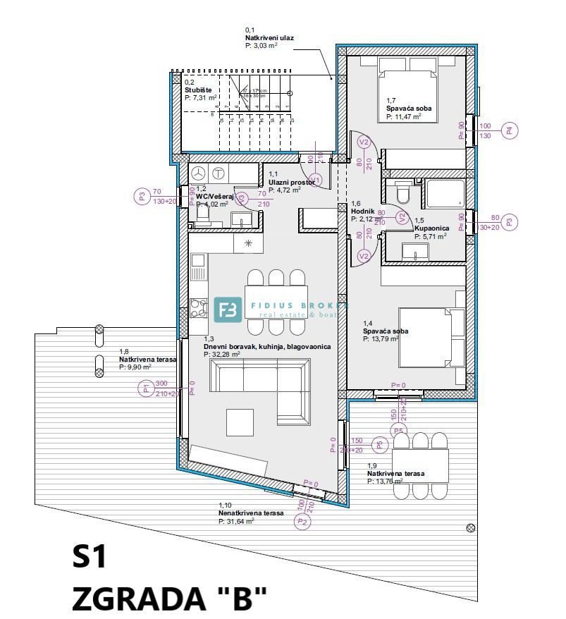
VODICE - Naprodaj moderno stanovanje z 2 spalnicama in teraso, 800 m od mestne plaže in 1600 m od centra mesta! Pravkar je bila zaključena gradnja manjše stanovanjske stavbe s skupno 3 stanovanji, ki se nahaja na mirni lokaciji. Nepremičnina se nahaja v že pozidanem območju, obdanem z družinskimi hišami. Dodatna prednost je, da se nahaja v slepi ulici, kar pomeni minimalen promet in več zasebnosti. Ima skupno tri etaže: pritličje + 1. nadstropje + 2. nadstropje. Moderno oblikovana stavba je bila zgrajena s kakovostnimi materiali po najnovejših gradbenih standardih. Med opremo izpostavljamo: polistirensko fasado, PVC stavbno pohištvo, električne rolete, komarnike, klimatske naprave v spalnicah in dnevni sobi, visokokakovostne talne obloge, moderno kopalniško opremo, električno talno ogrevanje v kopalnici, kuhinji in dnevni sobi, stekleno ograjo na terasah, vrt urejen po projektu. Stavba je dokončana in takoj vseljiva. Stanovanje S2 s skupno uporabno površino 90 m2 (bivalna površina 74,11 m2 + terasa 25,07 m2 + parkirno mesto 15,40 m2) se nahaja v 1. nadstropju. Sestavljeno je iz predsobe, hodnika, stranišča/pralnice, dveh spalnic, kopalnice, kuhinje z jedilnico in dnevne sobe z dostopom do dveh pokritih teras velikosti 25,07 m2. Stanovanju pripada eno parkirno mesto. Cena je 279.000 €. DRUGO NA VOLJO V STAVBI PRITLIČJE Stanovanje S1 s skupno uporabno površino 112,58 m2 (bivalna površina 74,11 m2 + terasa 55,3 m2 + vrt 128,08 m2 + parkirno mesto 28,06 m2) se nahaja v pritličju. Sestavljen je iz predsobe, hodnika, stranišča/pralnice, dveh spalnic, kopalnice, kuhinje z jedilnico in dnevne sobe z dostopom na pokrito in nepokrito teraso velikosti 55,3 m2 ter vrta velikosti 128,08 m2. Stanovanju pripadata dve parkirni mesti. Cena je: 319.000 €. 2. NADSTROPJE Stanovanje S2 s skupno uporabno površino 92,15 m2 (bivalna površina 74,11 m2 + terasa 25,41 m2 + parkirišče 28,06 m2) se nahaja v 2. nadstropju. Sestavljen je iz predsobe, hodnika, stranišča/pralnice, dveh spalnic, kopalnice, kuhinje z jedilnico in dnevne sobe z dostopom na dve pokriti terasi velikosti 25,41 m2. Stanovanju pripadata dve parkirni mesti. Cena je 329.000 €. Za več informacij nas kontaktirajte po e-pošti ali telefonu.
ID: 1282346