Stanovanje - VODICE - 260.000 EUR
| Lokacija | VODICE, Šibeniško-kninska |
| Cena € | 260.000 |
| Površina | 81 m2 |
| Število sob | 3 |
| Število kopalnic | 1 |
| Oddaljenost od morja | 0 m |
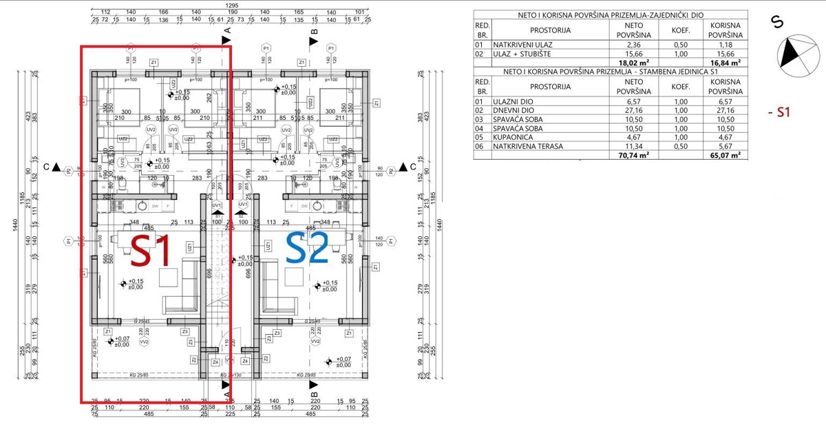
Na atraktivni in mirni lokaciji v Vodicah je na voljo sodobno stanovanje v pritličju ekskluzivne manjše stanovanjske stavbe s samo štirimi stanovanji – popolna kombinacija zasebnosti, udobja in sodobnega načina življenja. Stanovanje je jugovzhodno orientirano, skupne uporabne površine 81 m2, in je sestavljeno iz: - vhoda in predsobe - dveh spalnic - kopalnice - kuhinje z jedilnico in dnevne sobe - pokrite terase površine Posebna prednost te nepremičnine je zasebni vrt površine približno 103 m2, popoln za sprostitev, druženje ali urejanje po lastnih željah. Stanovanju pripadata dve parkirni mesti. Stavba je v zaključni fazi gradnje, predviden zaključek del je poleti 2026. Gradnja poteka z visokokakovostnimi materiali, objekt pa bo opremljen po najnovejših standardih sodobne gradnje, kar zagotavlja dolgoročno vrednost in energetsko učinkovitost. Lokacija nudi popolno ravnovesje med mirom in dostopnostjo – le približno 1.500 metrov od središča mesta in čudovitih plaž.
ID: 1265935