Stanovanje - VODICE - 250.944 EUR
| Lokacija | VODICE, Šibeniško-kninska |
| Cena € | 250.944 |
| Površina | 78 m2 |
| Število sob | 3 |
| Število kopalnic | 1 |
| Oddaljenost od morja | 0 m |
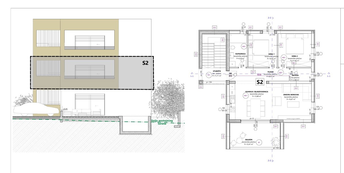
Vodice **PREDPRODAJA** *NOVOGRADNJA* prodaja se stanovanje S2 v prvem nadstropju manjše stanovanjske stavbe. Stavba sodobnega videza bo zgrajena iz kakovostnih materialov in opremljena po najnovejših gradbenih standardih ter se nahaja na mirni lokaciji, približno 1000 m od centra Vodic in plaže. Predviden začetek gradnje je september 2026, predviden zaključek del pa konec leta 2027. Stavba ima skupaj tri stanovanjske enote, vsako stanovanje pa zavzema celotno etažo stavbe. Stanovanja so idealna za bivanje, počitnice in/ali oddajanje v najem. POVRŠINA (izračun po koeficientih) – SKUPAJ 78,42 m2 - Bivalni prostor: 69,71 m2 - Pokrita terasa: 6,21 m2 (dejanska površina 12,41 m2) - Parkirno mesto: 2,50 m2 (dejanska površina 12,50 m2) RAZPORED PROSTOROV - vhodni hodnik - kopalnica - 2 spalnici - shramba - kuhinja in jedilnica - dnevna soba - izhod na teraso - Stanovanje ima funkcionalno in sodobno razporeditev, s poudarkom na dnevnem prostoru in zunanjem delu – popolno za bivanje skozi vse leto.
ID: 1250657