Stanovanje - VODICE - 250.000 EUR
| Lokacija | VODICE, Šibeniško-kninska |
| Cena € | 250.000 |
| Površina | 55 m2 |
| Število sob | 3 |
| Število kopalnic | 1 |
| Oddaljenost od morja | 500 m |
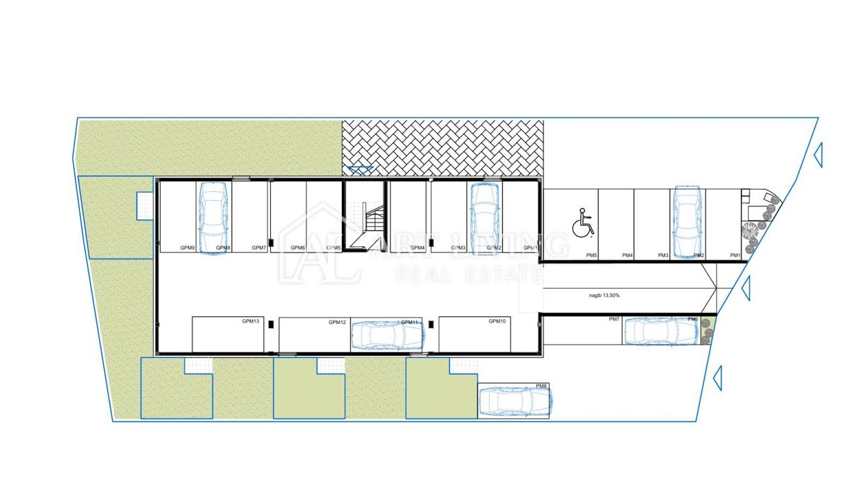
Na odlični lokaciji, približno 500 metrov od morja ter 400 metrov od trgovin in središča Vodic, se je začela gradnja modernega in kakovostnega stanovanjskega objekta s 14 stanovanjskimi enotami, razporejenimi v treh etažah: pritličje, prvo in drugo nadstropje. V kleti objekta so garažna mesta, pred stavbo pa odprta parkirišča. Stanovanje SJ7, s skupno neto bivalno površino 55,92 m², se nahaja v prvem nadstropju stanovanjskoposlovne stavbe. Sestavljeno je iz vhoda, dnevne sobe s kuhinjo in jedilnico, dveh spalnic, kopalnice ter loggie velikosti 7,56 m². Stanovanju pripadata eno garažno in eno zunanje parkirno mesto. Vsa stanovanja bodo moderno in funkcionalno zasnovana ter opremljena s kakovostnimi sistemi za ogrevanje in hlajenje. Nepremičnina se nahaja na mirni lokaciji, v bližini vseh pomembnih vsebin, in je idealna priložnost za vse, ki iščejo moderno nepremičnino, primerno za bivanje, počitnice ali turistični najem. Kupec je oproščen plačila davka na promet nepremičnin. Zaključek gradnje je predviden za junij 2026. Spoštovani kupci, ogled nepremičnine je možen le po podpisu posredniške pogodbe, ki je osnova za nadaljnje postopke v zvezi s prodajo in plačilom provizije, v skladu z zakonom o posredovanju v prometu z nepremičninami. Agencija ART LIVING REAL ESTATE kot pooblaščeni posrednik zaračunava posredniško provizijo v višini 3 % + DDV ob sklenitvi predpogodbe ali prodajne pogodbe. OPOMBA: Ne odgovarjamo za morebitne napake v opisu nepremičnine, vendar si prizadevamo biti čim bolj natančni in točni. ID KODA AGENCIJE: 1483
ID: 1234731