Stanovanje - VODICE - 240.000 EUR
| Lokacija | VODICE, Šibeniško-kninska |
| Cena € | 240.000 |
| Površina | 55 m2 |
| Število sob | 3 |
| Površina parcele | 20 m2 |
| Število kopalnic | 1 |
| Oddaljenost od morja | 500 m |
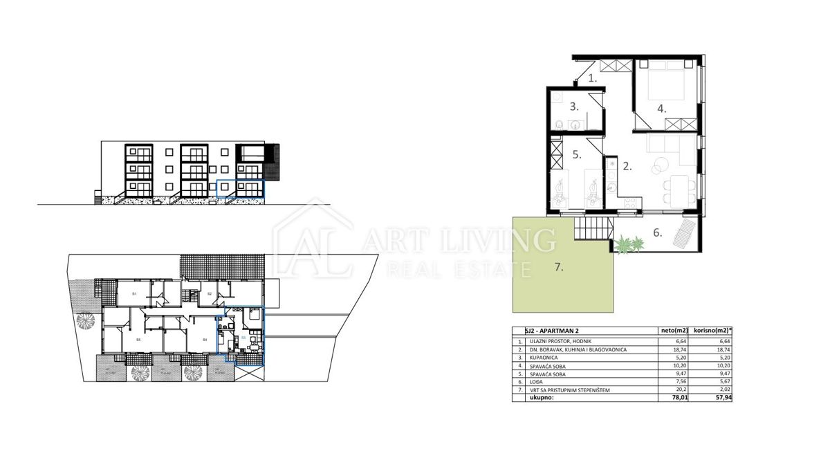
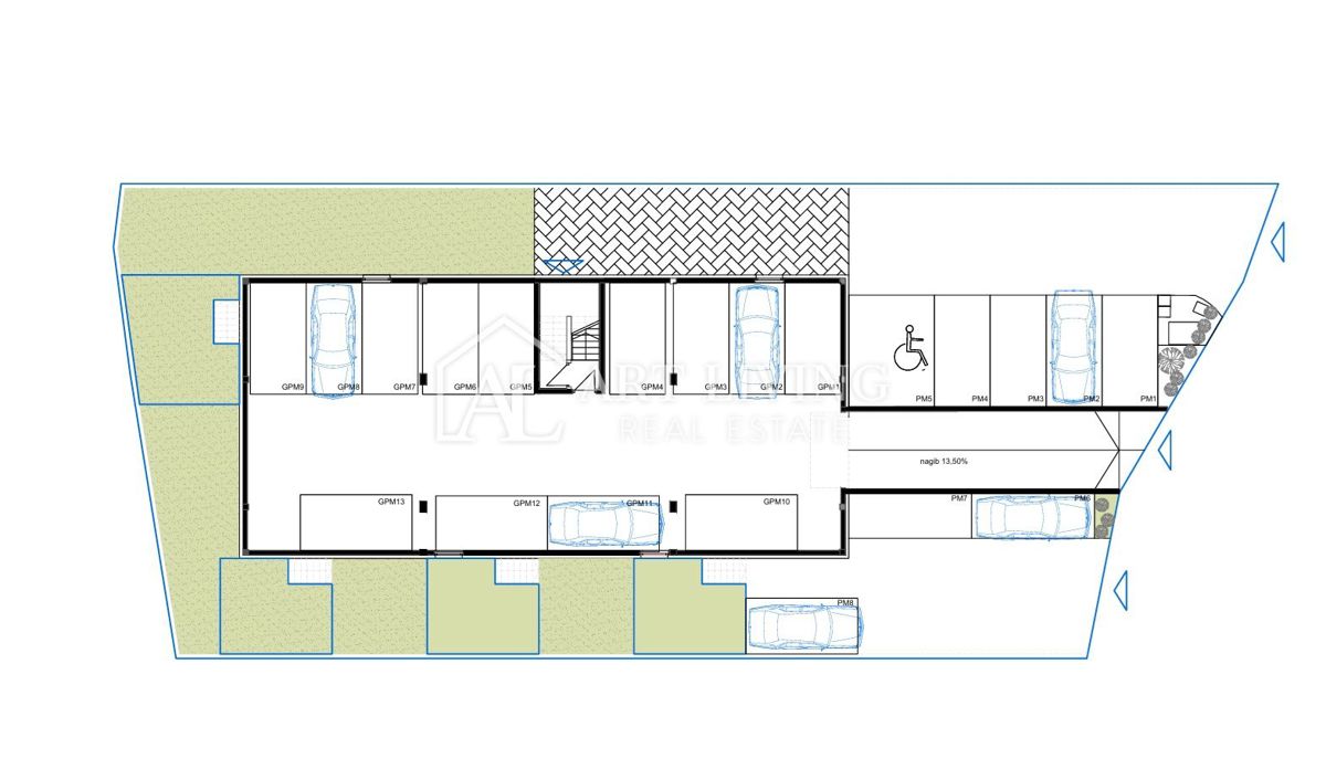
Na odlični lokaciji, približno 500 metrov od morja ter 400 metrov od trgovin in središča Vodic, se je začela gradnja modernega in kakovostnega stanovanjskega objekta s 14 stanovanjskimi enotami, razporejenimi v treh etažah: pritličje, prvo in drugo nadstropje. V kleti objekta so garažna mesta, pred stavbo pa odprta parkirišča. Stanovanje SJ2, s skupno neto bivalno površino 55,92 m², se nahaja v pritličju stanovanjskoposlovne stavbe. Sestavljeno je iz vhoda, dnevne sobe s kuhinjo in jedilnico, dveh spalnic, kopalnice ter loggie velikosti 7,56 m². Stanovanju pripadata eno garažno parkirno mesto, eno zunanje parkirno mesto ter lastni vrt velikosti 20,20 m². Vsa stanovanja bodo moderno in funkcionalno zasnovana ter opremljena s kakovostnimi sistemi za ogrevanje in hlajenje. Nepremičnina se nahaja na mirni lokaciji v bližini vseh pomembnih vsebin in je idealna priložnost za vse, ki iščejo moderno nepremičnino, primerno za bivanje, počitnice ali turistični najem. Kupec je oproščen plačila davka na promet nepremičnin. Zaključek gradnje je predviden za junij 2026. Spoštovani kupci, ogled nepremičnine je možen le po podpisu posredniške pogodbe, ki je osnova za nadaljnje postopke v zvezi s prodajo in plačilom provizije, v skladu z zakonom o posredovanju v prometu z nepremičninami. Agencija ART LIVING REAL ESTATE kot pooblaščeni posrednik zaračunava posredniško provizijo v višini 3 % + DDV ob sklenitvi predpogodbe ali prodajne pogodbe. OPOMBA: Ne odgovarjamo za morebitne napake v opisu nepremičnine, vendar si prizadevamo biti čim bolj natančni in točni. ID KODA AGENCIJE: 1478
ID: 1234736