Stanovanje - VODICE - 236.350 EUR
| Lokacija | VODICE, Šibeniško-kninska |
| Cena € | 236.350 |
| Površina | 81 m2 |
| Število sob | 3 |
| Število kopalnic | 1 |
| Bližina prevoza | DA |
| Oddaljenost od morja | 1200 m |
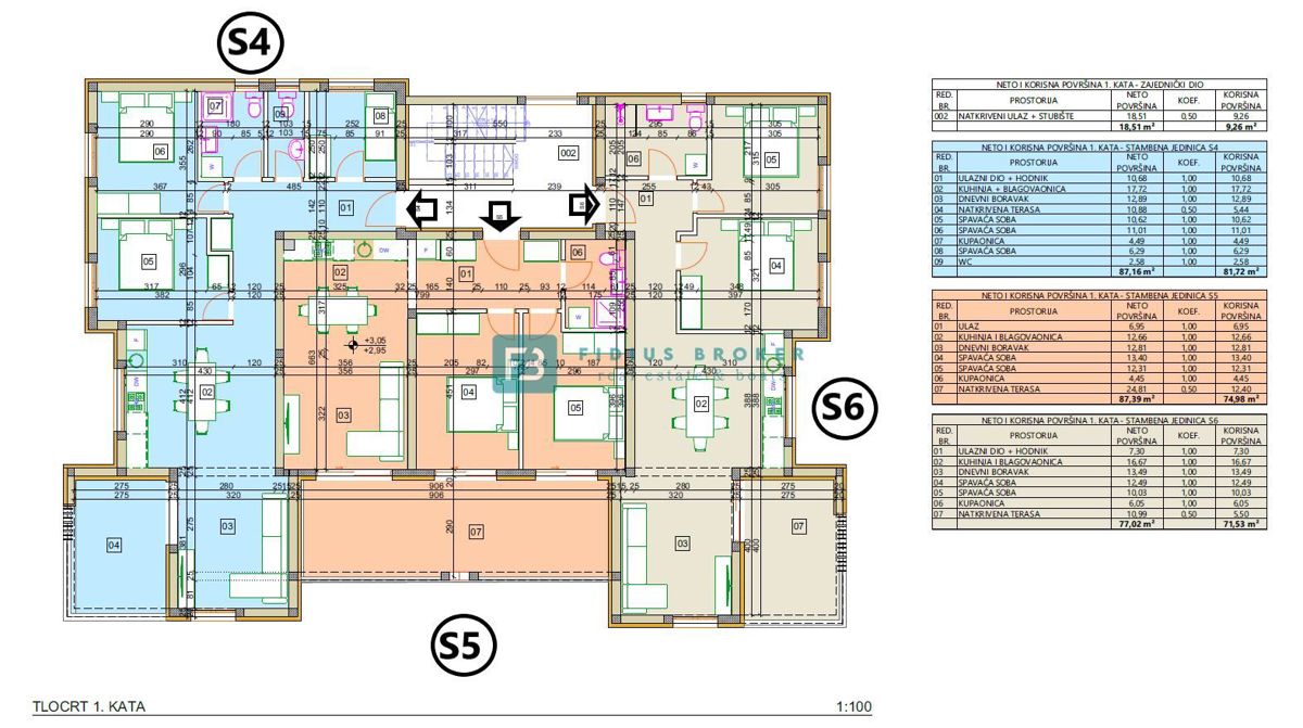
VODICE - Naprodaj je moderno stanovanje z 2 spalnicama v 1. nadstropju, ki se nahaja v mirnem okolju! Nahaja se na mirni lokaciji, v lepi soseski z družinskimi hišami in modernimi vilami. Stavba se nahaja v neposredni bližini šole, vrtca in trgovin, pa tudi centra, ki je oddaljen 800 m, in plaže, ki je oddaljena 1200 m. Začela se je gradnja nove stanovanjske stavbe s skupno 9 stanovanji. Sodobno oblikovana stanovanjska stavba bo imela tri nadstropja: pritličje + 1. nadstropje + 2. nadstropje. Stavba je grajena s kakovostnimi materiali v skladu z najnovejšimi gradbenimi standardi. Od opreme izpostavljamo: termo fasado, protivlomna vhodna vrata, PVC stavbno pohištvo, električne dvigalce rolet in komarnike, električno talno ogrevanje v dnevni sobi in kopalnicah, moderno kopalniško opremo, visokokakovostne keramične talne obloge, visokokakovosten laminat v spalnicah, inverterske klimatske naprave v dnevni sobi in spalnicah, TV/SAT priključek v dnevni sobi in spalnicah, steklene ograje na terasah, priključek za avtomobilski polnilec v shrambi. Možen je nakup dodatnega parkirnega mesta. Stanovanja v pritličju imajo pripadajoč del vrta, stanovanja v 1. in 2. nadstropju pa imajo čudovit razgled na morje, mesto in otoke. Stavba ima priključek na mestno kanalizacijo in asfaltirano dovozno cesto. Predvideni datum zaključka gradnje in vselitve - pomlad 2026. Stanovanje S5 se nahaja v 1. nadstropju s skupno uporabno površino 81,50 m2 (bivalna površina 62,58 m2 + terasa 24,81 m2 + shramba 4,02 m2 + parkirno mesto 12,50 m2). Sestavljen je iz vhoda, dveh spalnic, kopalnice, kuhinje z jedilnico in dnevne sobe z dostopom do čudovite pokrite terase velikosti 24,81 m2 s pogledom na morje. Stanovanju pripada shramba v izmeri 4,02 m2 v pritličju in parkirno mesto. Cena je 236.350 € (z vključenim DDV - kupec je oproščen plačila 3 % davka na nepremičnine). DRUGO NA VOLJO V STAVBI PRITLIČJE Stanovanje S1 se nahaja v pritličju s skupno uporabno površino 88,70 m2 (bivalna površina 67,63 m2 + terasa 10,37 m2 + vrt 133,87 m2 + parkirišče 12,50 m2). Sestavljen je iz vhodnega prostora in hodnika, dveh spalnic, kopalnice, kuhinje z jedilnico in dnevne sobe z izhodom na čudovito teraso velikosti 10,37 m2 in prostornega vrta velikosti 133,87 m2. Stanovanju pripada 1 parkirno mesto. Cena je 266.000 € (z vključenim DDV - kupec je oproščen plačila 3 % davka na nepremičnine). Stanovanje S2 - PRODANO Stanovanje S3 se nahaja v pritličju s skupno uporabno površino 58,75 m2 (bivalna površina 45,67 m2 + terasa 10,99 m2 + vrt 50,92 m2 + parkirišče 12,50 m2). Sestavljen je iz spalnice, kopalnice, kuhinje z jedilnico in dnevne sobe z dostopom do čudovite terase velikosti 10,99 m2 in vrta velikosti 50,92 m2. Stanovanju pripada 1 parkirno mesto. Cena je 182.500 € (z vključenim DDV - kupec je oproščen plačila 3 % davka na nepremičnine). 1. NADSTROPJE Stanovanje S4 se nahaja v 1. nadstropju s skupno uporabno površino 88,35 m2 (bivalna površina 76,28 m2 + terasa 10,88 m2 + shramba 4,13 m2 + parkirno mesto 12,50 m2). Sestavljen je iz vhodnega prostora in hodnika, treh spalnic, stranišča, kopalnice, kuhinje z jedilnico in dnevne sobe z dostopom do čudovite pokrite terase velikosti 10,88 m2 s pogledom na morje. Stanovanju pripada shramba v izmeri 4,13 m2 v pritličju in parkirno mesto. Cena je 282.500 € (z vključenim DDV - kupec je oproščen plačila 3 % davka na nepremičnine). Stanovanje S6 se nahaja v 1. nadstropju s skupno uporabno površino 78,89 m2 (bivalna površina 66,03 m2 + terasa 10,99 m2 + shramba 5,13 m2 + parkirno mesto 12,50 m2). Sestavljen je iz vhodnega prostora in hodnika, dveh spalnic, kopalnice, kuhinje z jedilnico in dnevne sobe z dostopom do čudovite pokrite terase velikosti 10,99 m2 s pogledom na morje. Stanovanju pripada shramba v izmeri 5,13 m2 v pritličju in parkirno mesto. Cena je 252.200 € (z vključenim DDV - kupec je oproščen plačila 3 % davka na nepremičnine). 2. NADSTROPJE Stanovanje S7 se nahaja v 2. nadstropju s skupno uporabno površino 87,71 m2 (bivalna površina 76,28 m2 + terasa 10,49 m2 + shramba 4,92 m2 + parkirno mesto 12,50 m2). Sestavljen je iz vhodnega prostora in hodnika, treh spalnic, stranišča, kopalnice, kuhinje z jedilnico in dnevne sobe z izhodom na čudovito teraso velikosti 10,49 m2 s pogledom na morje. Stanovanju pripada shramba v izmeri 4,92 m2 v pritličju in parkirno mesto. Cena je 298.000 € (z vključenim DDV - kupec je oproščen plačila 3 % davka na nepremičnine). Stanovanje S8 - PRODANO
ID: 1229747