Stanovanje - VODICE - 235.000 EUR
| Lokacija | VODICE, Šibeniško-kninska |
| Cena € | 235.000 |
| Površina | 66 m2 |
| Število sob | 2 |
| Število kopalnic | 1 |
| Bližina prevoza | DA |
| Oddaljenost od morja | 600 m |
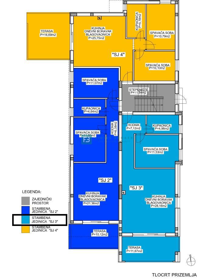
VODICE - Naprodaj luksuzno opremljeno enosobno stanovanje s teraso in shrambo v kleti! Nova stanovanjska stavba s 7 moderno opremljenimi stanovanji, zgrajena leta 2021, se nahaja na odlični lokaciji, le 600 m od plaže in 1100 m od centra. Oprema vključuje: polistirensko fasado, varnostna vhodna vrata, električne rolete, komarnike, visokokakovostne keramične ploščice v bež odtenkih, moderno kopalniško opremo, 1 klimatsko napravo, popolnoma opremljeno kuhinjo. Stanovanje SJ3 z neto uporabno površino 66,90 m2 (bivalna površina 51,77 m2 + terasa 11,10 m2 + shramba 5,74 m2 m2 + parkirno mesto 12,50 m2) se nahaja v visokem pritličju. Odlična jug-jugovzhodna orientacija je sestavljena iz vhoda/hodnika, kuhinje z jedilnico, dnevne sobe z izhodom na čudovito pokrito teraso velikosti 11,10 m2, spalnice in kopalnice. Stanovanju pripada shramba v velikosti 5,74 m2 v kleti stavbe in eno zunanje parkirno mesto v velikosti 12,50 m2 na velikem dvorišču stavbe. Stanovanje je popolnoma opremljeno. Takoj vseljivo. Lastniška dokumentacija je urejena in popolna. Cena je 235.000 €. Za dodatne informacije ali za dogovor o ogledu nas prosimo kontaktirajte po e-pošti ali telefonu.
ID: 1263438