Stanovanje - VODICE - 217.112 EUR
| Lokacija | VODICE, Šibeniško-kninska |
| Cena € | 217.112 |
| Površina | 77 m2 |
| Število sob | 3 |
| Število kopalnic | 1 |
| Blizu plaže | DA |
| Oddaljenost od morja | 0 m |
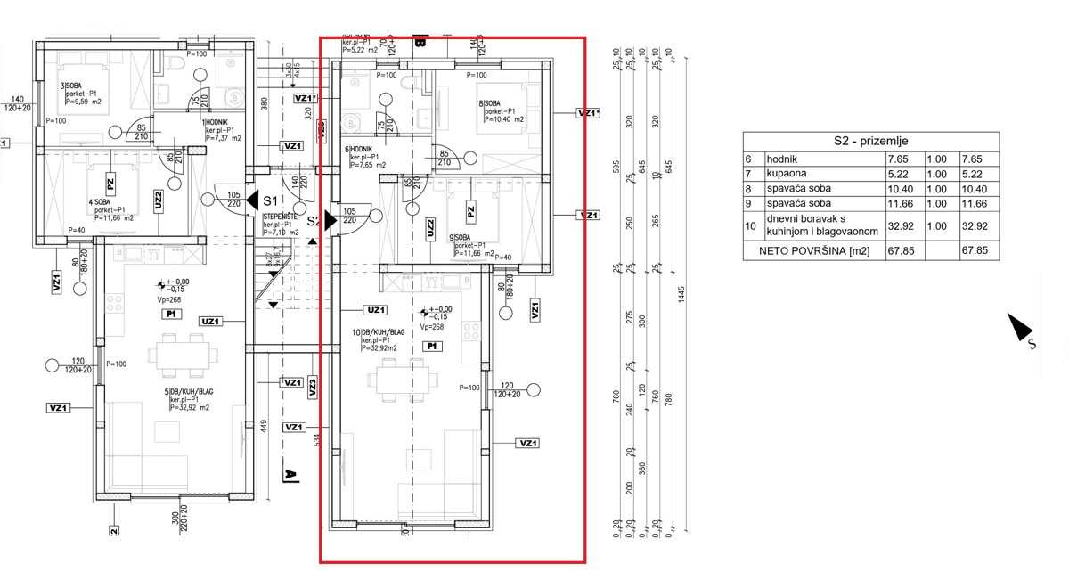
Vodice-**NOVOGRADNJA** prodajajo se stanovanja v manjši stanovanjski stavbi. Stavba sodobnega videza je zgrajena iz kakovostnih materialov in bo opremljena po najnovejših gradbenih standardih. Iz opreme izpostavljamo: 10 cm stiroporna fasada, PVC stavbno pohištvo, troslojno steklo, rolete z električnimi dvigalci, mreže proti komarjem na vseh oknih, električno talno gretje v kopalnici in dnevni sobi, klimatske naprave (gretje/hlajenje) v dnevni sobi in spalnicah... Stavba s skupno 4 stanovanji se nahaja na mirni lokaciji v okolju družinskih hiš in manjših stanovanjskih stavb, približno 1400 m od centra Vodic in okoli 1800 m od najbližje plaže. Trenutno je v gradnji, pričakovani rok dokončanja je poletje 2026. Na voljo so še stanovanja S2 v pritličju in S4 v nadstropju. Stanovanja imajo sodobno in funkcionalno razporeditev ter so idealna za družinsko življenje, počitnice ali kot investicija. S2 STANOVANJE POVRŠINA (izračun po koeficientih) – SKUPAJ 77,54 m2 - Stanovanjski prostor: 67,85 m2 - terasa: 3,60 m2 (dejanska površina 18 m2) - vrt: 3,59 m2 (dejanska površina 35,90 m2) - parkirno mesto: 2,50 m2 (dejanska površina 12,5 m2) RAZPORED PROSTOROV - vhodni hodnik - kopalnica - 2 spalnici - kuhinja in jedilnica ter dnevna soba - izhod na teraso površine 18 m2 - vrt površine 35,90 m2 - 1 parkirno mesto (možnost nakupa dodatnega parkirnega mesta) - Stanovanje ima funkcionalno in sodobno razporeditev, s poudarkom na dnevnem prostoru in zunanjem delu – popolno za bivanje skozi vse leto. ostalo na voljo: STAN S1 - prodano STAN S3 - prodano STAN S4 - površine 64,98 m2, ki obsega: vhodni hodnik, kopalnica, 2 spalnici, dnevna soba, kuhinja in jedilnica, terasa, 1 parkirno mesto, = 181.940,00 €
ID: 1252516