Stanovanje - VODICE - 215.000 EUR
| Lokacija | VODICE, Šibeniško-kninska |
| Cena € | 215.000 |
| Površina | 67 m2 |
| Število sob | 3 |
| Število kopalnic | 1 |
| Oddaljenost od morja | 0 m |
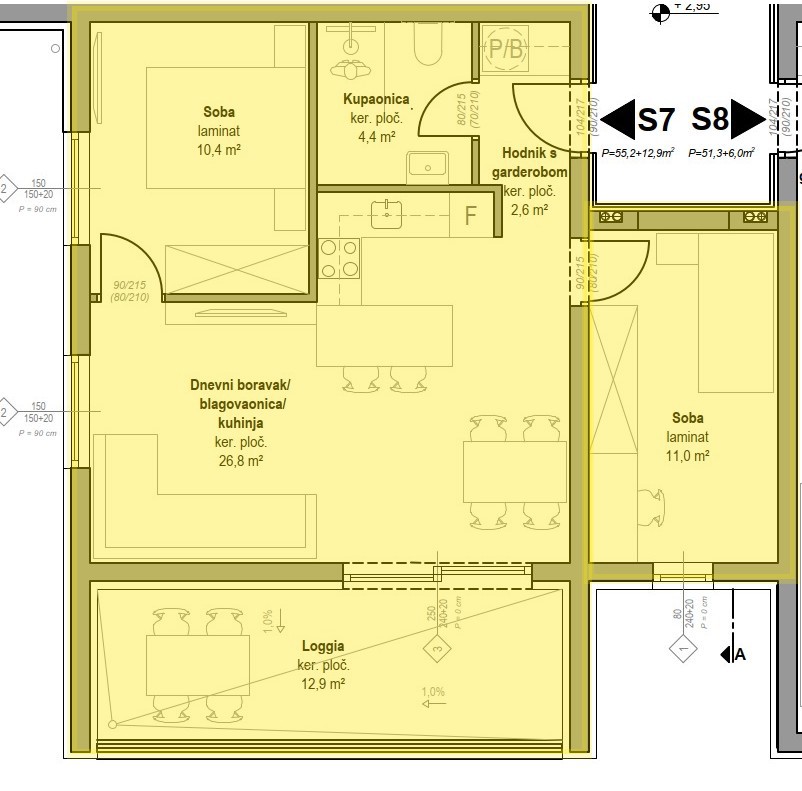
V Vodicah, v stavbi v gradnji, ponujamo v prodajo prijeten dvosobni stanovanje, ki se nahaja v 1. nadstropju stanovanjske stavbe v fazi načrtovanja gradnje. Načrtovani začetek gradnje je april 2026, predvideno vselitev pa poletje 2027. Stanovanje oznake S7 skupne površine 67,37 m2 je sestavljeno iz: - spalnice 1 - spalnice 2 - kuhinje z jedilnico in dnevno sobo - hodnika - kopalnice - lože Stanovanju pripada eno parkirno mesto pred stavbo. CENA: 215.000,00 € , DDV vključen v ceno (kupec ne plača davka na promet nepremičnin) Stavba je zgrajena iz kakovostnih materialov po najnovejših standardih in vključuje: - fasado iz stiropora - protivlomna in protipožarna vhodna vrata - PVC antracit okna z električnimi roletami - komarnike - bele notranje vrata - klimatske naprave v vseh prostorih in dnevni sobi - laminat v spalnicah - visokokakovostna keramika v preostalem delu stanovanja - električno talno gretje v kopalnici Stavba je oddaljena 1200 m od centra mesta, 700 m od morja in 800 m od plaže Hangar. - za to nepremičnino so kupci oproščeni agencijske provizije - Projekt je v fazi rezervacij, po začetku del se sklene predpogodba o prodaji. - Za vse dodatne informacije smo vam na voljo. DRUGA RAZPOLOŽLJIVA STANOVANJA: PPRITLIČJE Stanovanje z vrtom S1 v pritličju površine 81,69 m2, ki je sestavljeno iz: dnevna soba, kopalnica, hodnik, soba 1, soba 2, terasa, balkon, vrt površine 136 m2 ter dve parkirni mesti na dvorišču stavbe = 228.000,00 €, DDV je sestavni del cene Stanovanje z vrtom S2 - 85,31 m2, ki je sestavljeno iz: dnevna soba, kopalnica, hodnik, soba 1, soba 2, terasa, balkon, vrt površine 169 m2 ter dve parkirni mesti na dvorišču stavbe = 238.000,00 €, DDV je sestavni del cene, Stanovanje z vrtom S3 - 57,41 m2, ki je sestavljeno iz: dnevna soba, kopalnica, hodnik, soba 1, soba 2, terasa, vrt površine 54 m2 ter eno parkirno mesto na dvorišču stavbe = 189.000,00 €, DDV je sestavni del cene Stanovanje z vrtom S4 - 57,41 m2, ki je sestavljeno iz: dnevna soba, kopalnica, hodnik, soba 1, soba 2, terasa, vrt površine 57 m2 ter eno parkirno mesto na dvorišču stavbe = 189.000,00 €, DDV je sestavni del cene 1. NADSTROPJE: Stanovanje S5 - površine 64,6 m2, ki je sestavljeno iz: dnevna soba, kopalnica, hodnik, soba 1, soba 2, balkon ter dve parkirni mesti na dvorišču stavbe = 206.000,00 €, DDV je sestavni del kupoprodajne cene, Stanovanje S6 - površine 64,6 m2, ki je sestavljeno iz: dnevna soba, kopalnica, hodnik, soba 1, soba 2, balkon ter dve parkirni mesti na dvorišču stavbe = 206.000,00 €, DDV je sestavni del kupoprodajne cene, Stanovanje S7 - 67,37 m2, ki je sestavljeno iz: dnevna soba, kopalnica, hodnik, soba 1, soba 2, loža ter eno parkirno mesto na dvorišču stavbe = 215.000,00 €, DDV je sestavni del kupoprodajne cene, Stanovanje S8 - 55,7 m2, ki je sestavljeno iz: dnevna soba, kopalnica, hodnik, soba 1, soba 2, balkon ter eno parkirno mesto na dvorišču stavbe = 183.810,00 €, DDV je sestavni del kupoprodajne cene, 2. NADSTROPJE: Stanovanje S9 - 104,77 m2, ki je sestavljeno iz: dnevna soba, kopalnica 1, kopalnica 2, hodnik, soba 1, soba 2, soba 3, loža, terasa 1, terasa 2 ter dve parkirni mesti na dvorišču stavbe = 293.000,00 €, DDV je sestavni del kupoprodajne cene, Stanovanje S10 - 64,6 m2, ki je sestavljeno iz: dnevna soba, kopalnica, hodnik, soba 1, soba 2, balkon ter dve parkirni mesti na dvorišču stavbe = 206.000,00 €, DDV je sestavni del kupoprodajne cene, Stanovanje S11 - 67,37 m2, ki je sestavljeno iz: dnevna soba, kopalnica, hodnik, soba 1, soba 2, loža ter eno parkirno mesto na dvorišču stavbe = 215.000,00 €, DDV je sestavni del kupoprodajne cene,
ID: 1272228