Stanovanje - VODICE - 206.000 EUR
| Lokacija | VODICE, Šibeniško-kninska |
| Cena € | 206.000 |
| Površina | 64 m2 |
| Število sob | 3 |
| Število kopalnic | 1 |
| Oddaljenost od morja | 0 m |
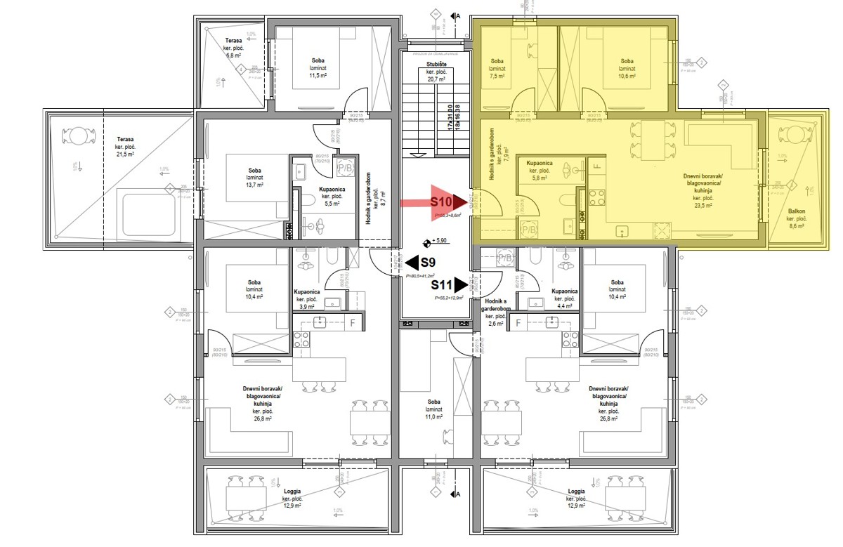
Vodicama - v predprodaji / fazi rezervacij, ponujamo v prodajo dvosobno stanovanje v II. nadstropju stanovanjske stavbe v fazi načrtovanja gradnje. Predviden začetek gradnje je april 2026, predvideno vselitev pa poletje 2027. Stanovanje oznake S10 skupne površine 64,60 m2 je sestavljeno iz: - spalnice 1 - spalnice 2 - kuhinje z jedilnico in dnevno sobo - hodnika - kopalnice - balkona z razgledom na morje Stanovanju pripadata dve parkirni mesti pred stavbo. CENA: 206.000,00 € , DDV je vključen v ceno (kupec ne plača davka na promet nepremičnin) Stavba je zgrajena iz kakovostnih materialov po najnovejših standardih in vključuje: - fasado iz stiropora - protivlomna in protipožarna vhodna vrata - antracit PVC stavbno pohištvo z električnimi roletami - komarnike - bele notranje vrata - klimatske naprave v vseh prostorih in dnevni sobi - laminat v spalnicah - visokokakovostne keramične ploščice v preostalih prostorih stanovanja - električno talno gretje v kopalnici Stavba je oddaljena 1200 m od centra mesta, 700 m od morja in 800 m od plaže Hangar. - za to nepremičnino so kupci oproščeni agencijske provizije - Projekt je v fazi rezervacij, ob začetku del se sklene predpogodba o prodaji. - Za vse dodatne informacije smo vam na voljo.
ID: 1264368