Stanovanje - VODICE - 200.000 EUR
| Lokacija | VODICE, Šibeniško-kninska |
| Cena € | 200.000 |
| Površina | 70 m2 |
| Število sob | 3 |
| Število kopalnic | 1 |
| Oddaljenost od morja | 0 m |
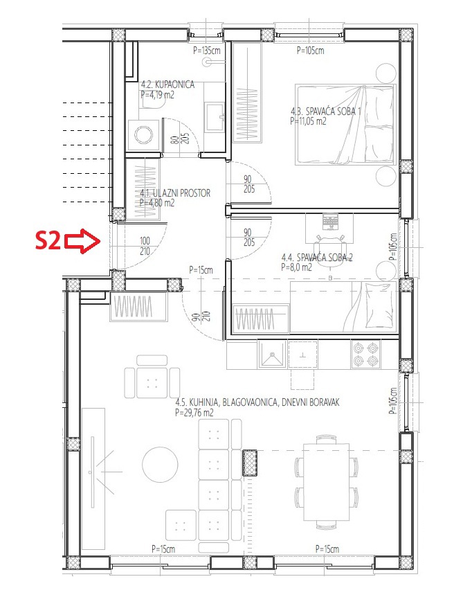
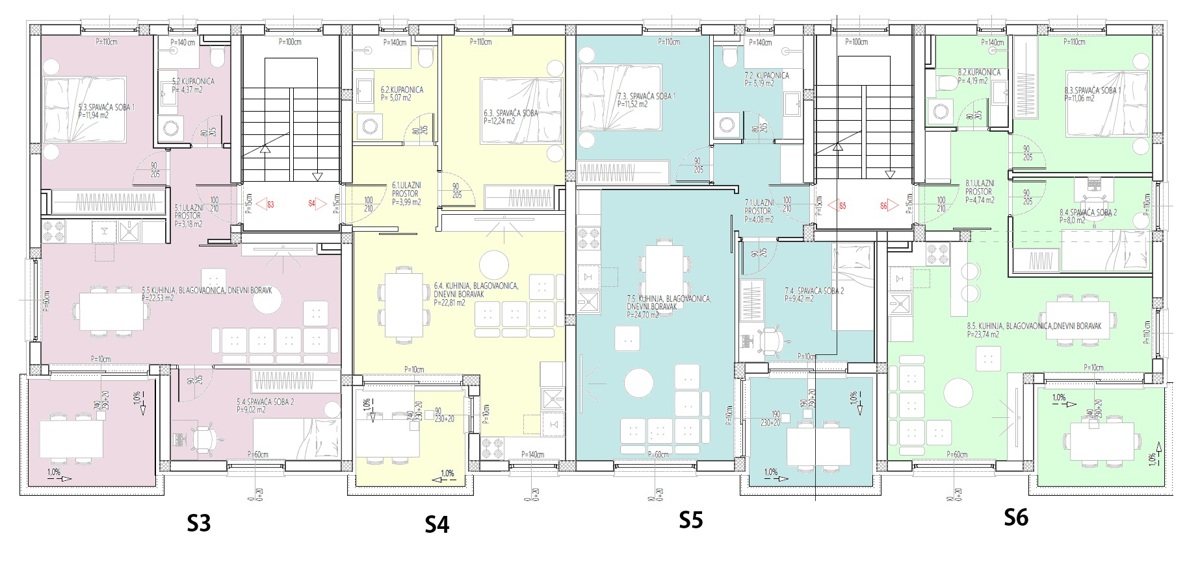
Na prodaj modern stanovanjski objekt v gradnji s skupno 12 stanovanji, ki se nahaja na mirni lokaciji v Vodicah, 1100 m od plaže in 1600 m od središča mesta. Projekt se izvaja po najnovejših gradbenih standardih, z uporabo kakovostnih materialov in moderne opreme, kar zagotavlja visoko energetsko učinkovitost in dolgoročno vrednost. Iz opreme izpostavljamo: - PVC stavbno pohištvo s troslojnimi stekli - Komarniki na vseh odprtinah - Keramika v dnevni sobi in kuhinji - Laminat v spalnicah - Klimatska naprava (3,5 kW) v dnevni sobi - Talno gretje v kopalnicah - Steklene ograje na terasah - Priključna moč 5,75 kW na stanovanje - Izolacijski sistem Sika in Mapei Objekt je v sistemu DDV, kar pomeni da kupci ne plačajo davka na promet nepremičnin. MOGOČNOST NAKUPA Z BIVALNIM KREDITOM Zagotovljeno 1 parkirno mesto na stanovanje, z možnostjo nakupa dodatnega parkirnega mesta po ceni 5.000 €. STAN S2 ima 70 m2 neto uporabne površine z vključenimi koeficienti in je sestavljen iz: vhod, 2 spalnici, kopalnica, kuhinja in jedilnica, dnevna soba, terasa, vrt cca. 92 m2, ter 1 parkirno mesto. Cena znaša 200.000 € (kupci so oproščeni plačila 3 % davka na promet nepremičnin). DRUGO NA VOLJO V OBJEKTU: PPRITLIČJE: APARTMA 1 ima 71,05 m2 neto uporabne površine z vključenimi koeficienti in je sestavljen iz: vhod, 2 spalnici, kopalnica, kuhinja in jedilnica, dnevna soba, terasa, vrt cca. 100 m2, ter 1 parkirno mesto. Cena znaša 205.000 € (kupci so oproščeni plačila 3 % davka na promet nepremičnin). APARTMA 2 = PRODANO STAN S1 ima 61,19 m2 neto uporabne površine z vključenimi koeficienti in je sestavljen iz: vhod, 2 spalnici, kopalnica, kuhinja in jedilnica, dnevna soba, terasa, vrt cca. 37 m2, ter 1 parkirno mesto. Cena znaša 180.000 € (kupci so oproščeni plačila 3 % davka na promet nepremičnin). PRVO NADSTROPJE: STAN S3 ima 62,33 m2 neto uporabne površine z vključenimi koeficienti in je sestavljen iz: vhod, 2 spalnici, kopalnica, kuhinja in jedilnica, dnevna soba, terasa, ter 1 parkirno mesto. Cena znaša 175.000 € (kupci so oproščeni plačila 3 % davka na promet nepremičnin). STAN S4 PRODANO STAN S5 ima 63,72 m2 neto uporabne površine z vključenimi koeficienti in je sestavljen iz: vhod, 2 spalnici, kopalnica, kuhinja in jedilnica, dnevna soba, terasa, ter 1 parkirno mesto. Cena znaša 185.000 € (kupci so oproščeni plačila 3 % davka na promet nepremičnin). STAN S6 ima 60,76 m2 neto uporabne površine z vključenimi koeficienti in je sestavljen iz: vhod, 2 spalnici, kopalnica, kuhinja in jedilnica, dnevna soba, terasa, ter 1 parkirno mesto. Cena znaša 200.000 € (kupci so oproščeni plačila 3 % davka na promet nepremičnin). DRUGO NADSTROPJE: STAN S7 ima 62,33 m2 neto uporabne površine z vključenimi koeficienti in je sestavljen iz: vhod, 2 spalnici, kopalnica, kuhinja in jedilnica, dnevna soba, terasa, ter 1 parkirno mesto. Cena znaša 175.000 € (kupci so oproščeni plačila 3 % davka na promet nepremičnin). STAN S8 PRODANO STAN S9 ima 63,72 m2 neto uporabne površine z vključenimi koeficienti in je sestavljen iz: vhod, 2 spalnici, kopalnica, kuhinja in jedilnica, dnevna soba, terasa, ter 1 parkirno mesto. Cena znaša 185.000 € (kupci so oproščeni plačila 3 % davka na promet nepremičnin). STAN S10 ima 60,76 m2 neto uporabne površine z vključenimi koeficienti in je sestavljen iz: vhod, 2 spalnici, kopalnica, kuhinja in jedilnica, dnevna soba, terasa, ter 1 parkirno mesto. Cena znaša 200.000 € (kupci so oproščeni plačila 3 % davka na promet nepremičnin).
ID: 1260560