Stanovanje - VODICE - 199.000 EUR
| Lokacija | VODICE, Šibeniško-kninska |
| Cena € | 199.000 |
| Površina | 74 m2 |
| Število sob | 4 |
| Število kopalnic | 1 |
| Oddaljenost od morja | 0 m |
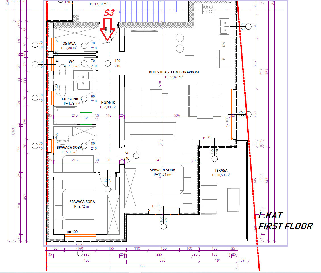
Vodice - prodajajo se stanovanja v manjši stanovanjski stavbi na mirni lokaciji v novogradnji. Stavba sodobnega videza ima dve etaži: pritličje + nadstropje. Na vsaki etaži bosta dve stanovanji. Stavba je trenutno v gradnji z visokokakovostnimi materiali in bo opremljena po najnovejših gradbenih standardih: fasada iz stiropora, PVC stavbno pohištvo antracitne barve, rolete z električnimi dvigalci, keramične ploščice, sodobna kopalniška sanitarna oprema, talno gretje, klima v dnevni sobi in spalnicah.... Načrtovani rok zaključka gradnje je začetek leta 2027. Vsako stanovanje ima eno parkirno mesto, stanovanja v pritličju pa imajo tudi pripadajoči del vrta. Stavba se nahaja na mirni lokaciji, približno 1500 m od plaže in približno 1100 m od središča mesta. S2 stanovanje skupne neto uporabne površine 74,63 m2 se nahaja v pritličju stavbe in je sestavljeno iz vhoda, hodnika, treh spalnic, kopalnice, WC-ja, kuhinje z jedilnico in dnevne sobe z izhodom na pokrito teraso površine 8,60 m2. Stanovanju pripada vrt površine 121 m2 in eno parkirno mesto. CENA: 199.000 € OSTALO NA VOLJO V OBJEKTU: PRITLIČJE: S1 stanovanje neto uporabne površine 81,29 m2 se nahaja v pritličju stavbe in je sestavljeno iz vhoda, hodnika, treh spalnic, kopalnice, WC-ja, shrambe, kuhinje z jedilnico in dnevne sobe z izhodom na pokrito teraso. Stanovanju pripada vrt površine 51,23 m2 in eno parkirno mesto. CENA: 225.000 € NADSTROPJE S3 stanovanje skupne neto uporabne površine 84,89 m2 se nahaja v nadstropju stavbe in je sestavljeno iz vhoda, hodnika, treh spalnic, kopalnice, WC-ja, shrambe, kuhinje z jedilnico in dnevne sobe z izhodom na pokrito teraso površine 16,03 m2. Stanovanju pripada eno parkirno mesto. CENA: 220.000 € S4 stanovanje skupne neto uporabne površine 74,05 m2 se nahaja v nadstropju stavbe in je sestavljeno iz vhoda, hodnika, treh spalnic, WC-ja, kopalnice, kuhinje z jedilnico in dnevne sobe z izhodom na pokrito teraso površine 7,44 m2. Stanovanju pripada eno parkirno mesto. CENA: 195.000 €
ID: 1270712