Stanovanje - VODICE - 199.000 EUR
| Lokacija | VODICE, Šibeniško-kninska |
| Cena € | 199.000 |
| Površina | 74 m2 |
| Število sob | 3 |
| Površina parcele | 121 m2 |
| Število kopalnic | 2 |
| Bližina prevoza | DA |
| Oddaljenost od morja | 1600 m |
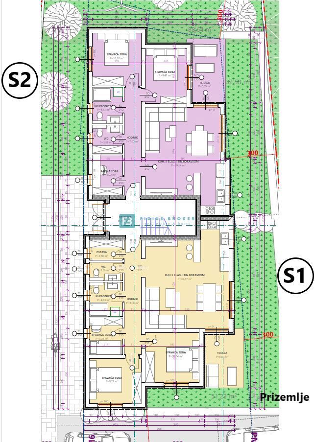
VODICE - Naprodaj moderno pritlično stanovanje z 2 spalnicama in vrtom velikosti 121 m2, 1300 m od centra in 1600 m od plaže! V gradnji je manjši moderni objekt s 4 stanovanjskimi enotami, z zanimivo zasnovo in funkcionalno razporeditvijo. Nahaja se v mirnem predelu, v strnjenem delu mesta, obdanem z družinskimi hišami. Sestavljen je iz dveh nadstropij: pritličje. Stavba se gradi s kakovostnimi materiali po najnovejših gradbenih standardih in bo opremljena z: polistirensko fasado, protivlomnimi in protipožarnimi vrati, PVC stavbnim pohištvom, ALU električnimi roletami z mrežami proti komarjem, klimatsko napravo v vseh prostorih, visokokakovostnimi talnimi oblogami, moderno kopalniško opremo, električnim talnim ogrevanjem v dnevni sobi in kopalnici. Vsakemu stanovanju pripada eno parkirno mesto. Predviden zaključek del in vselitev - konec leta 2026. Stanovanje S2 s skupno uporabno površino 74,63 m2 + vrt velikosti 121,22 m2 se nahaja v pritličju. Stanovanje je obrnjeno proti vzhodu in obsega hodnik, stranišče, kopalnico, dve spalnici, delovno sobo, kuhinjo z jedilnico in udobno dnevno sobo z dostopom na pokrito teraso velikosti 8,50 m2. Stanovanju pripada tudi vrt velikosti 121,22 m2, ki obdaja stanovanje in teraso, ter eno zunanje parkirno mesto pred stavbo. Cena je 199.000 €. DRUGO NA VOLJO V STAVBI PRITLIČJE Stanovanje S1 s skupno uporabno površino 81,29 m2 + vrt velikosti 51,23 m2 se nahaja v pritličju. Stanovanje je obrnjeno proti jugu in obsega hodnik, stranišče, shrambo, kopalnico, tri spalnice, kuhinjo z jedilnico in udobno dnevno sobo z dostopom na pokrito teraso velikosti 8,83 m2. Stanovanju pripada tudi vrt velikosti 51,23 m2, ki obdaja stanovanje in teraso, ter eno zunanje parkirno mesto pred stavbo. Cena je 225.000 €. NADSTROPJE Stanovanje S3 s skupno uporabno površino 84,89 m2 se nahaja v 1. nadstropju. Stanovanje je obrnjeno proti jugu in obsega hodnik, stranišče, shrambo, kopalnico, tri spalnice, kuhinjo z jedilnico in udobno dnevno sobo z dostopom na pokrito teraso velikosti 16,03 m2. Stanovanju pripada eno zunanje parkirno mesto pred stavbo. Cena je 220.000 €. Stanovanje S4 s skupno uporabno površino 74,05 m2 se nahaja v 1. nadstropju. Stanovanje je obrnjeno proti vzhodu in obsega hodnik, stranišče, kopalnico, dve spalnici, delovno sobo, kuhinjo z jedilnico in udobno dnevno sobo z dostopom na pokrito teraso velikosti 7,44 m2. Stanovanju pripada eno zunanje parkirno mesto pred stavbo. Cena je 195.000 €. Za več informacij nas kontaktirajte po e-pošti ali telefonu.
ID: 1263002