Stanovanje - VODICE - 182.500 EUR
| Lokacija | VODICE, Šibeniško-kninska |
| Cena € | 182.500 |
| Površina | 58 m2 |
| Število sob | 2 |
| Površina parcele | 50 m2 |
| Število kopalnic | 1 |
| Bližina prevoza | DA |
| Oddaljenost od morja | 900 m |
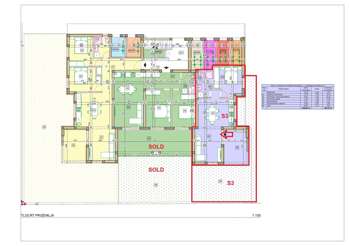
Stanovanje z oznako S3 se nahaja v Vodicah, v pritličju stavbe s pritličjem in dvema nadstropjema, skupaj 9 stanovanj. Stanovanje je sestavljeno iz ene spalnice, kuhinje in jedilnice, dnevne sobe, kopalnice, pokrite terase, vrta in parkirnega mesta. Skupna površina vsega naštetega je 120,08 m2. Stavba je grajena visokokakovostno, s hidro in toplotno izolacijo ter silikatno fasado. Tla so prekrita s keramiko in laminatom, v kopalnici in dnevni sobi je nameščeno talno ogrevanje, okna imajo zaščito pred mrčesom, nameščene so električne rolete, v vseh sobah in dnevni sobi so nameščene klimatske naprave z inverterjem. Stanovanje ima prostoren vrt in eno parkirno mesto. Prodajalec je v sistemu DDV. Kupec ne plača 3% davka na nepremičnine.
ID: 1216288