Stanovanje - VODICE - 165.000 EUR
| Lokacija | VODICE, Šibeniško-kninska |
| Cena € | 165.000 |
| Površina | 48 m2 |
| Število sob | 2 |
| Število kopalnic | 1 |
| Oddaljenost od morja | 0 m |
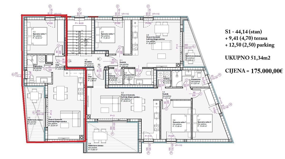
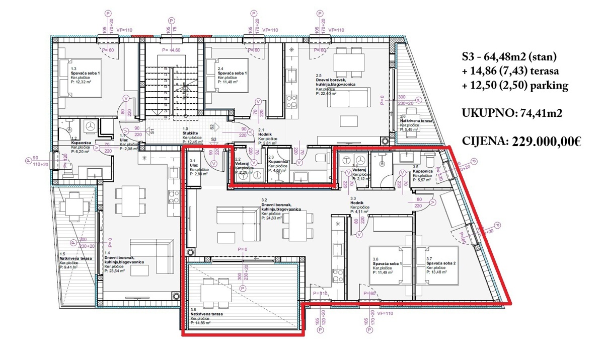
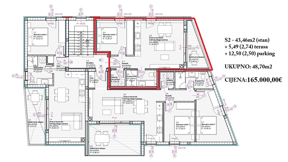
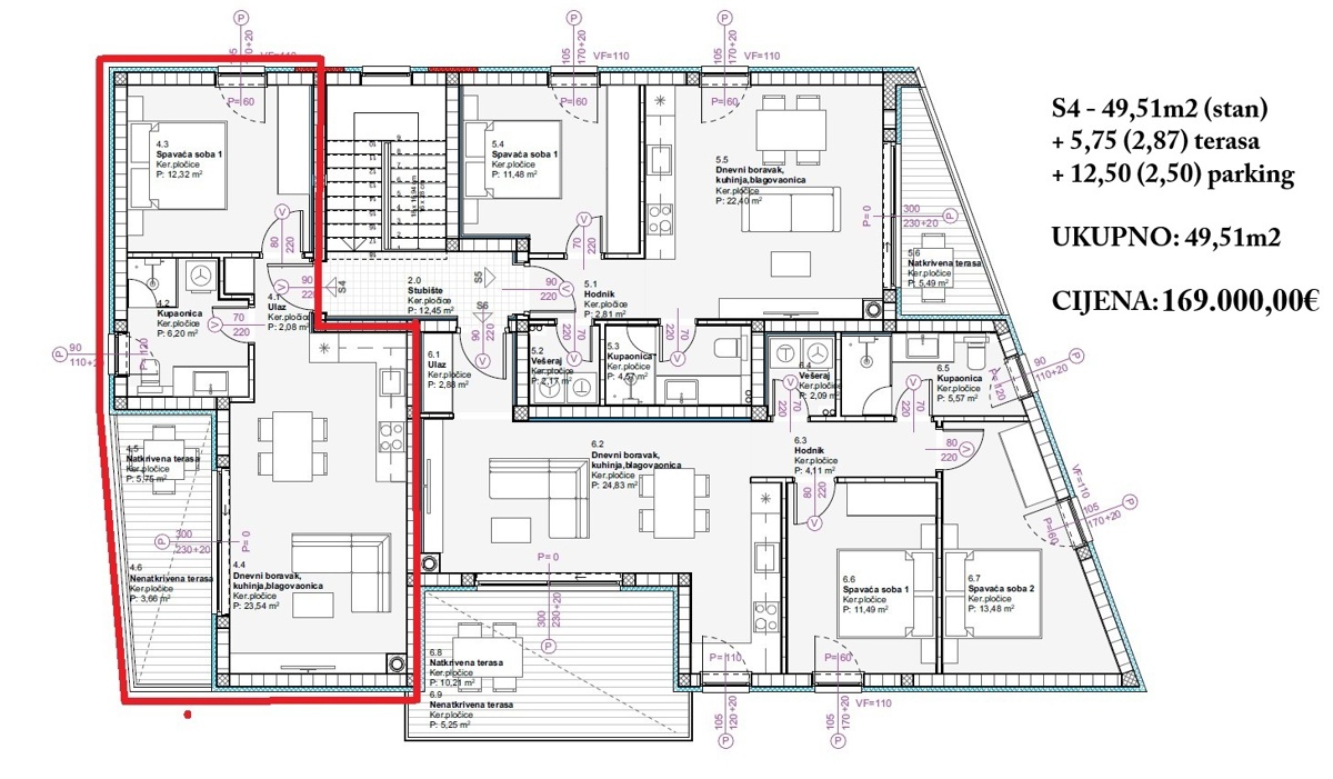
VODICE - NOVOGRADNJA - STANOVANJA V PRODAJI V mirni in privlačni mestni coni je začela gradnja moderne stanovanjske stavbe s skupno 6 stanovanji in poslovnim prostorom. Poslovni prostor je prodan. V prodaji so vsa 6 stanovanj. Načrtovani zaključek del: 1. julij 2027 LOKACIJA - 900 m od plaže Vrulje - 1.100 m od središča mesta - Mirna in zaželena mestna cona Idealno za celoletno bivanje ali kot investicija za oddajo. NA VOLJO SO STANOVANJA: PRVO NADSTROPJE: Stanovanje S1 – nahaja se v prvem nadstropju, neto uporabna površina 51,34 m2, sestavljeno iz: vhod, spalnica, kopalnica, kuhinja, jedilnica in dnevna soba, pokrita terasa. 1 parkirno mesto pred stavbo. Cena: 175.000 € Stanovanje S2 – nahaja se v prvem nadstropju, neto uporabna površina 48,70 m2, sestavljeno iz: hodnik, pralnica, spalnica, kopalnica, kuhinja, jedilnica in dnevna soba, pokrita terasa. 1 parkirno mesto. Cena: 165.000 € Stanovanje S3 – nahaja se v prvem nadstropju, neto uporabna površina 74,41 m2, sestavljeno iz: kuhinja, jedilnica in dnevna soba, hodnik, pralnica, 2 spalnici, kopalnica, pokrita terasa. 1 parkirno mesto. Cena: 229.000 € DRUGO NADSTROPJE: Stanovanje S4 – nahaja se v drugem nadstropju, neto uporabna površina 49,51 m2, sestavljeno iz: vhod, spalnica, kopalnica, kuhinja, jedilnica in dnevna soba, pokrita terasa in nepokrita terasa. 1 parkirno mesto pred stavbo. Cena: 169.000 € Stanovanje S5 – nahaja se v drugem nadstropju, neto uporabna površina 48,67 m2, sestavljeno iz: hodnik, pralnica, spalnica, kopalnica, kuhinja, jedilnica in dnevna soba, pokrita terasa. 1 parkirno mesto. Cena: 165.000 € Stanovanje S6 – nahaja se v drugem nadstropju, neto uporabna površina 72,05 m2, sestavljeno iz: vhod, kuhinja, jedilnica in dnevna soba, hodnik, pralnica, 2 spalnici, kopalnica, pokrita terasa in nepokrita terasa. 1 parkirno mesto. Cena: 219.000 € OPREMA IN ZNAČILNOSTI: • Vsakemu stanovanju pripada tlakovana parkirna površina • Možnost nakupa dodatnega parkirnega mesta • Termo fasada za visoko energetsko učinkovitost • Steklene balkonske ograje sodobnega videza • ALU drsna balkonska vrata • Izolacijski sistemi Sika in Mapei • Protivlomna in protipožarna vhodna vrata • Keramika velikega formata • Lastni števci za elektriko in vodo • Video domofon • TV priključki v vsaki sobi in dnevni sobi • Priprava za peč na trda goriva • WiFi inverter klimatske naprave – GREE ali Midea • Klimatske naprave v vseh spalnicah in dnevni sobi • Talno ogrevanje v kopalnicah • Električni bojler • Sanitarna oprema vrhunske kakovosti: Grohe / Hansgrohe / Voxort • Električne rolete • Komarniki na oknih Kupec ima možnost izbire keramike in barv sanitarne opreme po lastnih željah, odvisno od faze gradnje.
ID: 1267815