Parcela - VODICE - 730.000 EUR
| Lokacija | VODICE, Šibeniško-kninska |
| Cena € | 730.000 |
| Površina | 748 m2 |
| Oddaljenost od morja | 0 m |
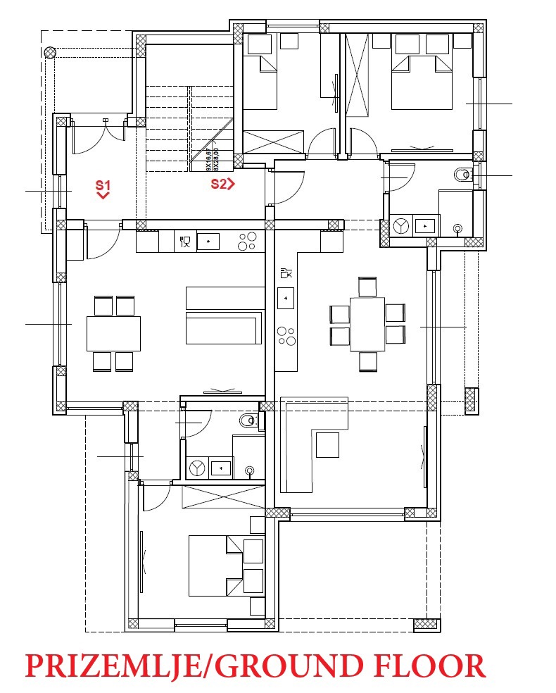
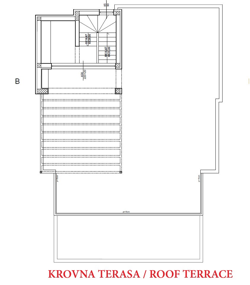
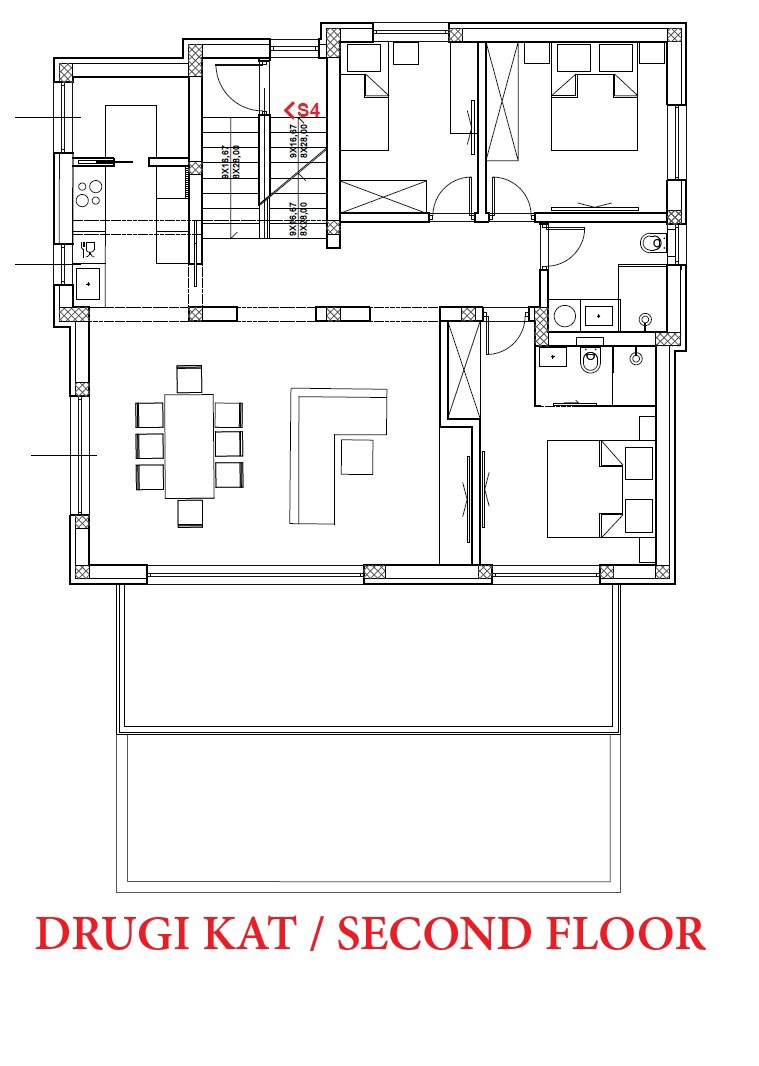
Prodaja se vrhunsko gradbeno zemljišče površine 748 m2 na eni izmed najboljših lokacij v Vodicah. Idealna priložnost za vlagatelje – zemljišče ima pravnomočno gradbeno dovoljenje za izgradnjo sodobne stavbe s 4 stanovanji in strešno teraso, komunalne priključke pa se nahajajo neposredno na zemljišču (voda, elektrika), kar bistveno pospešuje začetek gradnje. LOKACIJA - le 200 m od novo urejene plaže Vodice – Tribunj - 1000 m od središča Vodic - mirna cona, vrhunska mikrolokacija - bližina plaže, sprehajalne poti in vseh vsebin PROJEKT – ODOBRENA GRADNJA Stavba je predvidena na 4 nadstropjih: PRITLIČJE - Stanovanje S1 – enosobno, 44,95 m2 - Stanovanje S2 – dvosobno, 64,45 m2 PRVO NADSTROPJE - Stanovanje S3 – trosobno, 102,23 m2 DRUGO NADSTROPJE - Stanovanje S4 – trosobno, 104,07 m2 STREŠNO NADSTROPJE - velika strešna terasa 126,66 m2, pripada stanovanju S4 - idealna za jacuzzi, sončenje ali počivalni kotiček DODATNO - 6 parkirnih mest - komunalni priključki na zemljišču (pripravljeno za gradnjo) - sodobni arhitekturni projekt, idealen za luksuzna stanovanja
ID: 1242149