Hiša - VODICE - 899.999 EUR
| Lokacija | VODICE, Šibeniško-kninska |
| Cena € | 899.999 |
| Površina | 589 m2 |
| Število sob | 9 |
| Površina parcele | 1100 m2 |
| Število kopalnic | 6 |
| Bližina prevoza | DA |
| Oddaljenost od morja | 1100 m |
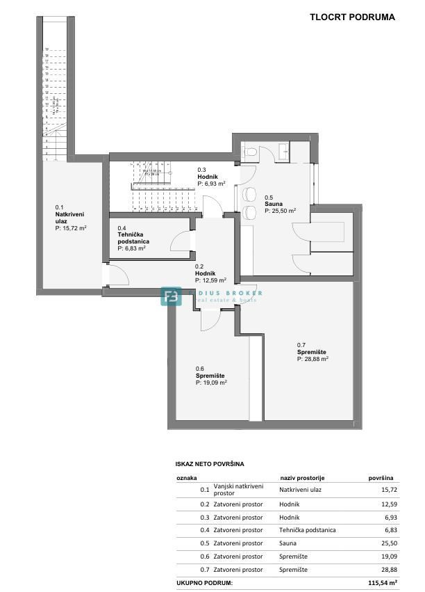
VODICE - Prodamo moderno dizajnersko vilo v Vodicah, ki se nahaja na mirni in odlični lokaciji, 1100 m od plaže Vrulje in 1000 m od centra mesta. Ta impozantna vila ponuja vse, kar potrebujete za razkošno in udobno življenje - vrhunski dizajn, visoko kakovost gradnje in skrbno premišljeno razporeditev prostorov. S svojo arhitekturo in prostornostjo se izpostavlja kot popoln dom za tiste, ki iščejo mir in zasebnost, hkrati pa želijo biti v bližini vseh ključnih objektov. Luksuzna nepremičnina se razprostira v treh etažah (klet + pritličje + 1. nadstropje) s skupno uporabno površino 589,89 m2 + 140,36 m2 terase in se nahaja na prostorni parceli velikosti 1499 m2. Vila je trenutno v izgradnji in bo po projektu obdana z lepo urejeno okolico. V sklopu ograjenega in tlakovanega dvorišča bo velik ogrevan bazen velikosti 53,19 m² ter sonaravni vrt z avtomatskim namakanjem. Vila bo imela delni pogled na morje. RAZPORED PROSTOROV KLET: pokrit vhod, tehnični prostor, hodnik, savna, vinska klet, dve shrambi PRITLIČJE: garaža, 6 parkirnih mest, pralnica, WC, dve spalnici s kopalnico, garderoba, kuhinja z jedilnico in dnevna soba z izhodom na tri terase, prostoren ogrevan bazen (53,19 m²), sončna terasa in letna kuhinja 1. NADSTROPJE: tri spalnice, dve kopalnici, terase, telovadnica, kuhinja z jedilnico, dnevna soba z izhodom na teraso Cena v roh-bau fazi je 899.999 €, v celoti dokončana vila na ključ pa stane 1.999.999 €. Za več informacij ali ogled nas kontaktirajte!
ID: 1248450