Hiša - VODICE - 675.000 EUR
| Lokacija | VODICE, Šibeniško-kninska |
| Cena € | 675.000 |
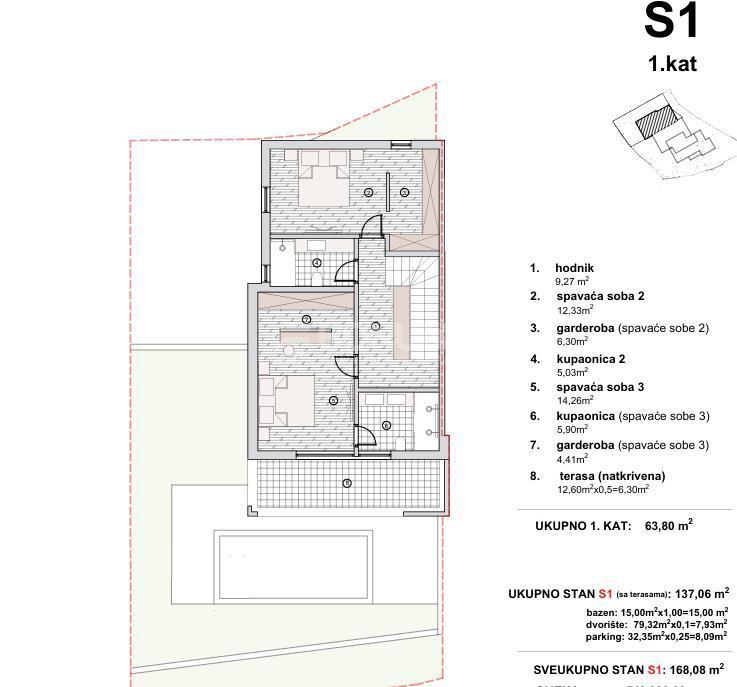
| Površina | 137 m2 |
| Število sob | 4 |
| Število kopalnic | 2 |
| Bližina prevoza | DA |
| Oddaljenost od morja | 800 m |
Naprodaj je luksuzna moderna hiša S1 v novogradnji v Vodicah, umeščena v mirno okolje z odprto in funkcionalno razporeditvijo prostorov. Hiša se razprostira v dveh etažah in ponuja skupno 137,06 m² bivalne površine s terasami, poleg tega pa še zasebno dvorišče, bazen velikosti 15 m² in parkirno mesto. V pritličju se nahajajo vhodni prostor, kuhinja z jedilnico in dnevno sobo, spalnica, kopalnica, stopnišče ter pokrita terasa, idealna za bivanje na prostem. V nadstropju sta dve spalnici, vsaka s svojo kopalnico in garderobo, hodnik ter dodatna pokrita terasa. Gradnja je v teku, do 16.06.2026 je predviden zaključek približno 90 % del, dokončanje celotnega objekta pa je načrtovano do 15.10.2026. Nepremičnina se nahaja približno 800 metrov zračne linije od morja in plaž ter okoli 1000 metrov od središča Vodic, zato je primerna tako za stalno bivanje kot tudi kot naložba za turistični najem. Vodice so ena najbolj zaželenih destinacij ob Jadranu, znane po lepih plažah, dolgih obmorskih sprehajalnih poteh, bogati kulinarični ponudbi in živahnem poletnem vzdušju, hkrati pa omogočajo kakovostno bivanje skozi vse leto.
ID: 1259180