Hiša - VODICE - 550.000 EUR
| Lokacija | VODICE, Šibeniško-kninska |
| Cena € | 550.000 |
| Površina | 186 m2 |
| Število sob | 5 |
| Površina parcele | 67 m2 |
| Število kopalnic | 2 |
| Oddaljenost od morja | 0 m |
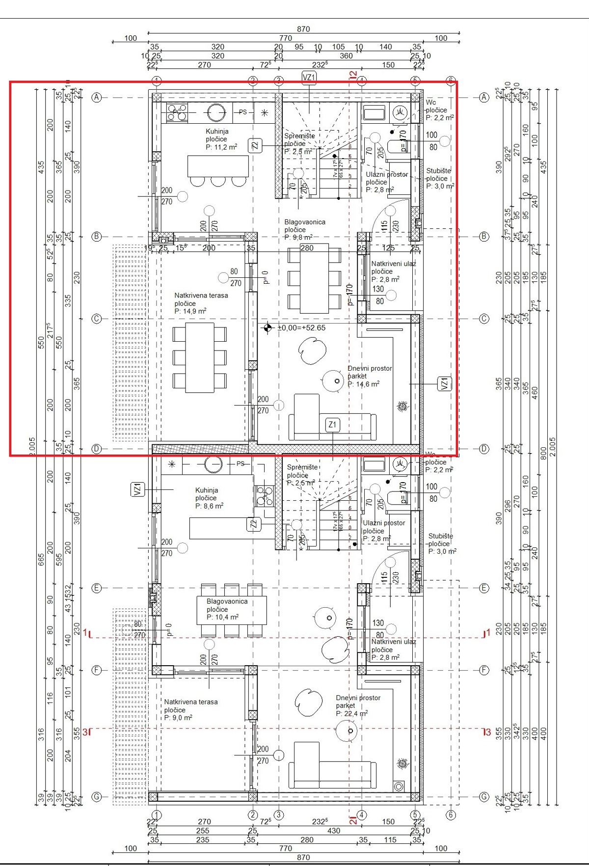
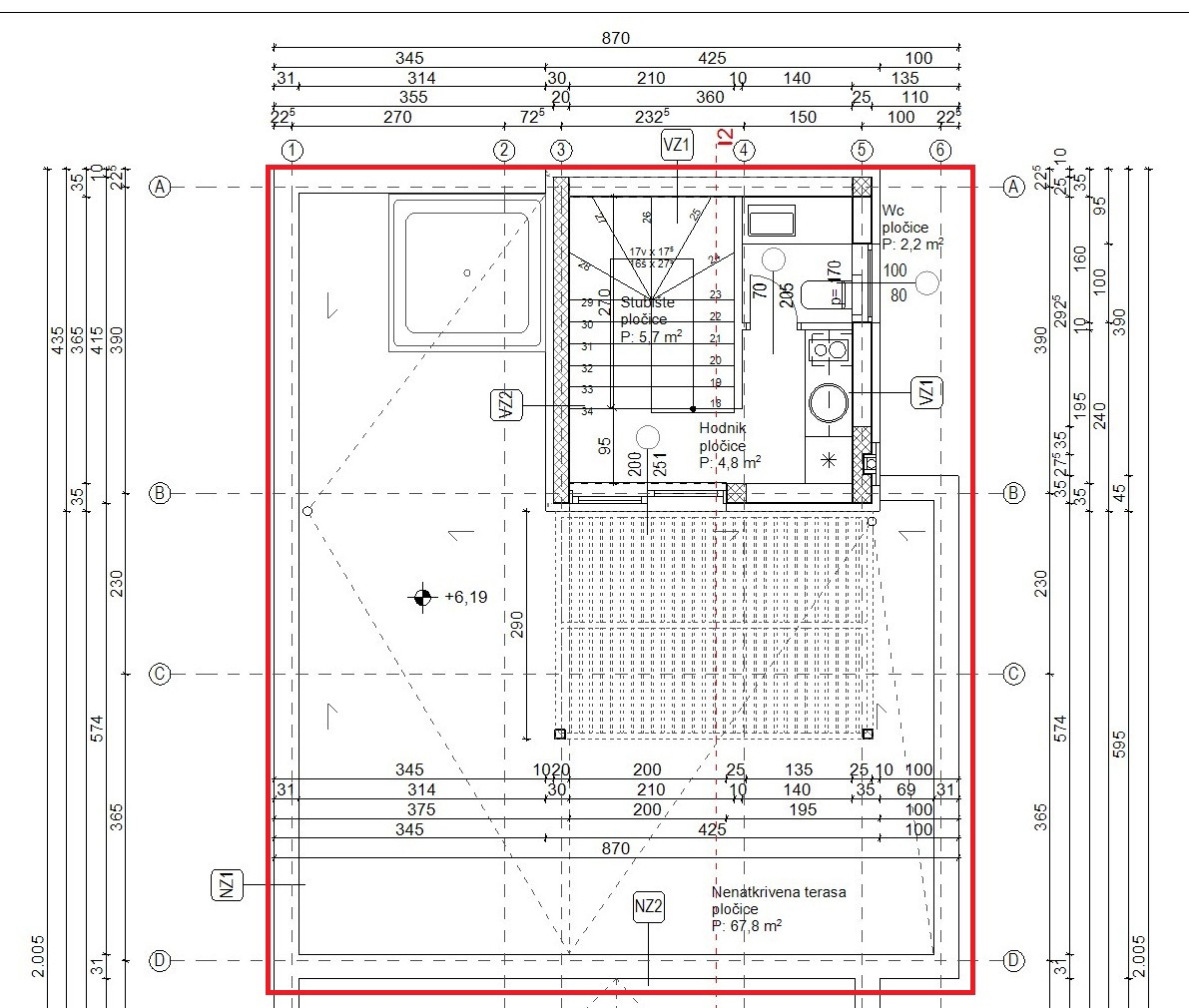
Vodice - **NOVOGRADNJA** dvojna hiša modernega videza na mirni lokaciji. Hiša bo zgrajena iz kakovostnih materialov in opremljena po najnovejših gradbenih standardih. Iz opreme izpostavljamo: 8 cm stiroporna fasada, PVC stavbno pohištvo, rolete z električnimi dvigalci, mreže proti komarjem, klimatske naprave v spalnicah in dnevnem prostoru, talno električno ogrevanje v dnevnem prostoru in kopalnicah, bazen obložen s folijo, bio jama ... Hiši pripada ustrezen del vrta, bazen površine 26,25 m2 in dve parkirni mesti. Hiša, orientirana na jugozahod, se nahaja na mirni lokaciji, 1800 m od plaže in 1500 m od centra. Hiša S1 neto uporabne površine 186,78 m2 sestavljena iz treh etaž: pritličje + 1. nadstropje + 2. nadstropje. Pritličje obsega pokrit vhod, vhodni prostor, WC, shramba, kuhinjo, jedilnico in dnevni prostor z izhodom na pokrito teraso. Z notranjim stopniščem se pride v nadstropje hiše, ki obsega hodnik, kopalnico, dve spalnici, glavno spalnico z lastno kopalnico in pokrito teraso. Zadnja etaža objekta obsega hodnik, WC in nepokrito teraso površine 67,72 m2. = 550.000,00 € Hiša S2 neto uporabne površine 138,98 m2 sestavljena iz dveh etaž: pritličje + 1. nadstropje. Pritličje obsega pokrit vhod, vhodni prostor, WC, shramba, kuhinjo, jedilnico in dnevni prostor z izhodom na pokrito teraso. Z notranjim stopniščem se pride v nadstropje hiše, ki obsega hodnik, kopalnico, tri spalnice, glavno spalnico z lastno kopalnico, garderobnim prostorom in pokrito teraso. = 450.000,00 €
ID: 1130628