Hiša - VODICE - 540.000 EUR
| Lokacija | VODICE, Šibeniško-kninska |
| Cena € | 540.000 |
| Površina | 168 m2 |
| Število sob | 4 |
| Število kopalnic | 3 |
| Oddaljenost od morja | 0 m |
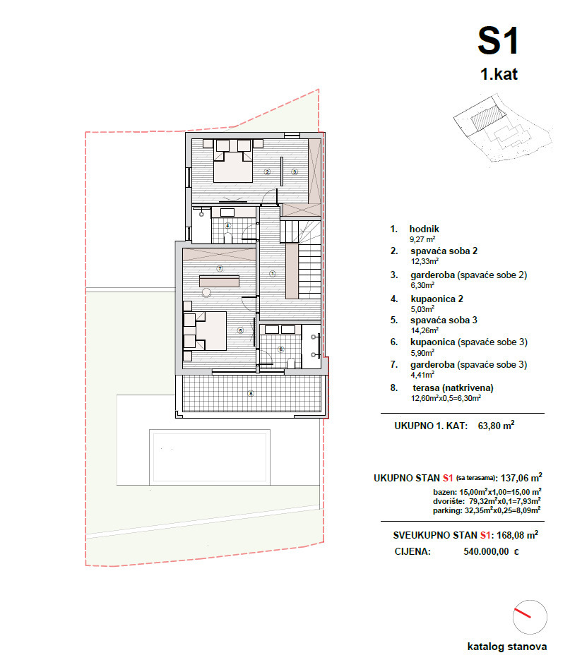
Vodice-**NOVOGRADNJA** prodajajo se luksuzne vrstne hiše z bazeni in pogledom na morje. Hiša moderne arhitekture bo zgrajena iz kakovostnih materialov in bo opremljena po najnovejših gradbenih standardih. Iz opreme izpostavljamo: - fasado iz stiropora, - PVC stavbno pohištvo, - žaluzije z električnimi dvigalci, - dvižno-drsna stekla, - keramične talne obloge v kopalnicah, kuhinji in dnevni sobi, - laminate v spalnicah, - moderne kopalniške sanitarije, - električni bojler za toplo vodo, - INVERTER klima ogrevanje/hlajenje v spalnicah in dnevni sobi, - talno ogrevanje na toplotno črpalko, - videonadzor... Vsaka hiša ima bazen, ustrezen vrtni del in dve parkirni mesti. Predviden začetek gradnje je 9/2025, predviden zaključek gradnje pa poletje 2026. Objekt se nahaja na mirni lokaciji, od koder je čudovit pogled na morje in okolico, 650 m od plaže in 1100 m od centra Vodic. S1 hiša skupne neto površine 137,06 m2 sestavljena je iz dveh etaž: pritličje + nadstropje. Pritličje neto površine 73,26 m2 obsega vhodni prostor, kopalnico, spalnico, kuhinjo z jedilnico in dnevno sobo odprtega tlorisa z izhodom na pokrito teraso površine 14,20 m2, za katero sledi bazen površine 15 m2. Z notranjim stopniščem se pride v nadstropje stanovanja neto površine 63,80 m2, ki obsega hodnik, spalnico z garderobo, kopalnico ter glavno spalnico z garderobo in lastno kopalnico ter pokrito teraso površine 12,60 m2. Stanovanju pripadata tudi dvorišče/vrt površine 79,32 m2 in parkirni prostor površine 32,35 m2. CENA: 540.000,00 € OSTALO NA VOLJO: S2 hiša skupne neto površine 193,67 m2 sestavljena je iz treh etaž: pritličje + nadstropje + strešna terasa. Pritličje neto površine 75,04 m2 obsega vhodni prostor, kopalnico, spalnico, kuhinjo z jedilnico in dnevno sobo odprtega tlorisa z izhodom na pokrito teraso površine 13,18 m2, za katero sledi bazen površine 15 m2. Z notranjim stopniščem se pride v nadstropje stanovanja neto površine 67,55 m2, ki obsega hodnik, spalnico, kopalnico ter glavno spalnico z garderobo in lastno kopalnico ter pokrito teraso površine 12,60 m2. Z notranjim stopniščem se pride na zadnjo etažo, ki obsega hodnik in strešno teraso skupne neto površine 21,63 m2, sestavljeno iz pokrite in nepokrite terase. Stanovanju pripadata tudi dvorišče/vrt površine 50,93 m2 ter parkirni prostor površine 37,43 m2. CENA: 635.000,00 € S3 hiša skupne neto uporabne površine 204,04 m2 sestavljena je iz treh etaž: pritličje, nadstropje in strešna terasa s strešno hiško. Pritličje neto površine 78,17 m2 obsega vhod, vhodni prostor, shrambni prostor, kopalnico, spalnico, kuhinjo z jedilnico in dnevno sobo odprtega tlorisa z izhodom na pokrito teraso površine 12,14 m2, za katero sledi bazen površine 15 m2 in vrt. Z notranjim stopniščem se pride v nadstropje hiše, ki obsega hodnik, kopalnico, spalnico z izhodom na nepokrito teraso površine 4,60 m2 ter glavno spalnico s kopalnico in izhodom na pokrito teraso površine 10,67 m2. Z notranjim stopniščem se pride na drugo etažo hiše, ki obsega hodnik, pokrito teraso površine 9,70 m2 in nepokrito teraso površine 66,30 m2. Hiši pripadata vrt/dvorišče površine 87,31 m2 in parkirni prostor površine 34,56 m2. CENA: 660.000,00 €
ID: 1255428