Hiša - VODICE - 399.000 EUR
| Lokacija | VODICE, Šibeniško-kninska |
| Cena € | 399.000 |
| Površina | 100 m2 |
| Število sob | 4 |
| Površina parcele | 160 m2 |
| Število kopalnic | 2 |
| Bližina prevoza | DA |
| Oddaljenost od morja | 850 m |
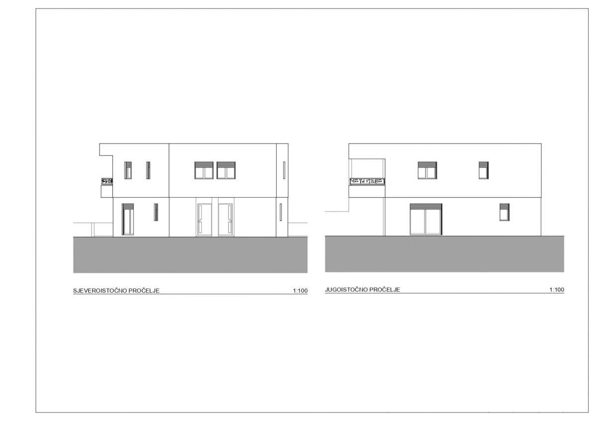
Prodaja se polsamostojna hiša v Vodicah. Polovica hiše, označena s S1, je sestavljena iz pritličja in zgornjega nadstropja. V pritličju je vhodna dvorana, dnevna soba in kuhinja z jedilnico, shramba, kopalnica, pokrita in nepokrita terasa z dostopom do bazena. V zgornjem nadstropju se nahaja hodnik, 3 spalnice, kopalnica in pokrita terasa. Površina vsega naštetega je 134,97 m2. Hiši pripada tudi 160 m2 vrta z bazenom, vrtom in dvoriščem s parkirnimi mesti. Cena vsake polovice je 399.000 evrov. Hiša ima sodoben videz, grajena s kakovostnimi materiali. Opeka Porotherm, toplotna in hidroizolacija, kakovostna vrata in okna z zaščito pred mrčesom, vgrajene so aluminijaste rolete z električnim pogonom, v vseh prostorih so nameščene klimatske naprave inverterske naprave, nameščena je toplotna črpalka za učinkovito talno ogrevanje. Lokacija je v širšem središču Vodic, le 600 m od tržnice, ribarnice in avtobusne postaje. Vselitev je junij 2026.
ID: 1234728