Hiša - VODICE - 320.000 EUR
| Lokacija | VODICE, Šibeniško-kninska |
| Cena € | 320.000 |
| Površina | 101 m2 |
| Število sob | 4 |
| Površina parcele | 70 m2 |
| Število kopalnic | 2 |
| Bližina prevoza | DA |
| Oddaljenost od morja | 600 m |
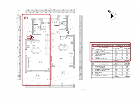
V Vodicah, na lepi in mirni lokaciji, prodajamo pol samostojno hišo, dve stanovanjski enoti. Vsaka enota je sestavljena iz pritličja in zgornjega nadstropja. V pritličju enote z oznako S1 se nahaja vhod, stopnišče, kuhinja-jedilnica, dnevna soba, kopalnica, shramba, izhod na pokrito teraso. V prvem nadstropju so 3 spalnice, hodnik, kopalnica, pokrita terasa. Bivalna površina znaša 93,92 m2. Enota ima del ograjenega dvorišča z lastnim vrtom in dvema parkirnima mestoma. Stavba je kakovostno grajena. Opremljena bo s klimatskimi napravami z inverterskimi enotami, kakovostnimi vrati in okni z električnimi roletami in zaščito pred mrčesom. Kakovostna keramika in kopalniška oprema. Zaključek del je predviden spomladi 2026. Cena posamezne stanovanjske enote je 320.000 evrov.
ID: 1199414