Stanovanje - UMAG - 397.350 EUR
| Lokacija | UMAG, Istrska |
| Cena € | 397.350 |
| Površina | 88 m2 |
| Število sob | 4 |
| Število kopalnic | 2 |
| Oddaljenost od morja | 400 m |
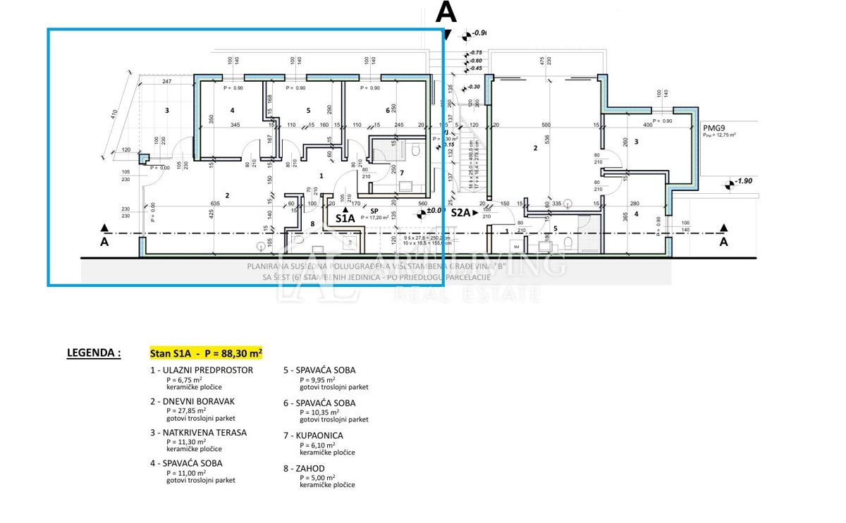
Moderna novogradnja v Istri, Umag – Apartma S1A s 3 spalnicami in vrhunsko opremo, le 400 m od morja! Na atraktivni lokaciji v Istri, v bližini mesta Umag in le 400 metrov od prvih plaž, se nahaja ta moderna, dobro grajena stavba z le 12 stanovanjskimi enotami. V mirnem okolju, idealnem za bivanje ali počitnice, se nahaja apartma S1A v pritličju, s skupno površino 88,30 m². Stanovanje obsega: • Vhodno dvorano (6,75 m²) • Prostorno dnevno sobo s kuhinjo in jedilnico (27,85 m²) • Pokrito teraso velikosti 11,30 m², idealno za jutranjo kavo ali večerno sprostitev • Tri spalnice: 11,00 m², 9,95 m² in 10,35 m² • Moderne kopalnice (6,10 m²) • Stranišče (5,00 m²) Stanovanje ima tudi: • Eno parkirno mesto v podzemni garaži • Shrambo (3,85 m²) za dodaten prostor za shranjevanje _____________________________________________________ Kakovostna gradnja in vrhunska oprema Stavba je zgrajena po najvišjih standardih sodobne gradnje in udobja, med opremo pa še posebej izpostavljamo: • Visokokakovostne keramične ploščice • Troslojni parket v spalnicah • Kakovostna sanitarna oprema • Talno ogrevanje vode s toplotno črpalko • Ventilatorske klimatske naprave v vseh prostorih • Upravljanje sistema pametnega doma (ogrevanje, hlajenje, valjčni sistem) polkna...) • ALU-PVC stavbno pohištvo z električnimi roletami • Priprava za alarmni sistem _____________________________________ Dodatni objekti V okviru skupnega vrta stavbe je predviden ogrevan bazen dimenzij 6 x 10 metrov, ki bo najemnikom na voljo za letno naročnino. Idealno za sprostitev v toplih poletnih dneh, pa tudi v predsezoni in posezoni zaradi možnosti ogrevanja vode. _____________________________________ Faza gradnje in datum dokončanja Stavba je trenutno v fazi visokega roh-bau, dokončanje del in vselitev pa sta načrtovana do konca leta 2025. _____________________________________ Če iščete kombinacijo kakovosti, sodobne tehnologije in privlačne lokacije v bližini morja in mesta - to stanovanje predstavlja odlično priložnost, ne glede na to, ali iščete dom, počitnice ali naložbo! Za več informacij in ogled nas prosimo kontaktirajte - na voljo smo vam! Spoštovane stranke, ogled nepremičnine je možen le s podpisano pogodbo o posredovanju, ki je podlaga za nadaljnja dejanja v zvezi s prodajo in provizijo, vse v skladu z Zakonom o posredovanju pri prometu z nepremičninami. Provizija agencije za kupca znaša 3 % + DDV in se v primeru nakupa nepremičnine plača ob sklenitvi predpogodbe ali kupoprodajne pogodbe. OPOMBA: Za morebitne napake ne odgovarjamo, vendar želimo biti čim bolj natančni in točni. ID KODA AGENCIJE: 1450
ID: 1223020