Stanovanje - UMAG - 269.550 EUR
| Lokacija | UMAG, Istrska |
| Cena € | 269.550 |
| Površina | 59 m2 |
| Število sob | 3 |
| Število kopalnic | 1 |
| Oddaljenost od morja | 400 m |
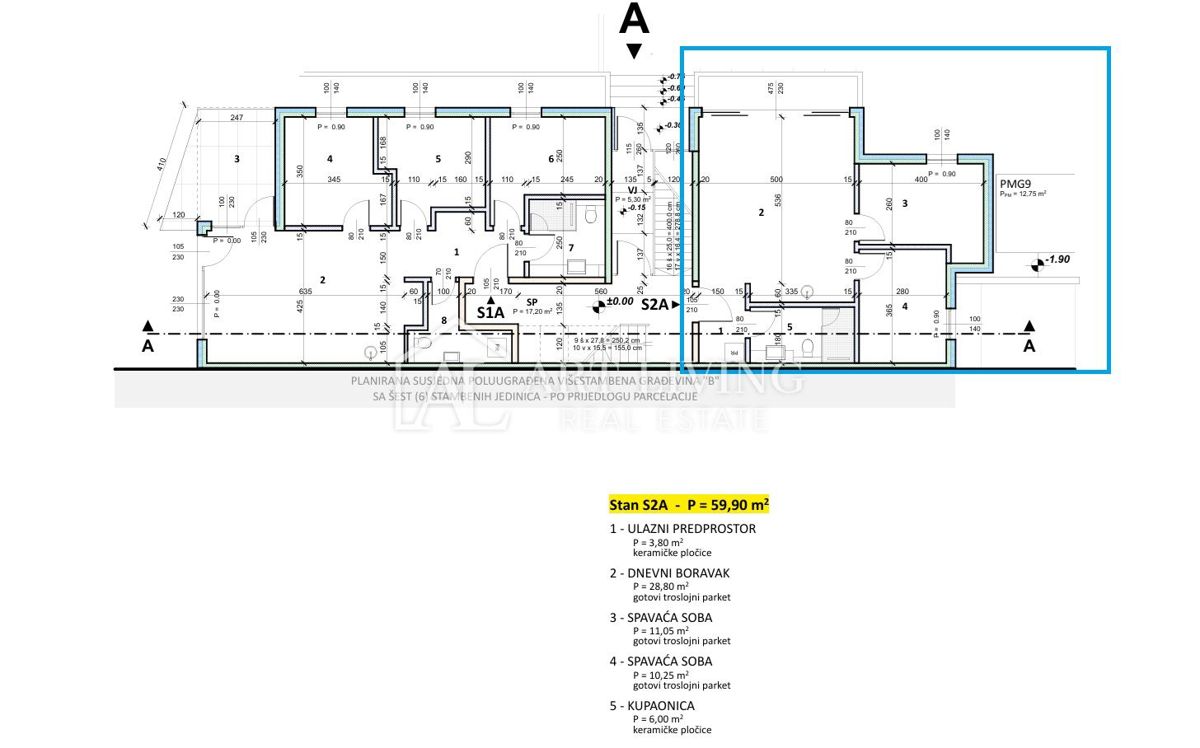
Moderna novogradnja v Istri, Umag – Stanovanje S2A z 2 spalnicama in vrhunsko opremo, le 400 m od morja! Na atraktivni lokaciji v Istri, v bližini mesta Umag in le 400 metrov od prvih plaž, se nahaja ta moderna, dobro grajena stavba s samo 12 stanovanjskimi enotami. V mirnem okolju, idealnem za bivanje ali počitnice, se nahaja stanovanje S2A v pritličju, s skupno površino 59,90 m². Stanovanje obsega: • Vhodno dvorano (3,80 m²) • Prostorno dnevno sobo s kuhinjo in jedilnico (28,80 m²) • Dve spalnici: 11,05 m² in 10,25 m² • Moderne kopalnice (6,00 m²) Stanovanje ima tudi: • Eno parkirno mesto v podzemni garaži • Shrambo (3,85 m²) za dodaten prostor za shranjevanje ______________________________________ Kakovost gradnje in vrhunska oprema Stavba je zgrajena po najvišjih standardih sodobne gradnje in udobja, od opreme pa še posebej izpostavljamo: • Visokokakovostne keramične ploščice • Troslojni parket v spalnicah • Kakovostna sanitarna oprema • Talno ogrevanje z vodo, preko toplotne črpalke • Klimatske naprave z ventilatorjem v vseh prostorih • Sistem pametnega doma (ogrevanje, hlajenje, rolete...) • ALU-PVC stavbno pohištvo z električnimi roletami • Priprava za alarmni sistem ________________________________________________________________ Dodatne ugodnosti Ogrevan bazen velikosti 6 Na skupnem vrtu stavbe je predvidena izgradnja x 10 metrov, ki bo najemnikom na voljo za letno najemnino. Idealno za sprostitev v toplih poletnih dneh, pa tudi v predsezoni in posezoni zaradi možnosti ogrevanja vode. __________________________________________ Faza gradnje in datum dokončanja Stavba je trenutno v fazi visokega roh-bau, dokončanje in vselitev pa sta načrtovana do konca leta 2025. _____________________________________ Če iščete kombinacijo kakovosti, sodobne tehnologije in atraktivne lokacije v bližini morja in mesta - to stanovanje predstavlja odlično priložnost, ne glede na to, ali iščete dom, počitnice ali naložbo! Za več informacij in ogled nas kontaktirajte - na voljo smo vam! Spoštovane stranke, ogled nepremičnine je možen le s podpisano pogodbo o posredovanju, ki je osnova za nadaljnja dejanja v zvezi z nakupom in prodajo ter pobiranjem provizije, vse v skladu z Zakonom o nepremičninskem posredovanju. Provizija agencije za kupca znaša 3 % + DDV in se v primeru nakupa nepremičnine plača ob sklenitvi predpogodbe ali kupoprodajne pogodbe. OPOMBA: Za morebitne napake ne odgovarjamo, vendar želimo biti čim bolj natančni in točni. IDENTIFIKACIJSKA KODA AGENCIJE: 1451
ID: 1223019